000 Hope Farm Lane, Mechanicsville, VA 23111
Local realty services provided by:Better Homes and Gardens Real Estate Native American Group
000 Hope Farm Lane,Mechanicsville, VA 23111
$435,900
- 2 Beds
- 2 Baths
- 1,692 sq. ft.
- Townhouse
- Active
Listed by:scott walker
Office:eagle realty of virginia
MLS#:2523896
Source:RV
Price summary
- Price:$435,900
- Price per sq. ft.:$257.62
- Monthly HOA dues:$266
About this home
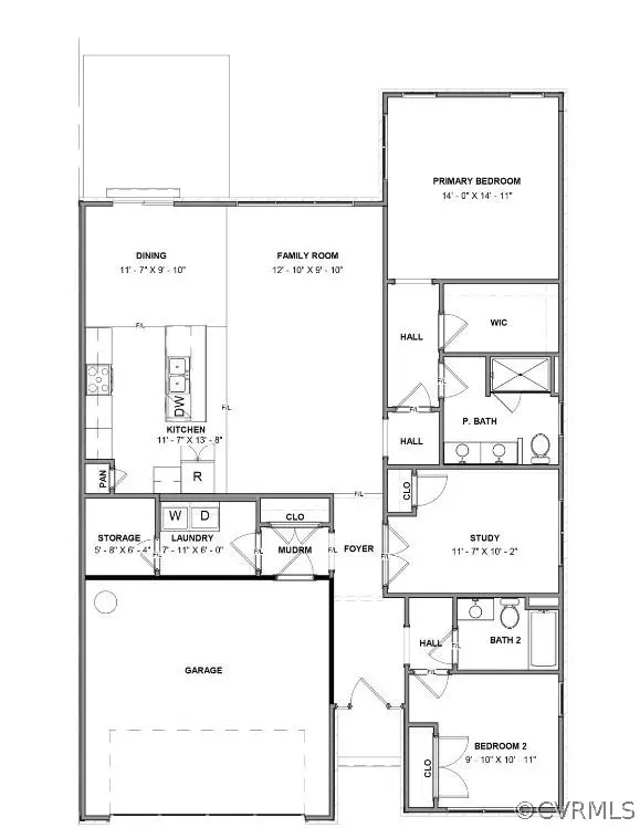
ALL ONE LEVEL! This Lillie is the perfect sized, one-level plan for uncomplicated living. This layout offers all the living/entertainment space needed with a Family Room, Kitchen, and Dining Area all open to each other. The Kitchen has a large (think four bar stools) island and cabinets galore! The bright Dining space is perfectly situated as the bridge between the Kitchen and Patio. The Family Room is large, giving you the opportunity to create multiple seating areas. The Primary Bedroom Suite is tucked down a private hallway and provides a spacious sleeping area, a large walk-in closet, and a ceramic tiled Bath with dual vanity. In the front of the home you'll find the Second Bedroom and Second Bath. The Study with double doors can be the perfect flex space to set up a home office, a play space for the grandkids, or anything that renews your energy. Come enjoy the easy lock and leave lifestyle of Brunswick at Hope Farm. We think you’ll appreciate the history of the area along with proximity to medical facilities and plenty of shopping. Contact us to find to see if this home is the perfect canvas for your life! (Photos from a Lillie Model)
Contact an agent
Home facts
- Year built:2025
- Listing ID #:2523896
- Added:469 day(s) ago
- Updated:October 02, 2025 at 02:43 PM
Rooms and interior
- Bedrooms:2
- Total bathrooms:2
- Full bathrooms:2
- Living area:1,692 sq. ft.
Heating and cooling
- Cooling:Central Air
- Heating:Forced Air, Natural Gas
Structure and exterior
- Roof:Shingle
- Year built:2025
- Building area:1,692 sq. ft.
Schools
- High school:Atlee
- Middle school:Chickahominy
- Elementary school:Mechanicsville
Utilities
- Water:Public
- Sewer:Public Sewer
Finances and disclosures
- Price:$435,900
- Price per sq. ft.:$257.62
New listings near 000 Hope Farm Lane
- New$800,000Active5 beds 4 baths3,729 sq. ft.
10152 Peach Blossom Road, Mechanicsville, VA 23116
MLS# 2527506Listed by: REDFIN CORPORATION - New$455,000Active4 beds 3 baths2,001 sq. ft.
7356 Penrith Drive, Mechanicsville, VA 23116
MLS# 2527601Listed by: BOYKIN REALTY LLC - New$420,000Active3 beds 1 baths1,748 sq. ft.
6159 Mechanicsville Turnpike, Mechanicsville, VA 23111
MLS# 2527574Listed by: ERA WOODY HOGG & ASSOC - Open Sat, 12 to 2pmNew$379,900Active4 beds 3 baths1,728 sq. ft.
6152 Winding Hills Drive, Mechanicsville, VA 23111
MLS# 2525485Listed by: EXP REALTY LLC - New$499,950Active3 beds 2 baths1,720 sq. ft.
7384 Chestnut Church Road, Mechanicsville, VA 23116
MLS# 2527394Listed by: HOMETOWN REALTY - New$459,706Active2 beds 3 baths1,617 sq. ft.
8447 Villetta Pointe Lane, Mechanicsville, VA 23116
MLS# 2527499Listed by: EAGLE REALTY OF VIRGINIA - New$619,000Active5 beds 3 baths3,144 sq. ft.
10996 Seward Way, Mechanicsville, VA 23116
MLS# 2527505Listed by: LONG & FOSTER REALTORS - New$514,900Active4 beds 3 baths2,354 sq. ft.
8776 Hope Farm Lane, Mechanicsville, VA 23111
MLS# 2527395Listed by: EAGLE REALTY OF VIRGINIA - New$550,000Active3 beds 2 baths1,796 sq. ft.
8201 Ferrill Court, Mechanicsville, VA 23116
MLS# 2527342Listed by: ERA WOODY HOGG & ASSOC - New$399,950Active3 beds 2 baths2,946 sq. ft.
7090 Sunnyside Drive, Mechanicsville, VA 23111
MLS# 2525306Listed by: VIRGINIA CAPITAL REALTY