18543 Cove Creek Drive, Moseley, VA 23120
Local realty services provided by:Better Homes and Gardens Real Estate Base Camp
18543 Cove Creek Drive,Moseley, VA 23120
$759,000
- 5 Beds
- 4 Baths
- 3,006 sq. ft.
- Single family
- Active
Listed by: nikki axman, stephanie harding
Office: providence hill real estate
MLS#:2610220
Source:RV
Price summary
- Price:$759,000
- Price per sq. ft.:$252.5
- Monthly HOA dues:$104.33
About this home
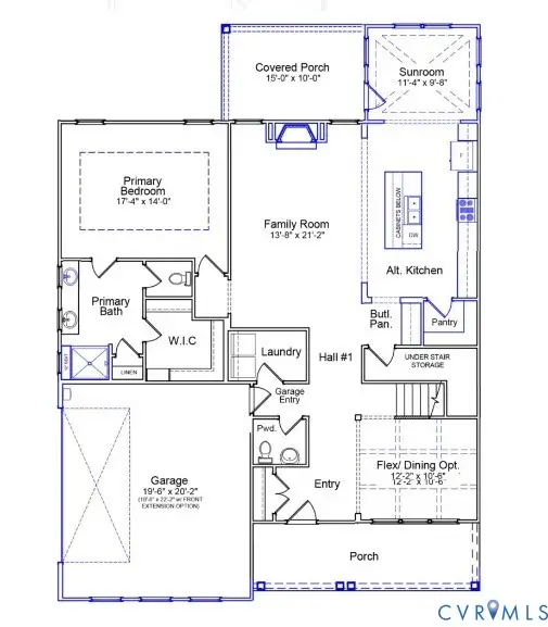
This Savannah home offers an impressive five-bedroom layout with the primary suite conveniently located on the first floor, along with three full bathrooms and one half bath. Upon entry, you’re welcomed by a versatile flex space, ideal for a formal dining room—accented by an elegant coffered ceiling. The great room features a fireplace and opens seamlessly to the kitchen and eat-in area. The gourmet kitchen is thoughtfully designed with a walk-in corner pantry and a butler’s pantry for added storage and convenience. The first-floor primary suite boasts a tray ceiling, a private en-suite bath with a walk-in shower, and a generous walk-in closet. Enjoy outdoor living year-round with an enlarged covered porch and adjoining sunroom. A powder bath and laundry room complete the main level. Upstairs, you’ll find three secondary bedrooms, a second primary suite, two full bathrooms, and a spacious loft—perfect for a media room, play space, or home office. *Customers interested in purchasing this home can personally select design finishes for a limited time*
*Photos for new homes may vary from the actual home available for sale. We often showcase pictures from a model home of the same style*...
Contact an agent
Home facts
- Year built:2026
- Listing ID #:2610220
- Added:4 day(s) ago
- Updated:April 25, 2026 at 02:32 PM
Rooms and interior
- Bedrooms:5
- Total bathrooms:4
- Full bathrooms:3
- Half bathrooms:1
- Rooms Total:10
- Flooring:Partially Carpeted, Vinyl
- Kitchen Description:Built-In Oven, Dishwasher, Gas Cooking, Microwave, Range, Range Hood
- Bedroom Description:Main Level Primary
- Living area:3,006 sq. ft.
Heating and cooling
- Cooling:Zoned
- Heating:Forced Air, Natural Gas, Zoned
Structure and exterior
- Year built:2026
- Building area:3,006 sq. ft.
- Architectural Style:Craftsman, Two Story
- Construction Materials:Drywall, Frame, Vinyl Siding
- Exterior Features:Deck, Front Porch
- Levels:Two, Two Story
Schools
- High school:Cosby
- Middle school:Deep Creek
- Elementary school:Moseley
Utilities
- Water:Public
- Sewer:Public Sewer
Finances and disclosures
- Price:$759,000
- Price per sq. ft.:$252.5
Features and amenities
- Appliances:Built-In Oven, Cooktop, Dishwasher, Gas Cooking, Microwave, Range, Range Hood, Tankless Water Heater
- Amenities:Granite Counters
- Pool features:Community
Parking
- Parking description:Attached, Garage, Garage Faces Rear
- Garage:Yes
- Garage spaces:2
New listings near 18543 Cove Creek Drive
- New
$859,990Active5 beds 5 baths3,274 sq. ft.17307 Jojo Lane, Moseley, VA 23120
MLS# 2609285Listed by: MSE PROPERTIES - New
$859,990Active6 beds 4 baths3,698 sq. ft.17307 Burtmoor Court, Moseley, VA 23120
MLS# 2609316Listed by: MSE PROPERTIES - New
$969,990Active5 beds 4 baths3,529 sq. ft.17318 Jojo Lane, Moseley, VA 23120
MLS# 2609320Listed by: MSE PROPERTIES - New
$563,058Active2 beds 3 baths2,517 sq. ft.16418 Creekstone Point Avenue, Chesterfield, VA 23120
MLS# 2610781Listed by: BOONE HOMES INC - Open Sun, 1 to 3pmNew
$565,000Active4 beds 4 baths2,661 sq. ft.16847 Jaydee Terrace, Moseley, VA 23120
MLS# 2610641Listed by: LONG & FOSTER REALTORS - New
$749,000Active3 beds 3 baths3,440 sq. ft.3821 Weatherbury Place, Chesterfield, VA 23120
MLS# 2605956Listed by: REAL BROKER LLC - Open Sun, 2 to 4pmNew
$649,900Active5 beds 3 baths3,006 sq. ft.18155 Sagamore Drive, Moseley, VA 23120
MLS# 2609758Listed by: THE RICK COX REALTY GROUP - Open Sun, 1 to 4pmNew
$423,870Active3 beds 3 baths1,829 sq. ft.18740 Palisades Cove Trail, Moseley, VA 23120
MLS# 2610169Listed by: HHHUNT REALTY INC - Open Sun, 1 to 4pmNew
$431,745Active3 beds 3 baths1,829 sq. ft.18736 Palisades Cove Trail, Moseley, VA 23120
MLS# 2610170Listed by: HHHUNT REALTY INC - New
$820,000Active4 beds 4 baths2,703 sq. ft.17313 Jojo Lane, Moseley, VA 23120
MLS# 2609806Listed by: LIZ MOORE & ASSOCIATES