1220 Treviso Bay, Williamsburg, VA 23188
Local realty services provided by:Better Homes and Gardens Real Estate Premier
1220 Treviso Bay,Williamsburg, VA 23188
$617,990
- 3 Beds
- 3 Baths
- 2,474 sq. ft.
- Townhouse
- Active
Listed by: victoria jane clark
Office: d r horton realty of virginia llc.
MLS#:VAJC2000422
Source:BRIGHTMLS
Price summary
- Price:$617,990
- Price per sq. ft.:$249.79
- Monthly HOA dues:$195
About this home
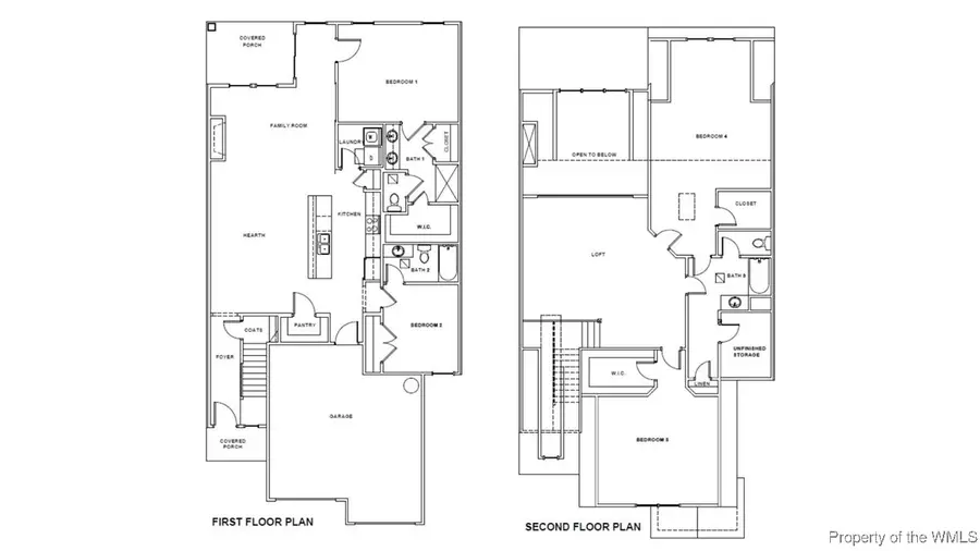
QUICK MOVE-IN! Welcome to the Lafayette at Country Club Villas in Ford’s Colony- a stunning two-story townhome offering 2,474 square feet of thoughtfully designed living space with three bedrooms, three full baths, and a spacious two-car garage. Enjoy the ease of a first-floor primary suite with two closets, a luxurious bath featuring a double vanity, tiled walk-in shower, and private water closet, plus a convenient guest room with its own full
bath. Entertain effortlessly in the open-concept kitchen with an expansive quartz island, stainless steel appliances, and a stylish tile backsplash, flowing seamlessly into the dining and hearth rooms. Upstairs, a generous loft provides endless possibilities for relaxation or fun, alongside an additional bedroom and full bath. Nestled in Williamsburg’s premier active adult community, you’ll relish maintenance-free living, access to Ford’s Colony’s world-class amenities, and the rich history, shopping, dining, and cultural experiences that make Williamsburg a truly exceptional place to call home. Photos are from the builder's library, actual finishes and features may vary....
Contact an agent
Home facts
- Year built:2025
- Listing ID #:VAJC2000422
- Added:358 day(s) ago
- Updated:April 10, 2026 at 01:43 PM
Rooms and interior
- Bedrooms:3
- Total bathrooms:3
- Full bathrooms:3
- Flooring:Carpet, Ceramic Tile, Laminate Plank
- Dining Description:Dining Area
- Bathrooms Description:Primary Bath(s)
- Kitchen Description:Built-In Microwave, Built-In Range, Carpet, Dishwasher, Disposal, Exhaust Fan, Kitchen - Island, Oven - Self Cleaning, Oven - Single, Oven/Range - Gas, Pantry, Recessed Lighting, Refrigerator, Stainless Steel Appliances, Water Heater - Tankless
- Bedroom Description:Carpet, Entry Level Bedroom, Walk In Closet(s)
- Living area:2,474 sq. ft.
Heating and cooling
- Cooling:Central A/C, Programmable Thermostat, Zoned
- Heating:Forced Air, Natural Gas, Programmable Thermostat, Zoned
Structure and exterior
- Roof:Architectural Shingle
- Year built:2025
- Building area:2,474 sq. ft.
- Architectural Style:Traditional
- Construction Materials:Asphalt, Brick, Frame, HardiPlank Type
- Exterior Features:Exterior Lighting, Patio(s), Sidewalks
- Foundation Description:Slab
- Levels:2 Stories
Schools
- High school:LAFAYETTE
Utilities
- Water:Public
- Sewer:Public Sewer
Finances and disclosures
- Price:$617,990
- Price per sq. ft.:$249.79
Features and amenities
- Laundry features:Hookup, Washer/Dryer Hookups Only
- Amenities:Carpet, Recessed Lighting, Store/Office
Parking
- Parking description:Attached Garage, Garage - Front Entry, Garage Door Opener
- Garage:Yes
- Garage spaces:2
New listings near 1220 Treviso Bay
- New
$575,000Active4 beds 3 baths2,984 sq. ft.153 Exmoor Court, Williamsburg, VA 23185
MLS# 2608402Listed by: HOWARD HANNA WILLIAM E WOOD - New
$588,257Active5 beds 3 baths2,380 sq. ft.101 Wax Myrtle Drive, Williamsburg, VA 23185
MLS# 10629026Listed by: BHHS RW Towne Realty - New
$537,608Active5 beds 3 baths2,264 sq. ft.105 Wax Myrtle Drive, Williamsburg, VA 23185
MLS# 10629035Listed by: BHHS RW Towne Realty - New
$562,644Active3 beds 3 baths1,966 sq. ft.109 Wax Myrtle Drive, Williamsburg, VA 23185
MLS# 10629048Listed by: BHHS RW Towne Realty - New
$360,000Active3 beds 3 baths1,905 sq. ft.449 Zelkova Road, Williamsburg, VA 23185
MLS# 10628822Listed by: Liz Moore & Associates LLC - New
$250,000Active0.43 Acres213 Yorkshire Drive, Williamsburg, VA 23185
MLS# 10628524Listed by: Howard Hanna Real Estate Svcs. - New
$250,000Active0 AcresAddress Withheld By Seller, Williamsburg, VA 23185
MLS# 2601097Listed by: HOWARD HANNA WILLIAM E. WOOD - Open Sat, 1 to 3pmNew
$439,000Active3 beds 2 baths1,384 sq. ft.11 Grove Avenue, Williamsburg, VA 23185
MLS# 2601091Listed by: LONG & FOSTER REAL ESTATE, INC. - Coming Soon
$875,000Coming Soon4 beds 4 baths10 Frenchmens Key, Williamsburg, VA 23185
MLS# 2601068Listed by: KELLER WILLIAMS WILLIAMSBURG - Open Sat, 10am to 1pmNew
$399,900Active5 beds 2 baths1,794 sq. ft.419 Henderson Street, Williamsburg, VA 23185
MLS# 2608343Listed by: HOWARD HANNA WILLIAM E WOOD