36 Blodgett Street, Burlington, VT 05401
Local realty services provided by:Better Homes and Gardens Real Estate The Masiello Group
36 Blodgett Street,Burlington, VT 05401
$575,000
- 4 Beds
- 2 Baths
- 1,953 sq. ft.
- Single family
- Pending
Listed by: lipkin audette teamPhone: 802-846-8800
Office: coldwell banker hickok and boardman
MLS#:5077103
Source:PrimeMLS
Price summary
- Price:$575,000
- Price per sq. ft.:$218.05
About this home
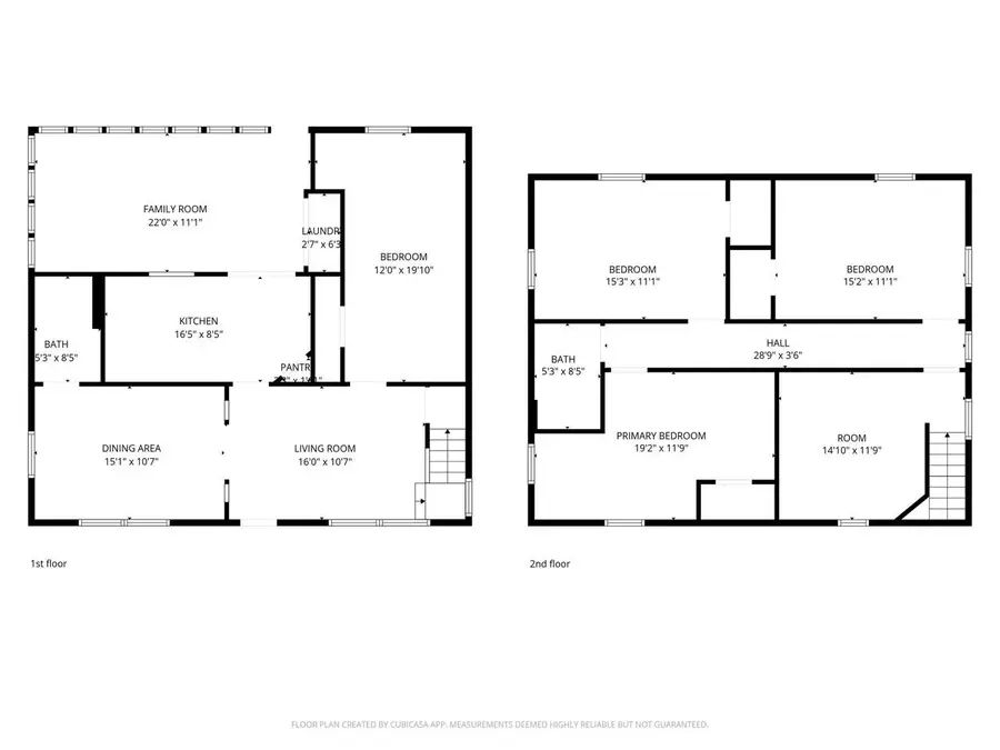
Spacious and versatile Cape in Burlington’s sought-after Old North End! This 4-bedroom, 2-full-bath home offers a surprisingly expansive floor plan designed for comfortable living and flexible use. The updated kitchen features a charming built-in hutch and a convenient pass-through window that opens into a massive, sun-filled family room - perfect for gatherings or everyday relaxation. A spacious dining room, first-floor laundry, and an accessible first-floor bedroom and full bath provide ease and functionality. Upstairs, you’ll find additional well-sized bedrooms ideal for guests, work-from-home space, or hobbies. Enjoy summer evenings on the back deck overlooking the fenced yard, with a 1-car garage and basement offering ample storage. Located in a welcoming neighborhood close to the waterfront, downtown, and local amenities. This property is currently rented through May at $4,100/month - making it an exceptional investment opportunity or a perfect single-family home.
Contact an agent
Home facts
- Year built:1928
- Listing ID #:5077103
- Added:42 day(s) ago
- Updated:April 03, 2026 at 07:36 AM
Rooms and interior
- Bedrooms:4
- Total bathrooms:2
- Full bathrooms:2
- Rooms Total:9
- Flooring:Hardwood, Tile
- Kitchen Description:Dishwasher, Microwave, Refrigerator
- Basement Description:Full, Interior, Unfinished
- Living area:1,953 sq. ft.
Heating and cooling
- Heating:Hot Air, Oil
Structure and exterior
- Roof:Shingle
- Year built:1928
- Building area:1,953 sq. ft.
- Lot area:0.11 Acres
- Levels:2 Story
Schools
- High school:Burlington High School
- Middle school:Edmunds Middle School
- Elementary school:Assigned
Utilities
- Sewer:Public Available
Finances and disclosures
- Price:$575,000
- Price per sq. ft.:$218.05
- Tax amount:$8,956 (2025)
Features and amenities
- Appliances:Refrigerator, Washer
- Laundry features:Dryer, Washer
- Amenities:Circuit Breaker(s)
Parking
- Parking description:Paved Driveway
- Garage spaces:1
New listings near 36 Blodgett Street
- New
$499,900Active3 beds 1 baths1,899 sq. ft.106 East Redrock Drive, Burlington, VT 05401
MLS# 5081914Listed by: NANCY JENKINS REAL ESTATE - New
$326,000Active3 beds 1 baths902 sq. ft.37 South Williams Street #320, Burlington, VT 05401
MLS# 5081888Listed by: COLDWELL BANKER HICKOK AND BOARDMAN - New
$730,000Active4 beds 4 baths2,132 sq. ft.155 Maple Street, Burlington, VT 05401
MLS# 5081854Listed by: COLDWELL BANKER HICKOK AND BOARDMAN - Open Sat, 11am to 1pmNew
$479,000Active2 beds 2 baths1,252 sq. ft.81 South Williams Street #403, Burlington, VT 05401
MLS# 5081793Listed by: ELEMENT REAL ESTATE - New
$355,000Active3 beds 2 baths1,702 sq. ft.1813 North Avenue, Burlington, VT 05408
MLS# 5081773Listed by: PREFERRED PROPERTIES - Open Sat, 12 to 2pmNew
$789,000Active4 beds 3 baths1,898 sq. ft.4 University Road, Burlington, VT 05401
MLS# 5081578Listed by: REAL ESTATE ASSOCIATES - New
$549,900Active3 beds 1 baths1,508 sq. ft.138 Foster Street, Burlington, VT 05401
MLS# 5081309Listed by: RIDGELINE REAL ESTATE - New
$324,900Active1 beds 1 baths553 sq. ft.62 Lakeview Terrace #B, Burlington, VT 05401
MLS# 5081480Listed by: RE/MAX NORTH PROFESSIONALS - BURLINGTON - New
$450,000Active1 beds 2 baths1,390 sq. ft.89 College Street #Unit A-2, Burlington, VT 05401
MLS# 5081456Listed by: PURSUIT REAL ESTATE - New
$219,000Active1 beds 1 baths688 sq. ft.223 Hildred Drive, Burlington, VT 05401
MLS# 5081387Listed by: VERMONT REAL ESTATE COMPANY