19814 10th Drive Se, Bothell, WA 98012
Local realty services provided by:Better Homes and Gardens Real Estate Northwest Home Team
Listed by: angela nebeker
Office: john l. scott, inc.
MLS#:2494639
Source:NWMLS
Upcoming open houses
- Sat, Mar 2101:00 pm - 04:00 pm
Price summary
- Price:$1,045,000
- Price per sq. ft.:$585.11
About this home
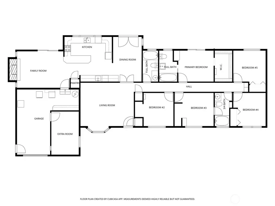
Welcome to this one-of-a-kind property offering space & versatility on a super private .37-acre lot. The main house is 1 story, has 5 bedrooms & 2.75 bathrooms, an eat-in kitchen, formal living & dining rooms. The family room has custom stained-glass windows created by the former owner & a gas fireplace surround with craftsman style tiles & mantle. Solar tubes allow for natural light year round. The 2 car garage has a room conversion in one of the bays, allowing for more space in addition to the 5 bedrooms. Perhaps a gym or home office? Not included in the main home’s square footage is a detached 720-square-foot cottage / DADU! Complete with its own kitchen, bathroom, living room, bedroom with a walk-in closet, washer & dryer, freestanding gas stove, tankless water heater & cathedral ceilings. With a separate parking area, this private space is ideal for guests, multi-generational living, rental income or a home office setup. Both homes have freshly painted interiors & exteriors. Step outside to enjoy everything this property has to offer. The big composite deck is perfect for entertaining or relaxing evenings at home. The sport court provides opportunities for recreation, & the greenhouse is ready for gardeners to grow year-round. This rare property sits in a quiet cul-de-sac, conveniently located in Bothell near Thrashers Corner. This home is located in the coveted Northshore School District. Pre-inspected and move-in ready!...
Contact an agent
Home facts
- Year built:1970
- Listing ID #:2494639
- Updated:March 20, 2026 at 12:57 PM
Rooms and interior
- Bedrooms:5
- Total bathrooms:3
- Full bathrooms:2
- Flooring:Carpet, Ceramic Tile Floor, Laminate, Vinyl Floor
- Kitchen Description:Dishwasher, Disposal, Microwave, Refrigerator
- Bedroom Description:Main Level Bedrooms : 5
- Basement:Yes
- Living area:1,786 sq. ft.
Heating and cooling
- Heating:90%+ High Efficiency, Forced Air
Structure and exterior
- Roof:Composition
- Year built:1970
- Building area:1,786 sq. ft.
- Lot area:0.37 Acres
- Lot Features:Cul-De-Sac, Paved
- Construction Materials:Wood Exterior Finish
- Exterior Features:Athletic Court, Deck, Fenced-Partially, Patio, Sprinkler System
- Foundation Description:None
- Levels:1 Story
Schools
- High school:North Creek High School
- Middle school:Canyon Park Middle School
- Elementary school:Crystal Springs Elem
Utilities
- Water:Public
- Sewer:Sewer Connected
Finances and disclosures
- Price:$1,045,000
- Price per sq. ft.:$585.11
- Tax amount:$6,005 (2025)
Features and amenities
- Appliances:Dishwasher, Refrigerator, Washer
- Laundry features:Dryer, Washer
- Amenities:Athletic Court, French Doors, Gas Available, Green House, High Speed Internet, Skylight(s), Walk-In Closet(s), Water Heater
Parking
- Total parking spaces:1
- Parking description:Attached Garage, Driveway, RV Parking
- Garage:Yes
New listings near 19814 10th Drive Se
- Open Sat, 12 to 3pmNew
$569,990Active2 beds 2 baths1,187 sq. ft.404 228th Street Sw #E101, Bothell, WA 98021
MLS# 2494366Listed by: BEST CHOICE REALTY LLC - Open Sat, 2 to 4pmNew
$2,200,000Active5 beds 4 baths3,920 sq. ft.9544 NE 188th Street, Bothell, WA 98011
MLS# 2494613Listed by: EXP REALTY - Open Sat, 12 to 3pmNew
$949,000Active4 beds 4 baths2,250 sq. ft.23431 9th Avenue Se, Bothell, WA 98021
MLS# 2495269Listed by: KELLY RIGHT RE OF SEATTLE LLC - Open Sat, 11 to 2pmNew
$2,196,935Active5 beds 4 baths3,614 sq. ft.10035 NE 196th. Place, Bothell, WA 98011
MLS# 2488716Listed by: JOHN L. SCOTT EVERETT - Open Sat, 10am to 2pmNew
$585,000Active2 beds 2 baths1,209 sq. ft.714 228th Street Sw #O-101, Bothell, WA 98021
MLS# 2494543Listed by: BROWN MCMILLEN REAL ESTATE - Open Sat, 12 to 2pmNew
$1,325,000Active4 beds 3 baths2,240 sq. ft.12871 NE 198th Place, Woodinville, WA 98072
MLS# 2494786Listed by: COMPASS
$1,014,450Pending3 beds 4 baths1,798 sq. ft.1004 243rd Place Se #B, Bothell, WA 98021
MLS# 2495062Listed by: PULTE HOMES OF WASHINGTON INC- Open Sat, 1 to 4pmNew
$2,763,000Active3 beds 4 baths3,810 sq. ft.10623 NE 155th Place, Bothell, WA 98011
MLS# 2494052Listed by: JOHN L. SCOTT, INC. - Open Sat, 2 to 6pmNew
$570,000Active2 beds 2 baths1,241 sq. ft.15700 116th Avenue Ne #102-A, Bothell, WA 98011
MLS# 2494252Listed by: KW GREATER SEATTLE - Open Sat, 1 to 3pmNew
$975,000Active4 beds 3 baths2,088 sq. ft.2408 208th Place Se, Bothell, WA 98021
MLS# 2491635Listed by: WINDERMERE REAL ESTATE/HLC