659 E Franklin Street, Connell, WA 99326

Local realty services provided by:Better Homes and Gardens Real Estate McKenzie Realty
Listed by: lexi witt
Office: tc brokers
MLS#:2501375
Source:NWMLS
659 E Franklin Street,Connell, WA 99326
$349,000
  • 4 Beds
  • 3 Baths
  • 1,463 sq. ft.
  • Single family
  • Active

Price summary

  • Price:$349,000
  • Price per sq. ft.:$238.55

About this home

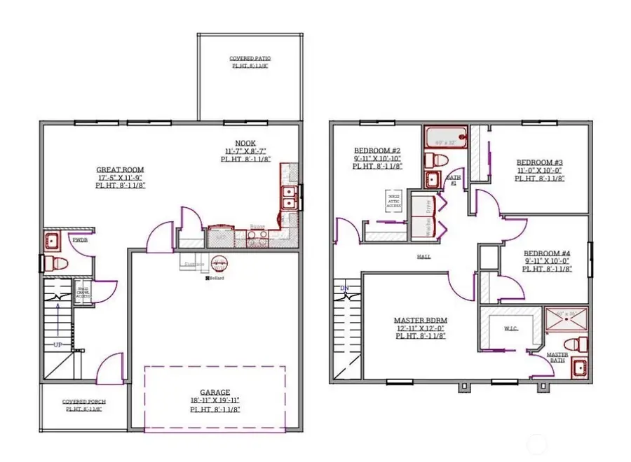
Under construction 2-story home in Connell, WA! This home has enough room for everyone! On the main level, you will find a large L-Shaped kitchen with a dining nook that has a slider that opens up to a covered backyard patio and a large great room. Also, a convenient half bath is located off the great room. Upstairs, you will find the primary bedroom with an ensuite bathroom and walk-in closet, as well as three other bedrooms, a full bathroom, and the laundry nook. Located just adjacent to a scenic bike path and only a few blocks from Pioneer Park and the Community Pool, this home offers easy access to recreational amenities while maintaining a peaceful and welcoming neighborhood.

Contact an agent

contact an agent

Yes, I would like more information. Please use and/or share my information with a BHGRE®  affiliated agent to contact me about my real estate needs. By clicking Send message, I request to be contacted by phone or text message and consent to being contacted by automated means. I understand that my consent to receive calls or texts is not a condition of purchasing any property, goods, or services. Alternatively, I understand that I can access real estate services by email or I can contact the agent myself.

If a BHGRE®  affiliated agent is not available in the area where I need assistance, I agree to be contacted by a real estate agent affiliated with another brand owned or licensed by Anywhere Real Estate (CENTURY 21® , Coldwell Banker® , Corcoran® , ERA® , Sotheby's International Realty® ).
 I acknowledge that I have read and agree to theTerms of useandPrivacy notice

Home facts

  • Year built:2026
  • Listing ID #:2501375
  • Updated:May 24, 2026 at 11:06 AM

Rooms and interior

  • Bedrooms:4
  • Total bathrooms:3
  • Full bathrooms:2
  • Half bathrooms:1
  • Flooring:Carpet, Vinyl Plank
  • Kitchen Description:Dishwasher, Disposal, Microwave
  • Bedroom Description:Upper Level Bedrooms : 4
  • Basement:Yes
  • Living area:1,463 sq. ft.

Heating and cooling

  • Heating:Forced Air

Structure and exterior

  • Roof:Composition
  • Year built:2026
  • Building area:1,463 sq. ft.
  • Lot area:0.14 Acres
  • Lot Features:Curbed Lot, Paved, Sidewalk
  • Architectural Style:Craftsman
  • Construction Materials:Cement/Concrete Exterior Finish, Stone Exterior Finish, Wood Products Exterior Finish
  • Exterior Features:Patio, Sprinkler System
  • Foundation Description:None
  • Levels:2 Story

Schools

  • High school:Connell High
  • Middle school:Robert L Olds Jnr Hi
  • Elementary school:Connell Elem

Utilities

  • Water:Public
  • Sewer:Sewer Connected

Finances and disclosures

  • Price:$349,000
  • Price per sq. ft.:$238.55
  • Tax amount:$299 (2026)

Features and amenities

  • Appliances:Dishwasher
  • Amenities:Ceiling Fan(s), Walk-In Closet(s)

Parking

  • Total parking spaces:2
  • Parking description:Attached Garage
  • Garage:Yes
MLS LogoListings courtesy of Northwest MLS as distributed by MLS GRID. Based on information submitted to the MLS GRID as of May 24, 2026. All data is obtained from various sources and may not have been verified by broker or MLS GRID. Supplied Open House Information is subject to change without notice. All information should be independently reviewed and verified for accuracy. Properties may or may not be listed by the office/agent presenting the information. Listing information is provided for consumers' personal, non-commercial use, solely to identify prospective properties for potential purchase; all other use is strictly prohibited and may violate relevant federal and state law. Information deemed reliable but not guaranteed. Copyright © 2026 MLS GRID. All Rights Reserved.