41298 214th Avenue Se, Enumclaw, WA 98022

Local realty services provided by:Better Homes and Gardens Real Estate Pacific Commons
Listed by: todd v. huizenga, trent huizenga
Office: kw mountains to sound realty
MLS#:2506006
Source:NWMLS
41298 214th Avenue Se,Enumclaw, WA 98022
$575,000
  • 4.82 Acres
  • Lots / Land
  • Active

Price summary

  • Price:$575,000

About this home

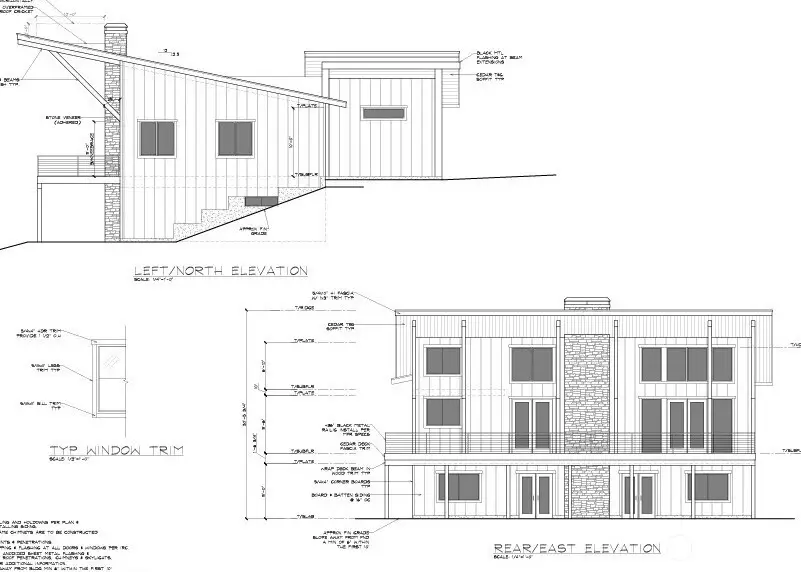
This exceptional 4.82-acre parcel is fully READY TO BUILD, with permits in hand—yes, you can break ground ASAP. The property is perfectly suited for the thoughtfully designed 3,469-square-foot Northwest Contemporary daylight basement rambler, paired with a fully permitted 42' x 60' shop. The home’s open-concept/great room design creates a welcoming space for gatherings as well as daily living, featuring a main-level primary suite for ease and comfort. The kitchen boasts a HUGE pantry and large island, while a dramatic wall of windows fills the interior with natural light and leads out to an elevated, covered deck—offering sweeping views of your acreage, seasonal stream and the serene neighboring pond. The daylight basement expands your options with 2 additional bedrooms, a dedicated office, a large rec room, mechanical room/storage and a convenient full bath. The price includes the King County building permit, an approved septic design, King County approved Critical Areas Designation...

Contact an agent

contact an agent

Yes, I would like more information. Please use and/or share my information with a BHGRE®  affiliated agent to contact me about my real estate needs. By clicking Send message, I request to be contacted by phone or text message and consent to being contacted by automated means. I understand that my consent to receive calls or texts is not a condition of purchasing any property, goods, or services. Alternatively, I understand that I can access real estate services by email or I can contact the agent myself.

If a BHGRE®  affiliated agent is not available in the area where I need assistance, I agree to be contacted by a real estate agent affiliated with another brand owned or licensed by Anywhere Real Estate (CENTURY 21® , Coldwell Banker® , Corcoran® , ERA® , Sotheby's International Realty® ).
 I acknowledge that I have read and agree to theTerms of useandPrivacy notice

Home facts

  • Listing ID #:2506006
  • Updated:April 19, 2026 at 11:05 AM

Structure and exterior

  • Lot area:4.82 Acres
  • Lot Features:Dead-end Street, Paved, Secluded

Schools

  • High school:Enumclaw Snr High
  • Middle school:Thunder Mtn Mid
  • Elementary school:Westwood Elem

Utilities

  • Water:Available, In Street

Finances and disclosures

  • Price:$575,000
  • Tax amount:$4,718 (2026)
MLS LogoListings courtesy of Northwest MLS as distributed by MLS GRID. Based on information submitted to the MLS GRID as of April 19, 2026. All data is obtained from various sources and may not have been verified by broker or MLS GRID. Supplied Open House Information is subject to change without notice. All information should be independently reviewed and verified for accuracy. Properties may or may not be listed by the office/agent presenting the information. Listing information is provided for consumers' personal, non-commercial use, solely to identify prospective properties for potential purchase; all other use is strictly prohibited and may violate relevant federal and state law. Information deemed reliable but not guaranteed. Copyright © 2026 MLS GRID. All Rights Reserved.