203 N 89th Loop #240, Ridgefield, WA 98642
Local realty services provided by:Better Homes and Gardens Real Estate Equinox
203 N 89th Loop #240,Ridgefield, WA 98642
$635,960
- 4 Beds
- 3 Baths
- 2,336 sq. ft.
- Single family
- Pending
Listed by: tracy chapman, nicole berrissoul
Office: holt homes realty, llc.
MLS#:331615741
Source:PORTLAND
Price summary
- Price:$635,960
- Price per sq. ft.:$272.24
- Monthly HOA dues:$38
About this home
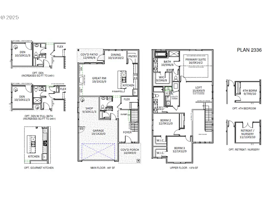
MOVE-IN READY! Beautiful new floor plan with tall ceilings and lots of windows in the entry way, a great room concept, dining nook, fireplace, and flex space on the main floor, a primary suite with soaking tub, and three additional bedrooms, on the second level. Home features a 2-car garage with added shop space, gas fireplace, 9ft ceilings on main, quartz countertops throughout, gas range, high-efficiency heat pump with A/C, and a 65 gallon heat pump water heater. Fencing, covered patio, front yard sod and irrigation included. Community features walking trails, green spaces, and park areas. Sample images - actual finishes and colors will vary.
Contact an agent
Home facts
- Year built:2025
- Listing ID #:331615741
- Added:44 day(s) ago
- Updated:March 19, 2026 at 07:19 AM
Rooms and interior
- Bedrooms:4
- Total bathrooms:3
- Full bathrooms:3
- Bathrooms Description:Soaking Tub
- Kitchen Description:Built In Range, Cooktop, Dishwasher, Island, Microwave, Pantry, Quartz, Stainless Steel Appliance, Tile
- Basement Description:Crawl Space
- Living area:2,336 sq. ft.
Heating and cooling
- Cooling:Heat Pump
- Heating:ENERGY STAR Qualified Equipment, Forced Air 90+, Heat Pump
Structure and exterior
- Roof:Composition
- Year built:2025
- Building area:2,336 sq. ft.
- Lot Features:Gentle Sloping
- Architectural Style:2 Story, Modern
- Exterior Features:Covered Deck, Porch
- Foundation Description:Concrete Perimeter, Pillar Post Pier
- Levels:2 Stories
Schools
- High school:Ridgefield
- Middle school:View Ridge
- Elementary school:South Ridge
Utilities
- Water:Public Water
- Sewer:Public Sewer
Finances and disclosures
- Price:$635,960
- Price per sq. ft.:$272.24
Features and amenities
- Amenities:Garage Door Opener, High Ceilings, Laminate Flooring, Laundry, Triple Pane Windows, Vinyl Frame Windows
Parking
- Total parking spaces:2
- Parking description:Driveway
- Garage spaces:2
New listings near 203 N 89th Loop #240
- Open Sat, 11 to 1pmNew
$412,900Active2 beds 2 baths1,511 sq. ft.3300 NE 164th St #D2, Ridgefield, WA 98642
MLS# 754397506Listed by: CHAR TAYLOR REAL ESTATE LLC - Open Sat, 12 to 2pmNew
$1,395,000Active4 beds 3 baths2,864 sq. ft.905 NW 173rd Cir, Ridgefield, WA 98642
MLS# 599414651Listed by: BERKSHIRE HATHAWAY HOMESERVICES NW REAL ESTATE - Open Sat, 10am to 12pmNew
$674,900Active4 beds 3 baths3,430 sq. ft.8827 N 1st Cir, Ridgefield, WA 98642
MLS# 695360808Listed by: JOHN L. SCOTT REAL ESTATE - Open Sun, 12 to 2pmNew
$549,900Active3 beds 2 baths1,657 sq. ft.8707 N 1st St, Ridgefield, WA 98642
MLS# 250428715Listed by: EXP REALTY LLC - New
$768,258Active4 beds 3 baths2,676 sq. ft.8502 N 7th St #210, Ridgefield, WA 98642
MLS# 122368233Listed by: HOLT HOMES REALTY, LLC - New
$599,900Active4 beds 3 baths2,281 sq. ft.3261 S Coopers Dr, Ridgefield, WA 98642
MLS# 489569044Listed by: WINDERMERE NORTHWEST LIVING - Open Sun, 10am to 1pmNew
$419,900Active3 beds 3 baths1,532 sq. ft.2800 N 3rd Way, Ridgefield, WA 98642
MLS# 419095123Listed by: RE/MAX PREMIER GROUP - Open Sun, 12:30 to 3:30pmNew
$680,000Active5 beds 3 baths2,506 sq. ft.3676 N 10th St, Ridgefield, WA 98642
MLS# 422573665Listed by: REALTY ONE GROUP NORTHSTARS - New
$574,900Active3 beds 3 baths2,176 sq. ft.1606 NE 172nd Cir, Ridgefield, WA 98642
MLS# 166708349Listed by: CALL IT CLOSED INTERNATIONAL REALTY - New
$879,000Active5 beds 3 baths2,950 sq. ft.2805 NE 172nd St, Ridgefield, WA 98642
MLS# 770502118Listed by: PREMIERE PROPERTY GROUP, LLC