N101W17188 Tanglewood DRIVE, Germantown, WI 53022
Local realty services provided by:Better Homes and Gardens Real Estate Star Homes
Listed by: braden team*
Office: first weber inc - menomonee falls
MLS#:1939212
Source:Metro MLS
N101W17188 Tanglewood DRIVE,Germantown, WI 53022
$678,900
- 4 Beds
- 3 Baths
- 2,499 sq. ft.
- Single family
- Active
Price summary
- Price:$678,900
- Price per sq. ft.:$271.67
- Monthly HOA dues:$38.75
About this home
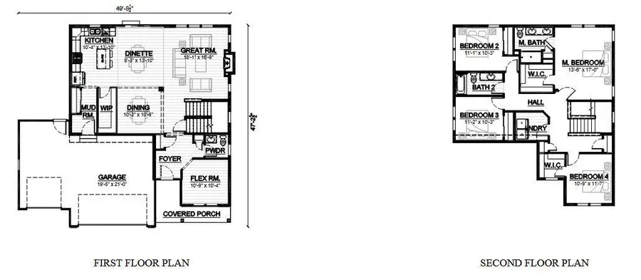
Welcome home to The PRESCOTT PLAN by Stepping Stone Homes, an award-winning home builder. Open floor plan features 4 bedrooms, 2.5 baths and 3 Car garage. This home has a LOOK OUT exposure. Kitchen comes with quartz countertops, island and LG appliances. LVP flooring in kitchen, dinette and great room. You will find quality craftsmanship throughout such as 2x6 construction exterior walls, 9' first floor ceilings and passive radon system. We offer a total Kohler/Sterling home experience. The Focus on Energy program provides each home with a Certified Energy-Efficient Certificate.
Contact an agent
Home facts
- Year built:2025
- Listing ID #:1939212
- Added:165 day(s) ago
- Updated:March 29, 2026 at 03:10 PM
Rooms and interior
- Bedrooms:4
- Total bathrooms:3
- Full bathrooms:2
- Dining Description:On Main Level
- Bathrooms Description:Master Bedroom Bath: Walk-In Shower, Shower Over Tub, Shower Stall, Stubbed For Bathroom on Lower, Tub Only
- Kitchen Description:Dishwasher, Disposal, Microwave, On Main Level, Oven, Range, Refrigerator
- Bedroom Description:Master Bedroom On Upper Level, Walk-In Closet(s)
- Basement Description:8'+ Ceiling, Full, Full Size Windows, Radon Mitigation System, Sump Pump
- Living area:2,499 sq. ft.
Heating and cooling
- Cooling:Central Air, Forced Air
- Heating:Forced Air, Natural Gas
Structure and exterior
- Year built:2025
- Building area:2,499 sq. ft.
- Lot area:0.63 Acres
- Architectural Style:Colonial, Contemporary
- Construction Materials:Brick/Stone, Stone, Vinyl
- Foundation Description:Poured Concrete
- Levels:2 Story
Schools
- High school:Germantown
- Middle school:Kennedy
Utilities
- Water:Municipal Water
- Sewer:Municipal Sewer
Finances and disclosures
- Price:$678,900
- Price per sq. ft.:$271.67
- Tax amount:$1,915 (2025)
Features and amenities
- Appliances:Dishwasher, Disposal, Microwave, Oven, Range, Refrigerator
- Amenities:Cable/Satellite Available, High Speed Internet, Pantry
Parking
- Parking description:3 Car Garage, Garage - Attached, Garage Opener Included
- Garage spaces:3
New listings near N101W17188 Tanglewood DRIVE
- New
$39,900Active2 beds 2 baths924 sq. ft.W211N11863 Hilltop Drive #D14, Germantown, WI 53022
MLS# 2019447Listed by: BERKSHIRE HATHAWAY HOMESERVICES WATER CITY REALTY - Open Sun, 1 to 3pm
$597,000Pending4 beds 3 baths2,450 sq. ft.N106W14764 Harrison CIRCLE, Germantown, WI 53022
MLS# 1955571Listed by: BEYOND REALTY BROKERAGE
$459,900Active3 beds 3 baths2,273 sq. ft.N105W16136 Brook Hollow DRIVE, Germantown, WI 53022
MLS# 1955492Listed by: SHOREWEST REALTORS, INC.
$442,900Pending3 beds 3 baths1,955 sq. ft.W142N10472 Magnolia DRIVE, Germantown, WI 53022
MLS# 1955287Listed by: ARKENSTONE REAL ESTATE EXPERTS
$669,900Active4 beds 3 baths2,479 sq. ft.W149N11962 Red Holly DRIVE, Germantown, WI 53022
MLS# 1955260Listed by: TIM O'BRIEN HOMES
$219,900Active2 beds 1 baths900 sq. ft.N96W16012 County Line ROAD, Germantown, WI 53022
MLS# 1955026Listed by: KELLER WILLIAMS-MNS WAUWATOSA
$380,000Pending3 beds 2 baths1,568 sq. ft.W156N11580 PILGRIM ROAD, Germantown, WI 53022
MLS# 50322500Listed by: EXPERT REAL ESTATE PARTNERS, LLC
$450,000Pending4 beds 3 baths3,430 sq. ft.W210N11170 Mountbrooke DRIVE, Germantown, WI 53022
MLS# 1954564Listed by: SHOREWEST REALTORS, INC.
$230,000Pending3 beds 2 baths1,245 sq. ft.W167N11563 Westminster COURT, Germantown, WI 53022
MLS# 1954583Listed by: SHOREWEST REALTORS, INC.
$135,000Pending2 beds 1 baths850 sq. ft.W158N11141 Legend Ave, Germantown, WI 53022
MLS# 1954501Listed by: COLDWELL BANKER REALTY