Marinoni Drive, Fayetteville, AR 72701
Local realty services provided by:Better Homes and Gardens Real Estate Journey
Listed by: paula marinoni
Office: best places realty, llc.
MLS#:1338372
Source:AR_NWAR
Price summary
- Price:$13,374,000
About this home
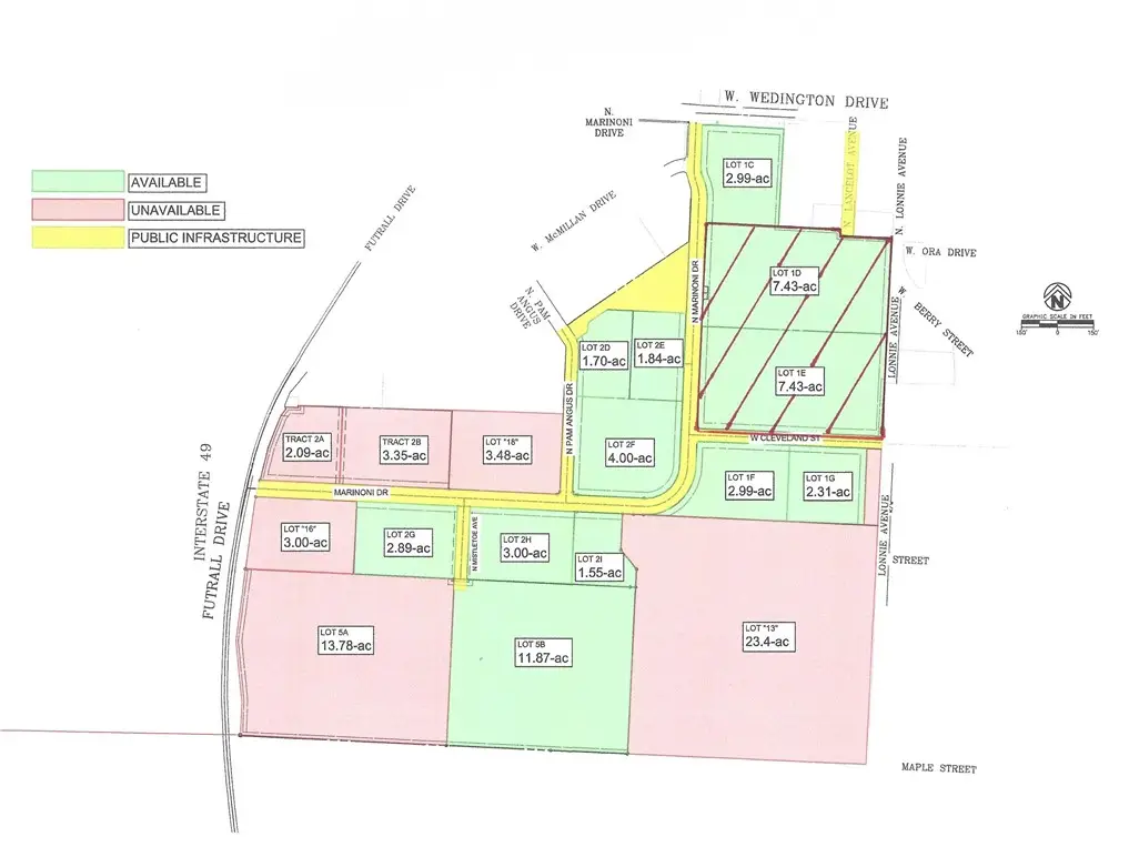
Centrally located large property zoned UT - Urban Thoroughfare, high density, mixed use, up to 7 stories and administrative approval. Also, a Certified Opportunity Zone. Property to the south, north, and west is also available if you need more. Lots can each be divided into 4, with administrative approval. Fronts on a 3-lane street and has another street as a back entrance into the property. On the entire property there is a double flag Marriott, double flag Hilton and Hyatt hotels going in. Along with a coffee shop, two sit-down restaurants, a mixed-use development and two large apartment complexes, all in progress. The entire south border of the larger property borders the City of Fayetteville trails park and the 18-mile traverse trail cuts through at that location also. Wedington Drive is the main west entrance to the City of Fayetteville and the University of Arkansas. Off-site sewer upgrade is near completion, paid for by seller.
Contact an agent
Home facts
- Listing ID #:1338372
- Added:51 day(s) ago
- Updated:April 26, 2026 at 02:21 PM
Structure and exterior
- Lot area:14.86 Acres
- Lot Features:City Lot, Cleared, Level, Open Lot, Split Possible
Utilities
- Water:Public
- Sewer:Public Sewer
Finances and disclosures
- Price:$13,374,000
- Tax amount:$500
New listings near Marinoni Drive
- New
Listed by BHGRE$465,000Active4 beds 3 baths2,252 sq. ft.374 Drywood Creek Drive, Fayetteville, AR 72704
MLS# 1344263Listed by: BETTER HOMES AND GARDENS REAL ESTATE JOURNEY - New
$100,000Active5 Acres10655 Rocky Creek Road, Fayetteville, AR 72701
MLS# 1344128Listed by: EXIT REALTY HARPER CARLTON GROUP - New
$450,000Active4 beds 2 baths2,016 sq. ft.4490 W Wyoming Drive, Fayetteville, AR 72704
MLS# 1344266Listed by: BROYLES & ASSOCIATES - New
$299,900Active3 beds 2 baths1,404 sq. ft.2416 Sara Alice Court, Fayetteville, AR 72701
MLS# 1344264Listed by: KELLER WILLIAMS PLATINUM REALTY - New
$375,000Active3 beds 2 baths1,811 sq. ft.739 W Partridge Drive, Fayetteville, AR 72701
MLS# 1344106Listed by: FATHOM REALTY - New
$234,000Active2.6 Acrestract#2 White Oak Road, Fayetteville, AR 72704
MLS# 1344240Listed by: PAK HOME REALTY - New
$363,900Active3 beds 2 baths1,742 sq. ft.1572 N Plantation Avenue, Fayetteville, AR 72704
MLS# 1340758Listed by: KELLER WILLIAMS MARKET PRO REALTY - New
$435,000Active2 beds 3 baths1,280 sq. ft.239 N Fletcher Avenue, Fayetteville, AR 72701
MLS# 1343155Listed by: NAVIGATE REAL ESTATE - New
$839,000Active3 beds 3 baths3,136 sq. ft.610 Winding Spring Drive, Fayetteville, AR 72703
MLS# 1343627Listed by: WEICHERT, REALTORS GRIFFIN COMPANY BENTONVILLE - New
$370,000Active2 beds 1 baths1,356 sq. ft.525 S School #430, Fayetteville, AR 72701
MLS# 1344200Listed by: COLLIER & ASSOCIATES