8610 S Calle Maravilla -- #3, Guadalupe, AZ 85283

Local realty services provided by:Better Homes and Gardens Real Estate BloomTree Realty
8610 S Calle Maravilla -- #3,Guadalupe, AZ 85283
$125,000
  • 0.11 Acres
  • Lots / Land
  • Pending
Listed by: melanie a lakovich
Office: homesmart
MLS#:6960920
Source:ARMLS

Price summary

  • Price:$125,000

About this home

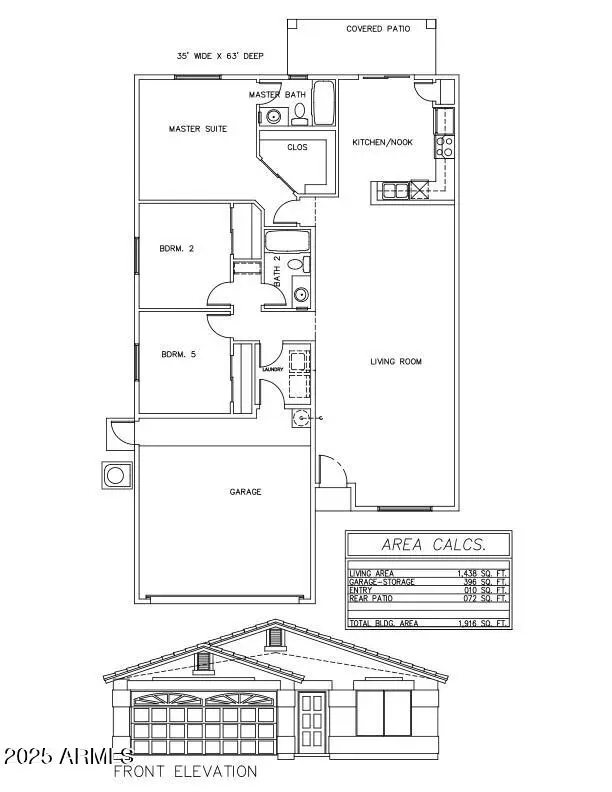
A great vacant lot with utilities at the property line and a municipality ready to work with builders. No HOA. Seller willing to provide building plan (see photo). Excellent location! The property is tucked away in a quiet neighborhood with easy access to the I-10 & US-60. Experience the close-knit community of Guadalupe. Welcome home! 13 min to Sky Harbor, 15 min to Arizona State University, South Mountain Point Resort just other side of freeway, including South Mountain Park, Nations largest City Park, Hiking Trails, Borders Tempe to the east, Kiwanis Park.

Contact an agent

contact an agent

Yes, I would like more information. Please use and/or share my information with a BHGRE®  affiliated agent to contact me about my real estate needs. By clicking Send message, I request to be contacted by phone or text message and consent to being contacted by automated means. I understand that my consent to receive calls or texts is not a condition of purchasing any property, goods, or services. Alternatively, I understand that I can access real estate services by email or I can contact the agent myself.

If a BHGRE®  affiliated agent is not available in the area where I need assistance, I agree to be contacted by a real estate agent affiliated with another brand owned or licensed by Anywhere Real Estate (CENTURY 21® , Coldwell Banker® , Corcoran® , ERA® , Sotheby's International Realty® ).
 I acknowledge that I have read and agree to theTerms of useandPrivacy notice

Home facts

  • Listing ID #:6960920
  • Updated:March 27, 2026 at 04:47 PM

Structure and exterior

  • Lot area:0.11 Acres
  • Lot Features:East/West Exposure

Schools

  • High school:Marcos De Niza High School
  • Middle school:Fees College Preparatory Middle School
  • Elementary school:Frank Elementary School

Utilities

  • Water:City Franchise

Finances and disclosures

  • Price:$125,000
  • Tax amount:$294 (2025)
MLS LogoAll information should be verified by the recipient and none is guaranteed as accurate by ARMLS. Copyright 2020 Arizona Regional Multiple Listing Service, Inc. All rights reserved.