6552 S Pearl Street, Centennial, CO 80121
Local realty services provided by:Better Homes and Gardens Real Estate Kenney & Company
6552 S Pearl Street,Centennial, CO 80121
$725,000
- 5 Beds
- 3 Baths
- 2,552 sq. ft.
- Single family
- Active
Listed by: david bergonz
Office: century 21 trenka real estate
MLS#:7928757
Source:ML
Price summary
- Price:$725,000
- Price per sq. ft.:$284.09
About this home
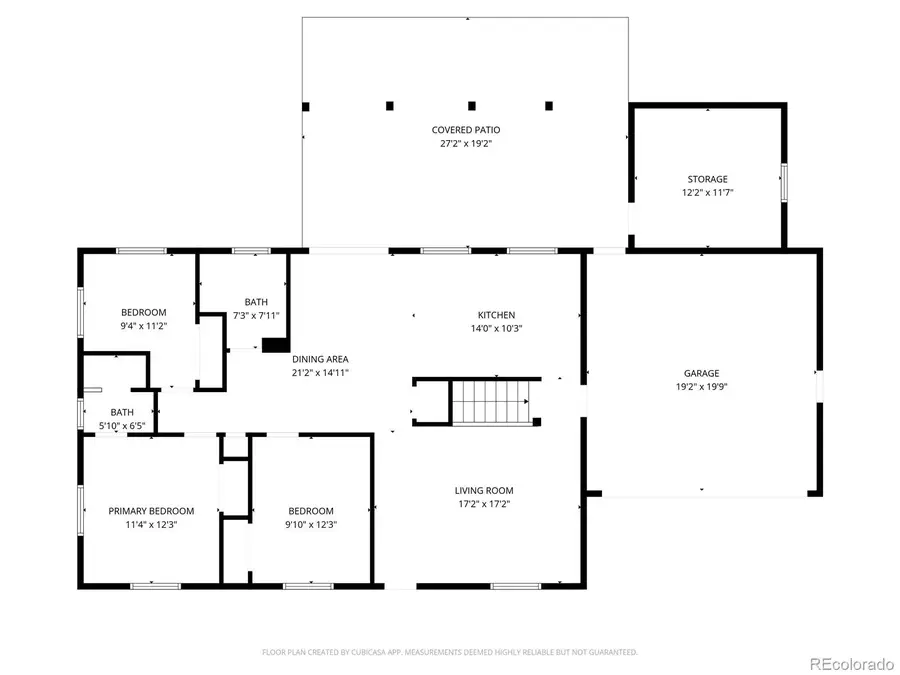
Extensively renovated ranch featuring major upgrades including a new Class 4 impact-resistant roof and all new windows, providing long-term durability, energy efficiency, and potential insurance savings. Inside, the home has been thoughtfully updated with refinished original hardwood floors, new baseboards, fresh interior paint, recessed lighting, LED fixtures, and new interior doors throughout! Plus the attached workshop with electricity is an added bonus!
The fully remodeled kitchen offers white 42-inch cabinetry, updated countertops, a glass tile backsplash, and stainless steel appliances including a stovetop oven with AIR FRYER and new hood, refrigerator, dishwasher, and super sleek DRAWER MICROWAVE. A country-style sink sits beneath large windows overlooking the expansive covered patio and private backyard.
Three fully renovated bathrooms on the main floor feature updated finishes and fixtures and the finished basement includes a LARGE open family room with new carpeting plus two additional bedrooms and a bathroom. The utility room provides laundry and substantial storage space. Furnace and Hot Water Heater both less than 5 years old!
Exterior brick has been stained (not painted) with estimated 10 year lifespan! Outdoor living is a standout feature with the HUGE covered patio rarely found in the neighborhood, creating an ideal space for gatherings and year-round use. The nearly one-third-acre corner lot includes mature grapevines, an apple tree, wraparound street parking, and side gate access to 2 separate dedicated slabs designed for RV and boat parking and the extended driveway also provides extra parking opportunities.
Located near Southglenn shopping and dining, Southglenn Country Club, Milliken Park, and the High Line Canal trail system, this property combines extensive updates, flexible living space, and a highly usable lot in an established Centennial neighborhood with no HOA....
Contact an agent
Home facts
- Year built:1958
- Listing ID #:7928757
Rooms and interior
- Bedrooms:5
- Total bathrooms:3
- Full bathrooms:3
- Flooring:Carpet, Tile, Wood
- Kitchen Description:Dishwasher, Disposal, Microwave, Oven, Range, Range Hood, Refrigerator
- Basement:Yes
- Basement Description:Finished, Full, Interior Entry
- Living area:2,552 sq. ft.
Heating and cooling
- Cooling:Central Air
- Heating:Forced Air
- Central air:Yes
Structure and exterior
- Roof:Composition
- Year built:1958
- Building area:2,552 sq. ft.
- Lot area:0.28 Acres
- Lot Features:Corner, Landscaped, Level, Sprinklers In Front, Sprinklers In Rear
- Architectural Style:Traditional
- Construction Materials:Brick, Frame
- Exterior Features:Covered, Deck, Garden, Lighting, Private Yard, Rain Gutters
- Levels:1 Story
Schools
- High school:Arapahoe
- Middle school:Euclid
- Elementary school:Gudy Gaskill
Utilities
- Water:Public
- Sewer:Public Sewer
Finances and disclosures
- Price:$725,000
- Price per sq. ft.:$284.09
- Tax amount:$3,399 (2024)
Features and amenities
- Laundry features:Dryer, In Unit, Washer
- Amenities:Carbon Monoxide Detector(s), Double Pane Windows, Smoke Detector(s)
Parking
- Total parking spaces:6
- Parking description:Concrete Driveway, Exterior Access Door
- Garage:Yes
- Garage spaces:2
New listings near 6552 S Pearl Street
- Coming Soon
$860,000Coming Soon4 beds 4 baths6323 S Dexter Street, Littleton, CO 80121
MLS# 3904987Listed by: KEY TEAM REAL ESTATE CORP. - Open Sat, 12 to 4pmNew
$675,000Active4 beds 2 baths2,016 sq. ft.6969 S Syracuse Court, Centennial, CO 80112
MLS# 2533812Listed by: COLDWELL BANKER REALTY 54 - New
$925,000Active4 beds 3 baths2,696 sq. ft.6097 S Jackson Street, Centennial, CO 80121
MLS# 5089535Listed by: MILEHIMODERN - New
$410,000Active2 beds 3 baths1,470 sq. ft.8290 S Fillmore Circle, Centennial, CO 80122
MLS# 7115906Listed by: KELLER WILLIAMS DTC - Open Sat, 10am to 2pmNew
$650,000Active4 beds 2 baths2,210 sq. ft.7289 S Lincoln Way, Centennial, CO 80122
MLS# 7310948Listed by: COMPASS - DENVER - New
$557,000Active4 beds 3 baths2,152 sq. ft.5621 S Ireland Street, Centennial, CO 80015
MLS# 2633749Listed by: SUNRISE REALTY & FINANCING LLC - Coming Soon
$625,000Coming Soon4 beds 3 baths8135 S Ogden Street, Centennial, CO 80122
MLS# 9214397Listed by: KELLER WILLIAMS DTC - New
$440,000Active2 beds 3 baths1,836 sq. ft.9019 E Panorama Circle #D211, Englewood, CO 80112
MLS# 4920019Listed by: LIV SOTHEBY'S INTERNATIONAL REALTY - Open Sun, 2 to 4pmNew
$510,000Active3 beds 3 baths2,046 sq. ft.2417 E Geddes Place, Centennial, CO 80122
MLS# 4389845Listed by: ANJOY REALTY, LLC - Open Sat, 12 to 2pmNew
$635,000Active3 beds 3 baths2,901 sq. ft.5465 S Kirk Circle, Centennial, CO 80015
MLS# 7290422Listed by: DISCOVER REALTY GROUP, LLC