12771 W Hinsdale Avenue, Littleton, CO 80127
Local realty services provided by:Better Homes and Gardens Real Estate Kenney & Company
12771 W Hinsdale Avenue,Littleton, CO 80127
$935,300
- 5 Beds
- 4 Baths
- 3,893 sq. ft.
- Single family
- Pending
Listed by: tom ullrich
Office: re/max professionals
MLS#:1930465
Source:ML
Price summary
- Price:$935,300
- Price per sq. ft.:$240.25
- Monthly HOA dues:$78
About this home
**Contact builder today about Special Financing for this home - terms and conditions apply**
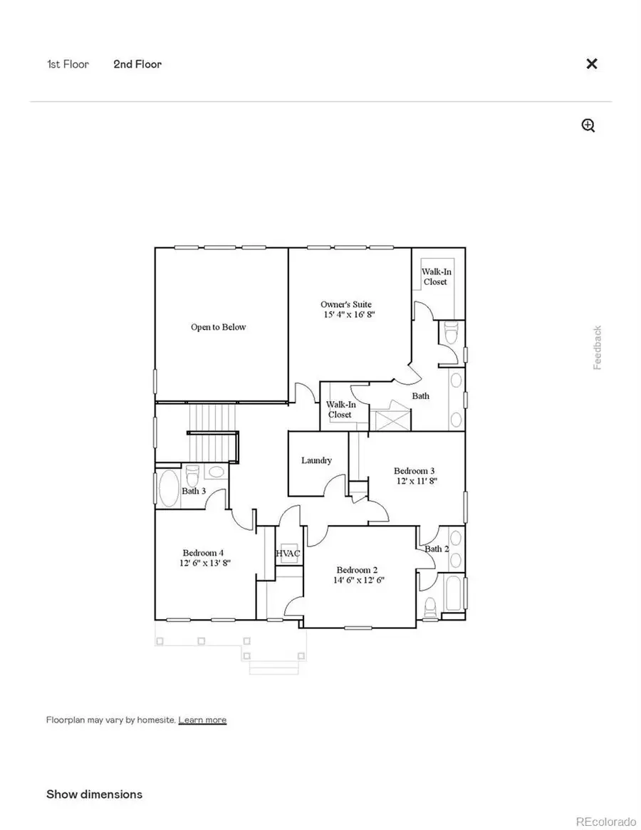
Available NOW! This gorgeous Stonehaven 2-story in Ken Caryl Ranch features 5 beds (4 upper / 1 main), 4 baths, great room, spacious kitchen, mudroom, 2 car garage and unfinished basement. Beautiful finishes throughout including vinyl plank floors, stainless steel appliances, slab Quartz counters & island, covered deck and more. The builder provides the latest in energy efficiency seamlessly blended with luxury to make your new house a home. What some builders consider high-end upgrades, this builder makes a standard inclusion. Part of Ken Caryl Ranch, this community offers access to a rich set of amenities including a clubhouse and fitness center, three swimming pools, 25+ miles of private hiking and riding trails, 22 tennis and pickleball courts, athletic fields, and that's just to name a few. Shopping and dining couldn't be closer, easy highway access makes commuting a breeze, and the location offers quick access to the best outdoor recreational areas the Denver Metro has to offer. Don’t wait – this community will sell out quickly! Photos and walkthrough tour are model only and subject to change....
Contact an agent
Home facts
- Year built:2026
- Listing ID #:1930465
Rooms and interior
- Bedrooms:5
- Total bathrooms:4
- Full bathrooms:3
- Flooring:Carpet, Tile, Vinyl
- Kitchen Description:Dishwasher, Disposal, Kitchen Island, Microwave, Pantry, Refrigerator, Self Cleaning Oven
- Basement:Yes
- Basement Description:Interior Entry, Unfinished
- Living area:3,893 sq. ft.
Heating and cooling
- Cooling:Central Air
- Heating:Geothermal
- Central air:Yes
Structure and exterior
- Roof:Composition
- Year built:2026
- Building area:3,893 sq. ft.
- Lot area:0.17 Acres
- Construction Materials:Frame
- Exterior Features:Covered, Deck, Front Porch, Rain Gutters
- Foundation Description:Slab
- Levels:2 Story
Schools
- High school:Chatfield
- Middle school:Deer Creek
- Elementary school:Ute Meadows
Utilities
- Water:Public
- Sewer:Public Sewer
Finances and disclosures
- Price:$935,300
- Price per sq. ft.:$240.25
- Tax amount:$11,809 (2024)
Features and amenities
- Laundry features:In Unit
- Amenities:Carbon Monoxide Detector(s), Double Pane Windows, Smoke Detector(s)
Parking
- Total parking spaces:3
- Parking description:Concrete Driveway, Tandem
- Garage:Yes
- Garage spaces:3
New listings near 12771 W Hinsdale Avenue
- Coming Soon
$860,000Coming Soon4 beds 4 baths6323 S Dexter Street, Littleton, CO 80121
MLS# 3904987Listed by: KEY TEAM REAL ESTATE CORP. - New
$700,000Active5 beds 3 baths2,778 sq. ft.8015 W Calhoun Place, Littleton, CO 80123
MLS# 5313948Listed by: LIV SOTHEBY'S INTERNATIONAL REALTY - New
$600,000Active4 beds 3 baths3,460 sq. ft.5491 S Hickory Street, Littleton, CO 80120
MLS# 6169627Listed by: EXP REALTY, LLC - Coming Soon
$1,875,000Coming Soon3 beds 2 baths5000 Juniper Street, Littleton, CO 80123
MLS# 7236911Listed by: HOMESMART - Coming Soon
$325,000Coming Soon1 beds 1 baths4760 S Wadsworth Boulevard #E105, Littleton, CO 80123
MLS# 1684300Listed by: REAL BROKER, LLC DBA REAL - New
$400,000Active3 beds 2 baths1,313 sq. ft.4875 S Balsam Way #10-101, Littleton, CO 80123
MLS# 4081815Listed by: RE/MAX PROFESSIONALS - New
$1,149,000Active5 beds 4 baths4,545 sq. ft.9590 S Everett Way, Littleton, CO 80127
MLS# 5583580Listed by: RE/MAX PROFESSIONALS - New
$425,000Active3 beds 2 baths1,394 sq. ft.420 E Fremont Place #201, Centennial, CO 80122
MLS# 5200078Listed by: BROKERS GUILD HOMES - New
$300,000Active2 beds 1 baths879 sq. ft.3010 W Prentice Avenue #H, Littleton, CO 80123
MLS# 2507415Listed by: EQUITY COLORADO REAL ESTATE PREMIER - New
$1,100,000Active4 beds 4 baths3,074 sq. ft.3511 W Elmhurst Avenue, Littleton, CO 80120
MLS# 3423063Listed by: COLDWELL BANKER REALTY 56