8979 Yellowcress Street, Littleton, CO 80125
Local realty services provided by:Better Homes and Gardens Real Estate Kenney & Company
8979 Yellowcress Street,Littleton, CO 80125
$494,900
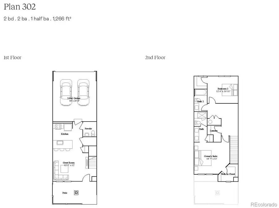
- 2 Beds
- 3 Baths
- 1,266 sq. ft.
- Townhouse
- Pending
Listed by: tom ullrichtomrman@aol.com,303-910-8436
Office: re/max professionals
MLS#:7231886
Source:ML
Price summary
- Price:$494,900
- Price per sq. ft.:$390.92
- Monthly HOA dues:$85
About this home
****Contact builder today about Special Financing for this home - terms and conditions apply**
Anticipated completion May 2026!! Low maintenance living in the gorgeous new Sterling Ranch community. Just lock up and go. This brand new 2-story townhome in a 4-plex features 2 bedrooms, 2.5 baths, great room, kitchen, upper laundry, loft, 2 car attached garage (rear alley entry) and conditioned crawl space. Gorgeous finishes and upgrades throughout including, slab quartz counters, luxury vinyl plank flooring, stainless steel appliances, solar and more. The builder provides the latest in energy efficiency and state of the art technology with several fabulous floorplans to choose from. Energy efficiency, and technology/connectivity seamlessly blended with luxury to make your new house a home. Sterling Ranch offers several fabulous plans to choose from. Photos are model only and subject to change.
Contact an agent
Home facts
- Year built:2026
- Listing ID #:7231886
Rooms and interior
- Bedrooms:2
- Total bathrooms:3
- Full bathrooms:1
- Half bathrooms:1
- Flooring:Carpet, Tile, Vinyl
- Kitchen Description:Dishwasher, Disposal, Microwave, Oven, Refrigerator
- Basement:Yes
- Basement Description:Crawl Space
- Living area:1,266 sq. ft.
Heating and cooling
- Cooling:Central Air
- Heating:Forced Air, Natural Gas
Structure and exterior
- Roof:Composition
- Year built:2026
- Building area:1,266 sq. ft.
- Lot area:0.03 Acres
- Construction Materials:Frame
- Exterior Features:Patio
- Levels:2 Story
Schools
- High school:Thunderridge
- Middle school:Ranch View
- Elementary school:Roxborough
Utilities
- Water:Public
- Sewer:Public Sewer
Finances and disclosures
- Price:$494,900
- Price per sq. ft.:$390.92
- Tax amount:$6,038 (2024)
Features and amenities
- Laundry features:In Unit
- Amenities:Carbon Monoxide Detector(s), Double Pane Windows, Smoke Detector(s)
New listings near 8979 Yellowcress Street
- Open Sun, 1 to 3pmNew
$595,000Active3 beds 1 baths1,010 sq. ft.1454 W Lake Avenue, Littleton, CO 80120
MLS# 4900069Listed by: COMPASS - DENVER - Open Sat, 11am to 2pmNew
$555,499Active3 beds 2 baths1,476 sq. ft.9896 W Freiburg Drive #1B, Littleton, CO 80127
MLS# 5101979Listed by: RE/MAX PROFESSIONALS - New
$295,500Active1 beds 1 baths738 sq. ft.1632 W Canal Circle #933, Littleton, CO 80120
MLS# 7887878Listed by: EXP REALTY, LLC - New
$225,000Active1 beds 1 baths618 sq. ft.4899 S Dudley Street #10H, Littleton, CO 80123
MLS# 8309494Listed by: LIV SOTHEBY'S INTERNATIONAL REALTY - New
$405,000Active3 beds 4 baths1,926 sq. ft.4349 W Ponds Circle, Littleton, CO 80123
MLS# 6946376Listed by: PROPERTY STEWARDS - Open Sat, 12 to 2pmNew
$499,900Active3 beds 2 baths1,736 sq. ft.5634 S Huron Street, Littleton, CO 80120
MLS# 6958281Listed by: MADISON & COMPANY PROPERTIES - Coming SoonOpen Sat, 12 to 2pm
$685,000Coming Soon5 beds 2 baths6158 S Westview Street, Littleton, CO 80120
MLS# 5977146Listed by: COMPASS - DENVER - Coming SoonOpen Sat, 12 to 2pm
$400,000Coming Soon3 beds 2 baths551 W Crestline Circle #9D2, Littleton, CO 80120
MLS# 4053172Listed by: THE AGENCY - DENVER - New
$570,000Active2 beds 2 baths1,476 sq. ft.9836 W Freiburg Drive #B, Littleton, CO 80127
MLS# 9101385Listed by: SHOWCASE PROPERTIES UNLIMITED - New
$315,000Active2 beds 1 baths706 sq. ft.4899 S Dudley Street #H8, Littleton, CO 80123
MLS# 5544300Listed by: EXIT REALTY DTC, CHERRY CREEK, PIKES PEAK.