214 Varnum St Nw, Washington, DC 20011
Local realty services provided by:Better Homes and Gardens Real Estate Reserve
214 Varnum St Nw,Washington, DC 20011
$1,200,000
- 3 Beds
- 4 Baths
- 1,652 sq. ft.
- Townhouse
- Active
Listed by: khodayar amirbeiki
Office: realty advantage of maryland llc.
MLS#:DCDC2248688
Source:BRIGHTMLS
Price summary
- Price:$1,200,000
- Price per sq. ft.:$726.39
About this home
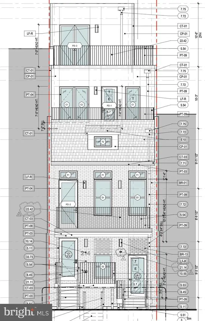
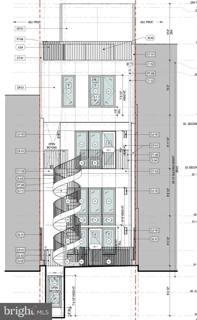
To-be-built multi-unit building in the heart of Washington, DC. Construction has already begun, and all drawings and permits are completed. The building will feature a collection of one-, two-, and three-bedroom units with open-concept layouts, abundant natural light, private balconies, and high-end finishes. Conveniently located near dining, shopping, and entertainment, offering modern city living with comfort and style. Listing Agent holds a partial ownership interest.
Contact an agent
Home facts
- Year built:1923
- Listing ID #:DCDC2248688
- Added:3 day(s) ago
- Updated:March 16, 2026 at 01:41 PM
Rooms and interior
- Bedrooms:3
- Total bathrooms:4
- Full bathrooms:3
- Half bathrooms:1
- Basement:Yes
- Basement Description:Front Entrance, Fully Finished, Heated, Outside Entrance, Rear Entrance, Sump Pump, Windows
- Living area:1,652 sq. ft.
Heating and cooling
- Heating:Electric, Hot Water
Structure and exterior
- Year built:1923
- Building area:1,652 sq. ft.
- Lot area:0.06 Acres
- Architectural Style:Colonial
- Construction Materials:Brick
- Foundation Description:Concrete Perimeter
- Levels:4 Story
Utilities
- Water:Public
- Sewer:Public Sewer
Finances and disclosures
- Price:$1,200,000
- Price per sq. ft.:$726.39
- Tax amount:$20,137 (2025)
Parking
- Parking description:Off Street
New listings near 214 Varnum St Nw
- Coming SoonOpen Sat, 11am to 1pm
$315,000Coming Soon1 beds 1 baths1 Scott Cir Nw #106, WASHINGTON, DC 20036
MLS# DCDC2250650Listed by: COMPASS - New
$330,000Active3 beds 3 baths1,896 sq. ft.883 Barnaby St Se, WASHINGTON, DC 20032
MLS# DCDC2250310Listed by: NORTHROP REALTY - Coming SoonOpen Sun, 2 to 4pm
$524,750Coming Soon4 beds 4 baths4521 Clay St Ne, WASHINGTON, DC 20019
MLS# DCDC2249776Listed by: TTR SOTHEBY'S INTERNATIONAL REALTY - New
$179,524Active3 beds 2 baths1,539 sq. ft.1429 Girard St Nw #205, WASHINGTON, DC 20009
MLS# DCDC2250700Listed by: EXP REALTY, LLC - New
$682,500Active4 beds 3 baths1,520 sq. ft.3323 Sherman Ave Nw, WASHINGTON, DC 20010
MLS# DCDC2250606Listed by: RLAH @PROPERTIES - New
$599,000Active8 beds -- baths2,508 sq. ft.408 Newcomb St Se, WASHINGTON, DC 20032
MLS# DCDC2250686Listed by: EPIQUE REALTY - New
$629,000Active3 beds 4 baths1,480 sq. ft.1249 Owen Pl Ne, WASHINGTON, DC 20002
MLS# DCDC2250688Listed by: SIGNATURE HOME REALTY LLC - New
$700,000Active6 beds -- baths2,592 sq. ft.52 Forrester St Sw, WASHINGTON, DC 20032
MLS# DCDC2250690Listed by: BENNETT REALTY SOLUTIONS - Coming SoonOpen Sun, 11am to 1pm
$539,000Coming Soon2 beds 2 baths711 15th St Ne #4, WASHINGTON, DC 20002
MLS# DCDC2250684Listed by: SAMSON PROPERTIES - New
$2,300,000Active3 beds 3 baths2,304 sq. ft.700 New Hampshire Ave Nw #1218, WASHINGTON, DC 20037
MLS# DCDC2242322Listed by: WINSTON REAL ESTATE, INC.