109 Avenue D, Fort Pierce, FL 34950
Local realty services provided by:Better Homes and Gardens Real Estate Florida 1st
Listed by: candace garber
Office: trudeals realty corp833-878-3325
MLS#:A11978766
Source:SEFMLS
Price summary
- Price:$495,000
About this home
Coastal Living, Your Way: Cleared Lot + Custom Build in the Heart of Fort Pierce
Step into the vibrant energy of the Fort Pierce Downtown District! This isn't just a vacant lot—it’s the canvas for your next chapter. Situated at 109 Avenue D, this completely cleared property puts you minutes away from the pristine Florida waterfront, the famous Saturday Farmer’s Market, and the chic dining scene that defines this historic coastal town.
The Power of Choice
Whether you are a family looking for a spacious 8,600 sq. ft. estate or an investor seeking a high-yield dual-lot opportunity, this property delivers.
The Single Home Site: Create a private oasis with a massive yard.
The Twin Lot Option: Split the parcel into two 4,300 sq. ft. lots.
Modern Design Meets Coastal Charm
Skip the years of architectural planning! Our builder has stunning floor plans ready to go:
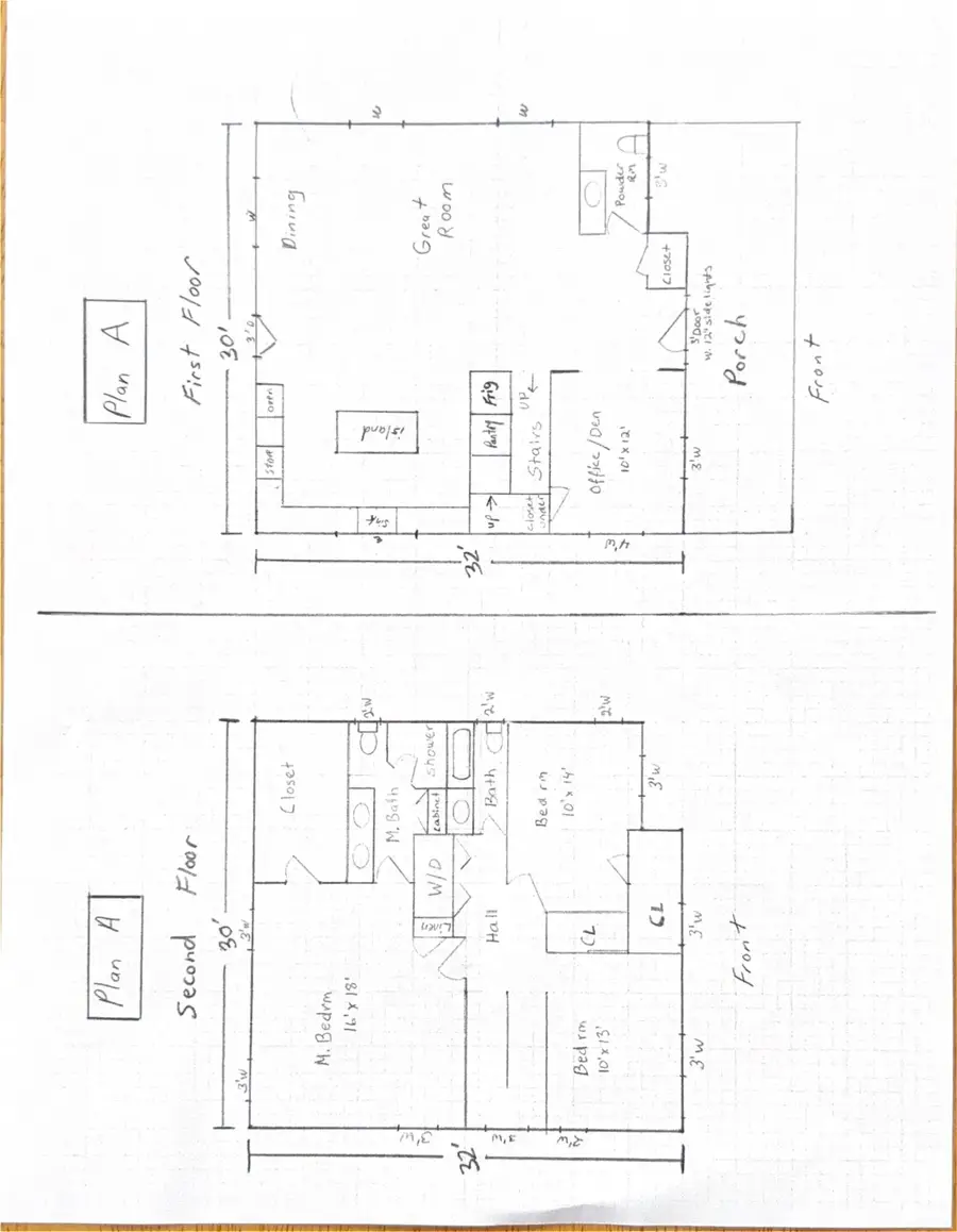
The Main House: 2,160 sq. ft. of sophisticated two-story living (3BR/2.5BA).
Plans include a detached garage with the option to add a 308 sq. ft. studio apartment above—perfect for an Airbnb, a home office, or a mother-in-law suite.
From the sunrise over the Indian River to the sunset dinners at local favorites like 12A Buoy or On the Edge Bar & Grill, this is the lifestyle you’ve been looking for. Plans available upon request. Will build to suit....
Contact an agent
Home facts
- Listing ID #:A11978766
- Updated:April 26, 2026 at 09:55 AM
Structure and exterior
- Lot area:0.2 Acres
Utilities
- Water:Public, Water Available
- Sewer:Public Sewer, Sewer Available
Finances and disclosures
- Price:$495,000
- Tax amount:$5,000 (2025)
New listings near 109 Avenue D
- New
$266,990Active3 beds 3 baths1,440 sq. ft.98 Savannah Lakes Boulevard, Fort Pierce, FL 34982
MLS# B26020384Listed by: MALTBIE REALTY GROUP - New
$324,990Active3 beds 3 baths1,635 sq. ft.164 Savannah Lakes Boulevard, Fort Pierce, FL 34982
MLS# B26020389Listed by: MALTBIE REALTY GROUP - New
$289,000Active2 beds 2 baths1,687 sq. ft.43 La Villa Way, Fort Pierce, FL 34951
MLS# B26020338Listed by: FLORIDA LISTING SERVICE, LLC - New
$289,000Active3 beds 2 baths1,753 sq. ft.6728 Spanish Lakes Boulevard, Fort Pierce, FL 34951
MLS# B26020322Listed by: FLORIDA LISTING SERVICE, LLC - New
$375,000Active4 beds 2 baths1,916 sq. ft.5605 Amusement Avenue, Fort Pierce, FL 34947
MLS# B26020286Listed by: THE PRICE IS RIGHT REAL ESTATE LLC - New
$475,000Active3 beds 2 baths1,867 sq. ft.3120 N Highway A1a #402, Fort Pierce, FL 34949
MLS# B26020102Listed by: OCEAN REAL ESTATE OF HUTCHINSO - New
$1,000,095Active3 beds 3 baths3,220 sq. ft.3646 S Jenkins Road, Fort Pierce, FL 34981
MLS# B26019949Listed by: LPT REALTY, LLC - New
$1,300,000Active10 Acres3646 S Jenkins Lot 1 Road, Fort Pierce, FL 34981
MLS# B26019962Listed by: LPT REALTY, LLC - New
$145,000Active2 beds 2 baths1,280 sq. ft.945 Savannas Point Drive, Fort Pierce, FL 34982
MLS# B26020019Listed by: BERKSHIRE HATHAWAY FLORIDA REALTY - New
$350,000Active3 beds 3 baths1,552 sq. ft.3532 Sunrise Boulevard, Fort Pierce, FL 34982
MLS# B26020052Listed by: EXP REALTY LLC