4984 Topsail Drive, Nokomis, FL 34275

Local realty services provided by:Better Homes and Gardens Real Estate Atchley Properties
4984 Topsail Drive,Nokomis, FL 34275
$389,000
  • 0.26 Acres
  • Lots / Land
  • Active
Listed by: danielle dietrich, pa
Office: coldwell banker realty
MLS#:A4677531
Source:MFRMLS

Price summary

  • Price:$389,000
  • Monthly HOA dues:$258.33

About this home

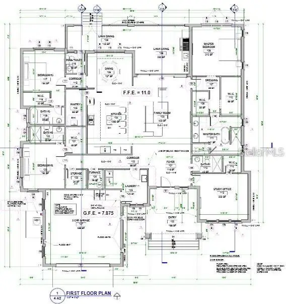
Offered AS-IS, this partially completed residential project presents a rare opportunity to build a custom home in the highly desirable Blackburn Estates community. Construction to date includes completed footers and stem walls filled with soil. The sale conveys active permits, approved building plans, a survey, drainage plan, and the full permit set, along with remaining building materials—most notably a complete package of high-end, impact-resistant hurricane-rated windows and doors. Buyers may choose to continue with the current builder or engage a builder of their choice, with all remaining construction to be completed at the buyer’s expense. Surrounded by multi-million-dollar homes and located just minutes from some of the area’s most beautiful beaches, the property also offers convenient access to the Intracoastal Waterway, ideal for kayaking, fishing, and waterfront recreation. An exceptional opportunity to complete a custom residence in a premier location—projects of this...

Contact an agent

contact an agent

Yes, I would like more information. Please use and/or share my information with a BHGRE®  affiliated agent to contact me about my real estate needs. By clicking Send message, I request to be contacted by phone or text message and consent to being contacted by automated means. I understand that my consent to receive calls or texts is not a condition of purchasing any property, goods, or services. Alternatively, I understand that I can access real estate services by email or I can contact the agent myself.

If a BHGRE®  affiliated agent is not available in the area where I need assistance, I agree to be contacted by a real estate agent affiliated with another brand owned or licensed by Anywhere Real Estate (CENTURY 21® , Coldwell Banker® , Corcoran® , ERA® , Sotheby's International Realty® ).
 I acknowledge that I have read and agree to theTerms of useandPrivacy notice

Home facts

  • Listing ID #:A4677531
  • Added:137 day(s) ago
  • Updated:May 26, 2026 at 12:07 PM

Structure and exterior

  • Lot area:0.26 Acres
  • Levels:1 Story

Utilities

  • Water:Public, Water Connected
  • Sewer:Public, Public Sewer, Sewer Connected

Finances and disclosures

  • Price:$389,000
  • Tax amount:$2,849 (2025)

Features and amenities

  • Amenities:Electricity Available
  • Pool features:Public Pool
MLS LogoThe information being provided by Stellar Mls is for the consumer's personal, non-commercial use and may not be used for any purpose other than to identify prospective properties consumer may be interested in purchasing. Any information relating to real estate for sale referenced on this web site comes from the Internet Data Exchange (IDX) program of the Stellar Mls. Better Homes and Gardens Real Estate Atchley Properties is not a Multiple Listing Service (MLS), nor does it offer MLS access. This website is a service of Better Homes and Gardens Real Estate Atchley Properties, a broker participant of Stellar Mls. This web site may reference real estate listing(s) held by a brokerage firm other than the broker and/or agent who owns this web site. The accuracy of all information, regardless of source, including but not limited to open house information, square footages and lot sizes, is deemed reliable but not guaranteed and should be personally verified through personal inspection by and/or with the appropriate professionals. The data contained herein is copyrighted by Stellar Mls and is protected by all applicable copyright laws. Any unauthorized dissemination of this information is in violation of copyright laws and is strictly prohibited. Properties in listings may have been sold or may no longer be available. Copyright 2026 Stellar Mls. All rights reserved.