3900 W Shamrock, Tallahassee, FL 32309
Local realty services provided by:Better Homes and Gardens Real Estate Florida 1st
Listed by: suzanne mcghee
Office: mattox realty, inc
MLS#:396448
Source:FL_TBR
Price summary
- Price:$695,000
- Price per sq. ft.:$275.9
About this home
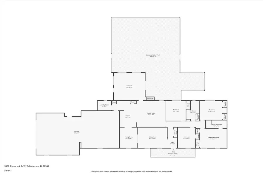
One or more photo(s) has been virtually staged. Beautifully updated and move-in ready, 4BR/2.5BA pool home. Very flexible floor plan with plenty of space to arrange this home as needed for your lifestyle... Welcoming foyer opens to a light filled Living/Dining room. Kitchen with plenty of cabinets and counters space opens to the family room and sunroom. So many options for the large garage, ~52x27 (see floor plan) space can be separated by garage doors, each section has a mini split system, 2 sets of garage doors, great for a workshop, pets, extra play space... Screened-in pool and patio offers a beautiful outdoor living space + a firepit in the privacy fenced yard. Whole house generator and crawl space encapsulated. Privacy fenced backyard offers space for playing, pets, gardening... Side entry garage from Cahir Dr.
Contact an agent
Home facts
- Year built:1977
- Listing ID #:396448
- Added:88 day(s) ago
- Updated:May 21, 2026 at 02:49 PM
Rooms and interior
- Bedrooms:4
- Total bathrooms:3
- Full bathrooms:2
- Half bathrooms:1
- Flooring:Tile
- Kitchen Description:Dishwasher, Ice Maker, Oven, Pantry, Range, Refrigerator
- Living area:2,519 sq. ft.
Heating and cooling
- Cooling:Ceiling Fans, Central Air, Ductless, Electric
- Heating:Central, Ductless, Electric, Natural Gas, Wood
- Central air:Yes
Structure and exterior
- Year built:1977
- Building area:2,519 sq. ft.
- Lot area:0.65 Acres
- Architectural Style:Traditional
- Construction Materials:Brick
- Exterior Features:Deck, Patio, Porch, Screened
- Foundation Description:Crawlspace
- Levels:1 Story
Schools
- High school:CHILES
- Middle school:William J. Montford Middle School
- Elementary school:DESOTO TRAIL
Utilities
- Sewer:Public Sewer
Finances and disclosures
- Price:$695,000
- Price per sq. ft.:$275.9
Features and amenities
- Amenities:Entrance Foyer, Window Treatments
- Pool features:In Ground, Liner, Screen Enclosure, Vinyl
Parking
- Parking description:Three Car Garage
- Garage:Yes
- Garage spaces:3
New listings near 3900 W Shamrock
- New
$475,000Active5 beds 2 baths2,266 sq. ft.1176 Stony Creek Way, Tallahassee, FL 32317
MLS# 400202Listed by: RE/MAX PROFESSIONALS REALTY - New
$324,000Active2 beds 2 baths1,732 sq. ft.334 Hunters Crossing, Tallahassee, FL 32312
MLS# 400193Listed by: BIG FISH REAL ESTATE SERVICES - Open Sat, 2 to 4pmNew
$824,900Active5 beds 4 baths3,389 sq. ft.2383 Sweet Meadow Vis, Tallahassee, FL 32308
MLS# 400196Listed by: HILL SPOONER & ELLIOTT INC - New
$1,499,000Active5 beds 6 baths6,280 sq. ft.2998 E Golden Eagle Drive, Tallahassee, FL 32312
MLS# 400197Listed by: EXP REALTY, LLC - New
$194,500Active2 beds 2 baths1,044 sq. ft.2905 Richview Park Circle, Tallahassee, FL 32301
MLS# 400201Listed by: PENNY HERMAN REALTY - Open Mon, 10am to 2pmNew
$269,000Active3 beds 2 baths1,294 sq. ft.2059 Little River Lane, Tallahassee, FL 32311
MLS# 400182Listed by: KELLER WILLIAMS TOWN & COUNTRY - New
$1,210,000Active4 beds 5 baths4,194 sq. ft.8012 Oak Grove Plantation Road, Tallahassee, FL 32312
MLS# 400183Listed by: WORD & COMPANY REALTY - New
$1,079,000Active4 beds 4 baths3,653 sq. ft.2613 Wharton Circle, Tallahassee, FL 32312
MLS# 400186Listed by: CENTURY 21 FIRST STORY - New
$232,000Active3 beds 2 baths1,173 sq. ft.5231 Water Valley Drive, Tallahassee, FL 32303
MLS# 400180Listed by: COLDWELL BANKER HARTUNG - New
$750,000Active4 beds 3 baths2,729 sq. ft.1002 Baum Road, Tallahassee, FL 32317
MLS# 400176Listed by: KELLER WILLIAMS TOWN & COUNTRY