424 Hazel Drive, Locust Grove, GA 30248
Local realty services provided by:Better Homes and Gardens Real Estate Metro Brokers
424 Hazel Drive,Locust Grove, GA 30248
$429,075
- 4 Beds
- 3 Baths
- 2,608 sq. ft.
- Single family
- Active
Listed by: latavia elder
Office: d.r. horton realty of georgia, inc.
MLS#:10732141
Source:METROMLS
Price summary
- Price:$429,075
- Price per sq. ft.:$164.52
About this home
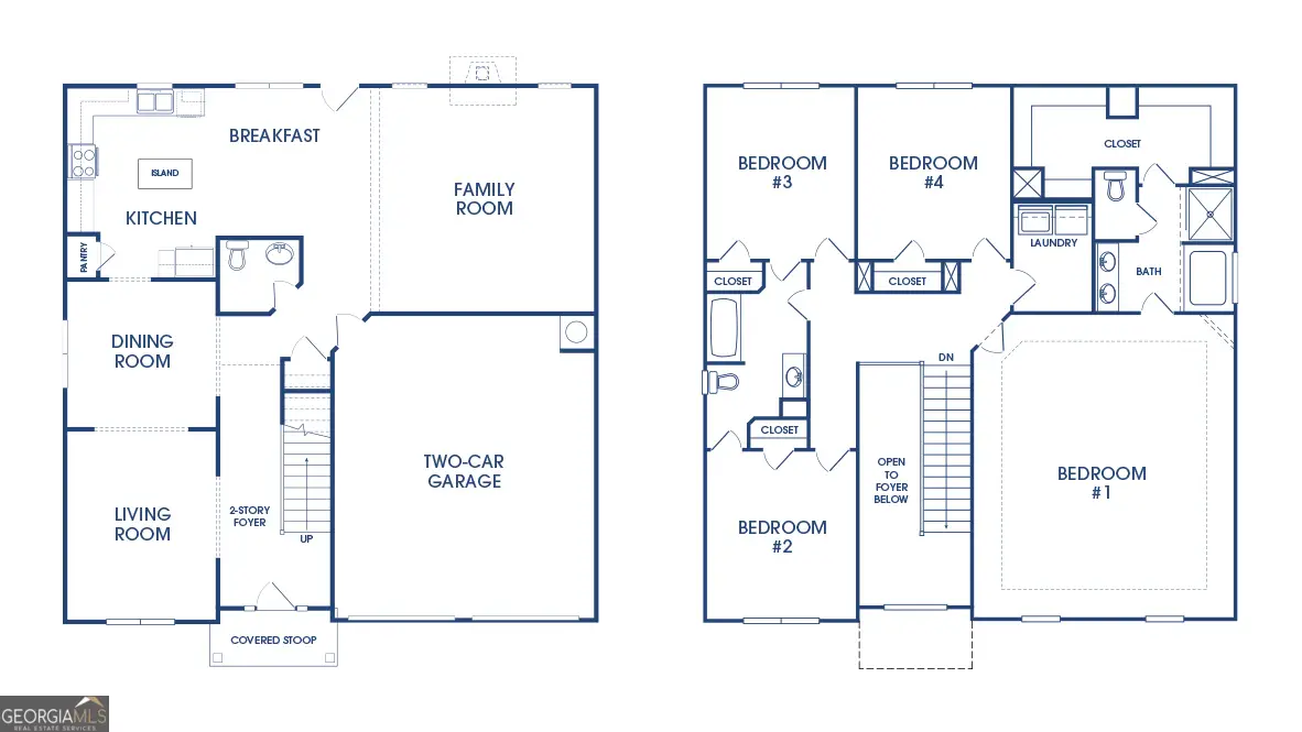
The "PACKARD FLOOR PLAN" is a 4-bedroom, 2 full baths plus a powder room two-story home covering 2,608 sqft. Traditional in design but modern in features, this home will never go out of style. Open the door to a formal living room and adjacent formal dining room so you never have to compromise when entertaining family and friends. Beyond is an island kitchen and a casual dining area perfect for quick bites. With stainless steel appliances, soft close cabinetry and Quartz countertops, home cooks will feel right at ease. Plus, there is an open and airy family room so everyone can get involved. Upstairs offers a must-see oversized bedroom suite with plenty pf space to create a home office or just an area to lounge. The spa-like bath includes a garden tub, separate shower and dual vanities plus generous closets. Secondary bedrooms have extra storage and there is a well-appointed hall bath. Cabinet color options include gray, white and burlap. Clabana, swimming pool, and playground. You will never be too far from home with Home Is Connected. Your new home is built with an industry leading suite of smart home products that keep you connected with the people and place you value most. Photos used for illustrative purposes and do not depict actual home....
Contact an agent
Home facts
- Year built:2026
- Listing ID #:10732141
- Updated:April 24, 2026 at 10:52 AM
Rooms and interior
- Bedrooms:4
- Total bathrooms:3
- Full bathrooms:2
- Half bathrooms:1
- Flooring:Carpet
- Dining Description:Living Room/Dining Room Combo
- Bathrooms Description:Double Vanity, Separate Shower, Soaking Tub
- Kitchen Description:Cooktop, Dishwasher, Microwave, Stainless Steel Appliance(s)
- Bedroom Description:Walk-In Closet(s)
- Living area:2,608 sq. ft.
Heating and cooling
- Cooling:Central Air, Dual, Zoned
- Heating:Electric
- Central air:Yes
Structure and exterior
- Roof:Composition
- Year built:2026
- Building area:2,608 sq. ft.
- Lot area:0.21 Acres
- Lot Features:Level
- Architectural Style:Brick Front, Craftsman, Traditional
- Construction Materials:Concrete
- Foundation Description:Slab
- Levels:2 Story
Schools
- High school:Locust Grove
- Middle school:Locust Grove
- Elementary school:Locust Grove
Utilities
- Water:Public
- Sewer:Public Sewer, Sewer Connected
Finances and disclosures
- Price:$429,075
- Price per sq. ft.:$164.52
Features and amenities
- Appliances:Cooktop, Dishwasher, Microwave, Stainless Steel Appliance(s)
- Laundry features:Upper Level
- Smart home:Yes
Parking
- Total parking spaces:2
- Parking description:Garage
- Garage:Yes
New listings near 424 Hazel Drive
- New
$350,000Active3 beds 2 baths2,022 sq. ft.217 High Court Way, Locust Grove, GA 30248
MLS# 10739832Listed by: EveryState - New
$450,000Active4 beds 3 baths2,124 sq. ft.141 Kenney Way, Locust Grove, GA 30248
MLS# 7758492Listed by: PULTE REALTY OF GEORGIA, INC. - New
$275,000Active3 beds 2 baths1,368 sq. ft.701 Derek Place, Locust Grove, GA 30248
MLS# 7758268Listed by: ROCK RIVER REALTY, LLC. - New
$1,750,000Active125.18 Acres0 New Hope Road, Locust Grove, GA 30248
MLS# 10739152Listed by: Southern Classic Realtors - New
$269,900Active3 beds 3 baths1,804 sq. ft.403 Buckboard Lane, Locust Grove, GA 30248
MLS# 10738777Listed by: Atlanta Communities - New
$452,415Active4 beds 3 baths2,409 sq. ft.5368 Heron Bay Boulevard, Locust Grove, GA 30248
MLS# 10738789Listed by: Ashton Woods Realty - New
$485,000Active4 beds 4 baths3,074 sq. ft.308 Cinnamon Bark Pass, Locust Grove, GA 30248
MLS# 10738714Listed by: Georgia Real Estate Team - New
$405,900Active4 beds 3 baths59 Oak Road, Locust Grove, GA 30248
MLS# 7757255Listed by: THE LEGACY REAL ESTATE GROUP, LLC - New
$275,000Active3 beds 2 baths825 Lincoln Square, Locust Grove, GA 30248
MLS# 10737948Listed by: Keller Williams West Atlanta - New
$320,000Active4 beds 2 baths1,978 sq. ft.217 Happy Trail, Locust Grove, GA 30248
MLS# 10737744Listed by: Market South Properties Inc.