528 Lillian Way, Statham, GA 30666
Local realty services provided by:Better Homes and Gardens Real Estate Metro Brokers
528 Lillian Way,Statham, GA 30666
$368,000
- 4 Beds
- 3 Baths
- 2,340 sq. ft.
- Single family
- Active
Listed by: tamra wade770-502-6232
Office: re/max tru
MLS#:7717351
Source:FIRSTMLS
Price summary
- Price:$368,000
- Price per sq. ft.:$157.26
- Monthly HOA dues:$29.17
About this home
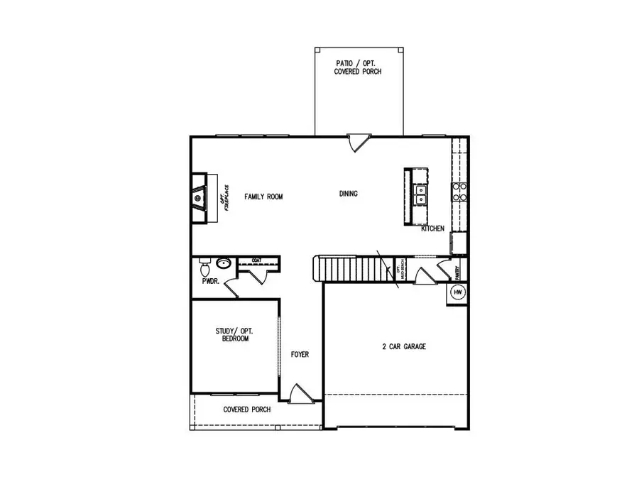
The Baxley plan built by My Home Communities. Ellington Farms offers beautifully crafted new construction homes conveniently located just minutes from Athens and Highway 316, providing easy access to shopping, dining, and commuter routes. This thoughtfully designed community blends modern style with low-maintenance living. Homes feature durable textured cement siding with Hardiplank Board & Batten or shake accents (per plan), complemented by stone watertables, architectural shingles, and bronze aluminum gutters. Each home includes a 2-car front-entry garage and a concrete patio, perfect for outdoor enjoyment. Inside, buyers will appreciate 9' ceilings on the main level, open and functional floor plans, and quality finishes throughout. Kitchens are appointed with 36" shaker-style painted cabinets with crown trim, granite countertops, stainless steel appliances, undermount double-bowl stainless steel sink, and islands (per plan)-ideal for both everyday living and entertaining. Primary suites feature dual vanities, granite countertops, elongated toilets, and a 4' fiberglass shower, while all bathrooms include granite surfaces. Additional interior highlights include brushed nickel lighting, Peerless satin nickel fixtures, modern 2-panel shaker interior doors, metal balusters, and generous shelving in laundry rooms, closets, and pantries. Ellington Farms homes are built with energy efficiency in mind, offering R30 ceiling and R13 wall insulation, 14 SEER electric HVAC systems, Low-E vinyl windows, and programmable thermostats (per plan). Community HOA is affordable with annual dues of $350 and includes a QBW Home Buyer's Warranty for added peace of mind. Discover quality new homes in a convenient location-Ellington Farms is the perfect place to call home.
Contact an agent
Home facts
- Year built:2026
- Listing ID #:7717351
- Updated:March 10, 2026 at 01:22 PM
Rooms and interior
- Bedrooms:4
- Total bathrooms:3
- Full bathrooms:2
- Half bathrooms:1
- Flooring:Carpet, Vinyl
- Dining Description:Open Concept
- Bathrooms Description:Double Vanity, Shower Only
- Kitchen Description:Kitchen Island
- Living area:2,340 sq. ft.
Heating and cooling
- Cooling:Central Air
- Heating:Central, Electric
Structure and exterior
- Roof:Composition, Shingle
- Year built:2026
- Building area:2,340 sq. ft.
- Lot Features:Level
- Architectural Style:Traditional
- Construction Materials:Cement Siding, HardiPlank Type
- Exterior Features:Covered, Front Porch, Patio
- Levels:2 Story
Schools
- High school:Winder-Barrow
- Middle school:Bear Creek - Barrow
- Elementary school:Statham
Utilities
- Water:Public
- Sewer:Public Sewer
Finances and disclosures
- Price:$368,000
- Price per sq. ft.:$157.26
- Tax amount:$708 (2025)
Features and amenities
- Laundry features:Laundry Room, Upper Level
- Amenities:Entrance Foyer, High Ceilings 9 ft Main
New listings near 528 Lillian Way
- New
$310,000Active3 beds 2 baths1,206 sq. ft.406 Ellerbe Drive, Statham, GA 30666
MLS# 10706811Listed by: Dwell Real Estate - New
$414,300Active5 beds 3 baths2,511 sq. ft.438 Abbott Road, Statham, GA 30666
MLS# CL350794Listed by: DR HORTON REALTY OF GEORGIA, INC. - New
$415,900Active5 beds 3 baths2,511 sq. ft.173 Defilippe Drive, Statham, GA 30666
MLS# CL350774Listed by: DR HORTON REALTY OF GEORGIA, INC. - New
$368,000Active4 beds 3 baths2,340 sq. ft.73 Edith Court, Statham, GA 30666
MLS# CL346433Listed by: SIGNATURE REAL ESTATE OF ATHENS, LLC - New
$422,700Active5 beds 4 baths2,721 sq. ft.449 Abbott Road, Statham, GA 30666
MLS# 10705357Listed by: D.R. Horton Realty of Georgia, Inc. - New
$393,300Active4 beds 3 baths2,338 sq. ft.454 Abbott Road, Statham, GA 30666
MLS# CL350730Listed by: DR HORTON REALTY OF GEORGIA, INC. - New
$383,000Active4 beds 3 baths2,517 sq. ft.72 Edith Court, Statham, GA 30666
MLS# 10704476Listed by: Signature Real Estate of Athens - New
$319,990Active4 beds 3 baths1,756 sq. ft.115 Charlotte Drive, Statham, GA 30666
MLS# 10703769Listed by: RAC Properties of Athens, Inc. - New
$309,500Active3 beds 2 baths1,270 sq. ft.304 Seminole Circle, Statham, GA 30666
MLS# 10703559Listed by: Keller Williams Greater Athens - New
$396,800Active4 beds 3 baths2,250 sq. ft.470 Abbott Road, Statham, GA 30666
MLS# CL350531Listed by: DR HORTON REALTY OF GEORGIA, INC.