310 Harvest Avenue, Hinckley, IL 60520
Local realty services provided by:Better Homes and Gardens Real Estate Star Homes
310 Harvest Avenue,Hinckley, IL 60520
$378,950
- 4 Beds
- 3 Baths
- 2,063 sq. ft.
- Single family
- Pending
Listed by: bill flemming
Office: homesmart connect llc.
MLS#:12533687
Source:MLSNI
Price summary
- Price:$378,950
- Price per sq. ft.:$183.69
- Monthly HOA dues:$43.75
About this home
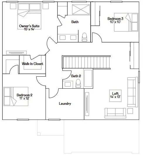
READY FOR FEBRUARY DELIVERY!! Homesite #0063 Experience the Meadowlark model, a masterfully designed two-story home combining style and convenience. With four bedrooms, two bathrooms, and a powder room, this home offers the perfect space for modern living. The first floor features a bright, open-concept layout, with a spacious family room, accessible dining area, and an impressive kitchen. The kitchen includes a large island with beautiful countertops, ample cabinetry, stainless steel appliances, and a built-in pantry for added storage. Situated on the second floor, the owner's suite provides a peaceful haven, complete with a walk-in closet and a spa-inspired bathroom with double sinks, a deluxe shower, and high-end finishes. Two additional bedrooms share a full bathroom, and the practicality of a second-floor laundry room enhances the home's livability. The versatile flex space offer endless possibilities for a home office, entertainment area, or extra living space to suit your needs. Throughout the home, thoughtful details like luxury vinyl plank flooring, quartz countertops, LED lighting, and decorative railings enhance both the aesthetic and functionality of every room. *Photos are not this actual home* Exteriors will be Indigo colored vinyl sidings with Huron colored stone. Royal Estates is a brand-new community of single-family homes for sale in Hinckley, IL, offering residents a quiet, scenic setting with easy access to nature, recreation, and enriching experiences. Outdoor lovers will appreciate close proximity to Shabbona Lake State Park, a 105-acre haven for fishing, boating, hiking, and wildlife watching. Its scenic trails and serene landscapes make it an ideal destination for both adventure and relaxation. For even more outdoor enjoyment, the Great Western Trail offers an 18.5-mile path perfect for hiking, biking, or a peaceful walk surrounded by lush greenery and abundant wildlife-a refreshing escape from the everyday. Just a short drive away, Northern Illinois University (NIU) brings a vibrant energy to the region with its cultural events, athletic programs, art galleries, and concerts. As a hub of innovation and education, NIU also offers world-class academics and research opportunities. At Royal Estates, you'll find the perfect blend of quiet small-town charm, access to outdoor recreation, and connection to world-class resources-making it a community where you can truly thrive.
Contact an agent
Home facts
- Year built:2025
- Listing ID #:12533687
- Added:17 day(s) ago
- Updated:January 03, 2026 at 08:59 AM
Rooms and interior
- Bedrooms:4
- Total bathrooms:3
- Full bathrooms:2
- Half bathrooms:1
- Living area:2,063 sq. ft.
Heating and cooling
- Cooling:Central Air
- Heating:Forced Air, Natural Gas
Structure and exterior
- Year built:2025
- Building area:2,063 sq. ft.
Schools
- High school:Hinckley-Big Rock High School
- Middle school:Hinckley-Big Rock Middle School
- Elementary school:Hinckley Big Rock Elementary Sch
Utilities
- Water:Public
- Sewer:Public Sewer
Finances and disclosures
- Price:$378,950
- Price per sq. ft.:$183.69
New listings near 310 Harvest Avenue
- New
$372,500Active4 beds 3 baths2,100 sq. ft.Address Withheld By Seller, Hinckley, IL 60520
MLS# 12533299Listed by: BERKSHIRE HATHAWAY HOMESERVICES STARCK REAL ESTATE
$368,990Active3 beds 2 baths2,203 sq. ft.670 Rustic Way, Hinckley, IL 60520
MLS# 12533600Listed by: HOMESMART CONNECT LLC
$357,000Pending4 beds 3 baths2,725 sq. ft.650 N View Street, Hinckley, IL 60520
MLS# 12528755Listed by: CIRCLE ONE REALTY
$700,000Active6 beds 2 baths3,250 sq. ft.16645 Lasher Road, Hinckley, IL 60520
MLS# 12524454Listed by: COLDWELL BANKER REAL ESTATE GROUP
$869,900Active4 beds 5 baths4,638 sq. ft.10731 Somonauk Road, Hinckley, IL 60520
MLS# 12516055Listed by: WEICHERT REALTORS SIGNATURE PROFESSIONALS
$367,985Pending3 beds 2 baths1,965 sq. ft.170 Christensen Street, Hinckley, IL 60520
MLS# 12509901Listed by: HOMESMART CONNECT LLC
$295,000Active4 beds 4 baths627 James Street, Hinckley, IL 60520
MLS# 12502374Listed by: SWANSON REAL ESTATE
$442,855Active4 beds 3 baths2,619 sq. ft.541 N. Oak Street, Hinckley, IL 60520
MLS# 12489549Listed by: HOMESMART CONNECT LLC
$380,000Active4 beds 3 baths2,203 sq. ft.140 Prairie Street, Hinckley, IL 60520
MLS# 12474719Listed by: HOMESMART CONNECT LLC