6130 Lockwood Drive, Rockford, IL 61109
Local realty services provided by:Better Homes and Gardens Real Estate Connections
6130 Lockwood Drive,Rockford, IL 61109
$239,500
- 3 Beds
- 2 Baths
- 1,516 sq. ft.
- Single family
- Active
Listed by:brandy graves
Office:keller williams realty signature
MLS#:12499279
Source:MLSNI
Price summary
- Price:$239,500
- Price per sq. ft.:$157.98
About this home
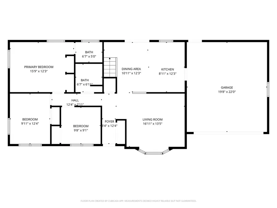
Welcome to River Grove Subdivision! This charming 3-bedroom, 1.5-bath ranch offers space, updates, and great amenities both inside and out. The home features abundant natural light and vinyl plank flooring throughout the spacious living room. Just off the living room, you'll find a large eat-in kitchen with sliding doors leading to a composite deck - perfect for enjoying crisp fall evenings overlooking the .60-acre fenced backyard with a fire pit area. There are two spacious bedrooms with newer carpet (2021) and a primary bedroom offering excellent storage and a private half bath. The finished basement includes a large rec room and additional rooms ideal for an office, playroom, or hobby space - plus plenty of storage. Enjoy not one, but two garages: An attached 2.5-car garage with a gas hookup, ready to be heated An additional detached 2-car garage with its own electric service, Wi-Fi garage door openers, and an attached three-season porch to relax in. Updates include: Refrigerator (2020), Furnace (2021), A/C, (2023)Well Tank(2023), Updated electrical panel. Low county taxes, close to the bike path, and truly move-in ready - this home checks all the boxes!
Contact an agent
Home facts
- Year built:1973
- Listing ID #:12499279
- Added:13 day(s) ago
- Updated:November 03, 2025 at 05:28 AM
Rooms and interior
- Bedrooms:3
- Total bathrooms:2
- Full bathrooms:1
- Half bathrooms:1
- Living area:1,516 sq. ft.
Heating and cooling
- Cooling:Central Air
- Heating:Natural Gas
Structure and exterior
- Year built:1973
- Building area:1,516 sq. ft.
- Lot area:0.6 Acres
Schools
- High school:Jefferson High School
- Middle school:Bernard W Flinn Middle School
- Elementary school:Arthur Froberg Elementary School
Finances and disclosures
- Price:$239,500
- Price per sq. ft.:$157.98
- Tax amount:$4,240 (2024)
New listings near 6130 Lockwood Drive
- New
$132,900Active3 beds 1 baths1,100 sq. ft.614 N 1st Street, Rockford, IL 61107
MLS# 12507978Listed by: RE/MAX LIBERTY - New
$5,500Active0.12 Acres2143 S 4th Street, Rockford, IL 61104
MLS# 12509279Listed by: KELLER WILLIAMS REALTY SIGNATURE - New
$5,500Active0.16 Acres2916 Custer Avenue, Rockford, IL 61101
MLS# 12509287Listed by: KELLER WILLIAMS REALTY SIGNATURE - New
$47,000Active2 beds 1 baths752 sq. ft.605 Garver Avenue, Rockford, IL 61102
MLS# 12509235Listed by: KELLER WILLIAMS REALTY SIGNATURE - New
$45,000Active2 beds 1 baths864 sq. ft.2213 Mulberry Street, Rockford, IL 61101
MLS# 12509220Listed by: KELLER WILLIAMS REALTY SIGNATURE - New
$275,000Active4 beds 3 baths2,749 sq. ft.2516 Highcrest Road, Rockford, IL 61107
MLS# 12508849Listed by: RE/MAX PROPERTY SOURCE - New
$275,000Active3 beds 2 baths3,101 sq. ft.6444 Abraham Drive, Rockford, IL 61109
MLS# 12508364Listed by: BERKSHIRE HATHAWAY HOMESERVICE - New
$185,000Active3 beds 2 baths1,458 sq. ft.4716 Manheim Road, Rockford, IL 61108
MLS# 12507525Listed by: DICKERSON & NIEMAN REALTORS - ROCKFORD - New
$165,000Active3 beds 2 baths1,475 sq. ft.610 Cottage Grove Avenue, Rockford, IL 61103
MLS# 12508143Listed by: DICKERSON & NIEMAN REALTORS - ROCKFORD - New
$51,900Active4 beds 1 baths1,482 sq. ft.928 North Avenue, Rockford, IL 61103
MLS# 12508266Listed by: CIRCLE ONE REALTY