712 61st Ave, Capitol Heights, MD 20743
Local realty services provided by:Better Homes and Gardens Real Estate Valley Partners
712 61st Ave,Capitol Heights, MD 20743
$239,995
- 6 Beds
- 3 Baths
- 3,000 sq. ft.
- Single family
- Active
Listed by: alicia hines
Office: taylor properties
MLS#:MDPG2199906
Source:BRIGHTMLS
Price summary
- Price:$239,995
- Price per sq. ft.:$80
About this home
Investor Alert – Over $200,000 in Equity Profit | New Construction Opportunity | One Block from Washington, DC
Exceptional investment opportunity just one block from Washington, DC. This new construction project is already well underway with permits approved, utilities installed, foundation completed and inspected, and plumbing groundworks completed and inspected.
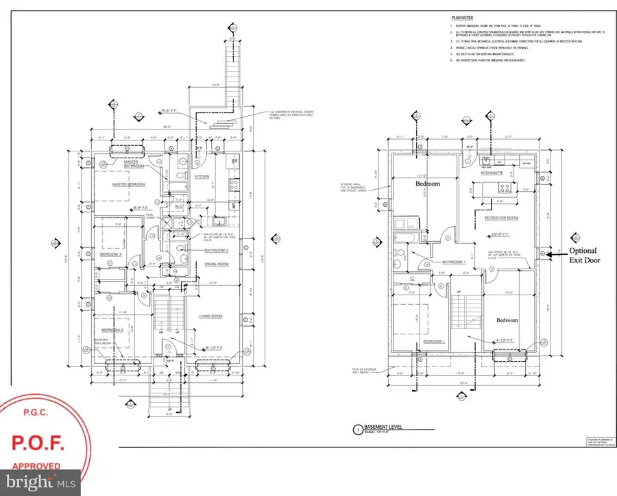
Upon completion, the property will feature a 3,000 sq ft, two-level home with 6 bedrooms and 3 bathrooms, designed as a two-unit style layout ideal for multi-generational living or rental income.
Each level will include approximately 1,500 sq ft of living space, featuring:
3 spacious bedrooms
1–2 full bathrooms
Full kitchen
Living room
Laundry area
Separate entrances and exits for each level
Large Driveway for 2-3 cars.
This flexible layout allows an owner to live in one unit and rent the other for strong cash flow, or rent both levels for maximum investment return.
The property sits on a flat, cleared lot on a quiet suburban street, offering privacy while still being steps from the DC boundary.
Project Status & Investment Highlights:
Permits active and current
Foundation completed and inspected
Plumbing groundworks completed and inspected
No stop-work orders
Floor plans and permits available
Estimated construction completion: 6–8 weeks
Estimated Costs to Complete:
Approx. $150,000 to finish construction
Lumber package for framing: approx. $17,000
Framing labor: approx. $27,000
Buyers may bring their own contractor or use the current construction team to complete the build.
Projected Value:
Comparable new construction homes in the area are selling for approximately $600,000, creating the potential for over $200,000 in equity upon completion.
Property sold as-is with active permits and approved plans, foundation and plumbing done only. No HOA or HOA Rules. Several blocks from metro. All information and project documentation available for verification. Cash, Hard Money or Construction Loans Only....
Contact an agent
Home facts
- Year built:2026
- Listing ID #:MDPG2199906
- Added:4 day(s) ago
- Updated:April 25, 2026 at 01:39 PM
Rooms and interior
- Bedrooms:6
- Total bathrooms:3
- Full bathrooms:3
- Living area:3,000 sq. ft.
Heating and cooling
- Cooling:Central A/C
- Heating:Central, Electric
Structure and exterior
- Year built:2026
- Building area:3,000 sq. ft.
- Lot area:0.13 Acres
- Architectural Style:Traditional
- Construction Materials:Advanced Framing
- Foundation Description:Concrete Perimeter
- Levels:2 Stories
Utilities
- Water:Public
- Sewer:No Septic System
Finances and disclosures
- Price:$239,995
- Price per sq. ft.:$80
- Tax amount:$531 (2025)
New listings near 712 61st Ave
- New
$350,000Active2 beds 1 baths708 sq. ft.507 Dateleaf Ave, CAPITOL HEIGHTS, MD 20743
MLS# MDPG2200546Listed by: RE/MAX LEADING EDGE - New
$374,900Active3 beds 2 baths1,650 sq. ft.4207 Will St, CAPITOL HEIGHTS, MD 20743
MLS# MDPG2200458Listed by: RE/MAX UNITED REAL ESTATE - Coming Soon
$415,000Coming Soon3 beds 3 baths5807 Dade St, CAPITOL HEIGHTS, MD 20743
MLS# MDPG2200296Listed by: REDFIN CORP - New
$367,000Active4 beds 3 baths1,125 sq. ft.5904 K St, CAPITOL HEIGHTS, MD 20743
MLS# MDPG2200172Listed by: TAYLOR PROPERTIES
$600,000Pending7 beds 3 baths3,168 sq. ft.5809 Burgundy St, CAPITOL HEIGHTS, MD 20743
MLS# MDPG2200190Listed by: MARATHON REAL ESTATE- New
$179,500Active1 beds 1 baths811 sq. ft.1321 Karen Blvd #208, CAPITOL HEIGHTS, MD 20743
MLS# MDPG2200120Listed by: S & S REALTY & INVESTMENT, LLC - New
$135,000Active0.09 Acres4 Akin Ave, CAPITOL HEIGHTS, MD 20743
MLS# MDPG2199950Listed by: TAYLOR PROPERTIES - Coming Soon
$415,000Coming Soon3 beds 2 baths1717 Arcadia Ave, CAPITOL HEIGHTS, MD 20743
MLS# MDPG2199654Listed by: SAMSON PROPERTIES - Open Sun, 1 to 2pmNew
$434,900Active3 beds 3 baths1,068 sq. ft.4615 Boosa St, CAPITOL HEIGHTS, MD 20743
MLS# MDPG2199766Listed by: SAMSON PROPERTIES