228 Woodsborough Place, Raleigh, NC 27601
Local realty services provided by:Better Homes and Gardens Real Estate Paracle
Listed by: tina caul, ladondria morris
Office: exp realty llc.
MLS#:10149761
Source:RD
Price summary
- Price:$835,000
- Price per sq. ft.:$401.44
- Monthly HOA dues:$120
About this home
A home that glows with natural light, flows with intention, and connects seamlessly to the energy of the city. This four story contemporary home was crafted for those who appreciate refined simplicity and seamless flow.
Flooded with natural light from oversized Pella windows, the main level offers an open and airy living experience anchored by a sleek fireplace, wide plank white oak flooring, and custom brass lighting that casts a soft glow across every surface. The gourmet kitchen blends form and function with warm oak cabinetry, a stunning waterfall edge quartz island, brushed gold hardware and fixtures, and designer pendants, creating a refined yet approachable heart of the home.
Upstairs, the second floor hosts two bedrooms including the spacious primary suite, each thoughtfully designed for comfort and privacy. The primary bedroom connects to a serene ensuite bath with dual vanities, modern floor to ceiling tile selections, and a frameless glass shower.
As you ascend, motion sensor stair lighting guides your path, revealing meticulous craftsmanship and subtle architectural detail along the way. The top level opens to a rooftop terrace with gas, water, and power connections, ready for gatherings beneath the Raleigh skyline.
A lower level guest suite with private entry offers versatility for guests or a home office. Every inch of this home reflects intentional design and timeless style, from the soft neutral palette to precision trimmed gray doors and contemporary hardware.
Quality craftsmanship meets thoughtful service. This beautifully built home includes a builder blue tape walkthrough, allowing buyers to mark cosmetic touch ups prior to closing, along with a comprehensive new home orientation designed to ensure you feel confident and comfortable with every feature of your home from day one.
Ideally located moments from Fayetteville Street, Moore Square, and Raleigh's celebrated dining scene, 228 Woodsborough Place embodies architectural sophistication and effortless city living....
Contact an agent
Home facts
- Year built:2024
- Listing ID #:10149761
- Added:194 day(s) ago
- Updated:April 23, 2026 at 10:29 PM
Rooms and interior
- Bedrooms:4
- Total bathrooms:4
- Full bathrooms:4
- Rooms Total:7
- Flooring:Hardwood, Tile
- Bathrooms Description:Bathtub/Shower Combination, Walk-In Shower
- Kitchen Description:Dishwasher, Disposal, Stainless Steel Appliance(s)
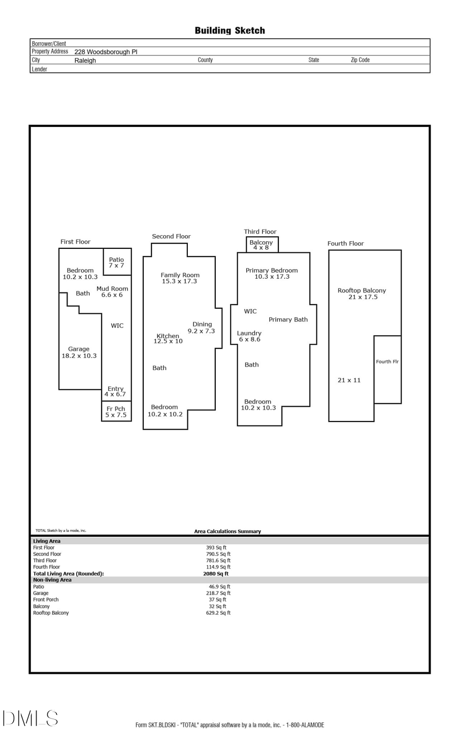
- Living area:2,080 sq. ft.
Heating and cooling
- Cooling:Ceiling Fan(s), Central Air, Electric
- Heating:Central, Electric, Forced Air, Heat Pump
- Central air:Yes
Structure and exterior
- Year built:2024
- Building area:2,080 sq. ft.
- Lot area:0.05 Acres
- Lot Features:Landscaped
- Architectural Style:Contemporary
- Construction Materials:HardiPlank Type
- Exterior Features:Front Porch, Rain Gutters
- Foundation Description:Slab
- Levels:Tri-Level
Schools
- High school:Wake - Broughton
- Middle school:Wake - Moore Square Museum
- Elementary school:Wake - Root
Utilities
- Water:Public
- Sewer:Public Sewer
Finances and disclosures
- Price:$835,000
- Price per sq. ft.:$401.44
- Tax amount:$8,747
Features and amenities
- Appliances:Dishwasher, Disposal, Stainless Steel Appliance(s), Tankless Water Heater
- Laundry features:Laundry Room, Upper Level
- Amenities:Ceiling Fan(s), Kitchen Island, Quartz Counters, Smooth Ceilings, Tankless Water Heater, Walk-In Closet(s)
Parking
- Parking description:Attached, Concrete, Driveway, Garage, Garage Faces Front
- Garage:Yes
- Garage spaces:1
New listings near 228 Woodsborough Place
- New
$1,500,000Active5 beds 5 baths4,465 sq. ft.3341 Cheswick Drive, Raleigh, NC 27609
MLS# 10162169Listed by: COLDWELL BANKER HPW - New
$2,495,000Active5 beds 7 baths4,600 sq. ft.2105 Manuel Street, Raleigh, NC 27612
MLS# 10162185Listed by: INSIGHT REAL ESTATE - New
$499,000Active3 beds 2 baths1,527 sq. ft.5200 Sedgefield Drive, Raleigh, NC 27609
MLS# 10162188Listed by: HODGE & KITTRELL SOTHEBY'S INT - New
$650,000Active3 beds 3 baths2,118 sq. ft.3901 Stags Leap Circle, Raleigh, NC 27612
MLS# 10162214Listed by: LONG & FOSTER REAL ESTATE INC/BRIER CREEK - New
$1,657,000Active5 beds 5 baths5,660 sq. ft.2105 Cadenza Lane, Raleigh, NC 27614
MLS# 10162224Listed by: COLDWELL BANKER HPW - New
$550,000Active3 beds 2 baths1,342 sq. ft.300 Worth Street, Raleigh, NC 27601
MLS# 10162225Listed by: KELLER WILLIAMS LEGACY - New
$248,500Active2 beds 2 baths1,108 sq. ft.6532 Hearthstone Drive, Raleigh, NC 27615
MLS# 10162226Listed by: KELLER WILLIAMS REALTY - New
$340,520Active2 beds 4 baths1,590 sq. ft.9710 Briertownes Parkway, Raleigh, NC 27617
MLS# 10162229Listed by: ELM STREET BUILDERS REALTY LLC - New
$1,400,000Active5 beds 3 baths3,557 sq. ft.2017 Noble Road, Raleigh, NC 27608
MLS# 10162232Listed by: SMART CHOICE REALTY COMPANY - New
$289,900Active3 beds 2 baths1,185 sq. ft.4405 Greenbrier Road, Raleigh, NC 27603
MLS# 10162234Listed by: SELLING TO GIVE