248 Long Ridge Dr., Murrells Inlet, SC 29576
Local realty services provided by:Better Homes and Gardens Real Estate Elliott Coastal Living
Office: century 21 boling & associates
MLS#:2601420
Source:SC_CCAR
Price summary
- Price:$697,000
- Price per sq. ft.:$160.9
- Monthly HOA dues:$59
About this home
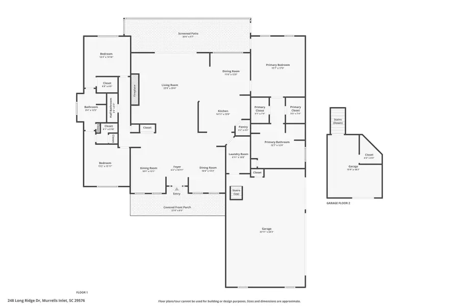
If you’ve been waiting for privacy, acreage, and a custom all-brick home on one level, this is the opportunity buyers rarely find — and it will not last. Situated on a quiet cul-de-sac with 1.26 acres backing to protected wooded area, this property offers the space and serenity people move to the Grand Strand for, while still being minutes to everything. Inside, you’ll find an open, flowing layout with hardwood floors, architectural columns, formal dining, spacious great room with gas fireplace, and a beautifully appointed kitchen featuring custom cabinetry, quartz countertops, center island, breakfast bar, pantry, stainless appliances with NEW range, and tile flooring. The breakfast nook and screened porch overlook a private backyard filled with natural wildlife — deer, egrets, turkeys, owls, and hawks — creating a peaceful retreat right at home. The split-bedroom floor plan is one of the most desirable layouts, with a large primary suite featuring a double tray ceiling, private porch access, two walk-in closets, and a spa-style bath with dual sinks, walk-in shower, tile floors, and room to add a soaking tub. Guest bedrooms are generously sized with walk-in closets and share a Jack-and-Jill bath, plus a separate powder room for visitors. The Laundry room includes tile flooring and utility sink. The 3-car side-load garage with 12-foot ceilings is a rare bonus, complete with a temperature-controlled storage room (2020) with LVP flooring and steel underframe — ideal for hobbies, workshop, or extra storage. Major buyer-confidence upgrades are already completed: 2 hot water heaters (2022), Well pump (2023), All insulated garage doors & motors (2020), 8-zone irrigation system, Outdoor shower, Wired for whole-house generator, 8-camera WiFi security system, New screened porch ceiling fans (2024). This home delivers what buyers want most right now: One-level living, Large private lot, Cul-de-sac location, Custom brick construction, 3-car garage, Move-in ready systems. All just minutes to shopping, dining, golf, medical facilities, airport, beaches, and everything Myrtle Beach offers. Homes with acreage and privacy this close to the coast are extremely limited — schedule your showing immediately before this one is gone....
Contact an agent
Home facts
- Year built:2003
- Listing ID #:2601420
- Added:98 day(s) ago
- Updated:April 25, 2026 at 02:03 PM
Rooms and interior
- Bedrooms:3
- Total bathrooms:3
- Full bathrooms:2
- Half bathrooms:1
- Flooring:Luxury Vinyl Plank, Tile, Wood
- Kitchen Description:Breakfast Area, Breakfast Bar, Dishwasher, Disposal, Kitchen Island, Microwave, Range
- Bedroom Description:Split Bedrooms
- Living area:4,332 sq. ft.
Heating and cooling
- Cooling:Central Air
- Heating:Central, Electric
- Central air:Yes
Structure and exterior
- Year built:2003
- Building area:4,332 sq. ft.
- Lot area:1.26 Acres
- Lot Features:Cul De Sac, Flood Zone, Irregular Lot, Outside City Limits
- Architectural Style:Traditional
- Construction Materials:Brick
- Exterior Features:Front Porch, Porch, Screened, Sprinkler Irrigation
- Foundation Description:Slab
- Levels:1 Story
Schools
- High school:Saint James High School
- Middle school:Saint James Middle School
- Elementary school:Saint James Elementary School
Utilities
- Water:Public, Water Available
- Sewer:Sewer Available
Finances and disclosures
- Price:$697,000
- Price per sq. ft.:$160.9
Features and amenities
- Laundry features:Washer Hookup
Parking
- Total parking spaces:8
- Parking description:Attached, Garage, Garage Door Opener, Three Car Garage
- Garage:Yes
- Garage spaces:3
New listings near 248 Long Ridge Dr.
- New
$199,999Active3 beds 2 baths1,337 sq. ft.6309 Sweetwater Blvd., Murrells Inlet, SC 29576
MLS# 2610724Listed by: WELCOME HOME REALTY - New
$194,000Active2 beds 2 baths967 sq. ft.2498 Coastline Ct. #203, Murrells Inlet, SC 29576
MLS# 2610706Listed by: CENTURY 21 BROADHURST - New
$262,500Active3 beds 2 baths1,467 sq. ft.4657 Fringetree Dr. #6A, Murrells Inlet, SC 29576
MLS# 2610708Listed by: CENTURY 21 THE HARRELSON GROUP - New
$149,999Active2 beds 2 baths976 sq. ft.421 Cambridge Circle #F5, Murrells Inlet, SC 29576
MLS# 2610671Listed by: FLYNN REALTY - New
$2,275,000Active7 beds 4 baths4,456 sq. ft.2045 S Waccamaw Dr., Murrells Inlet, SC 29576
MLS# 2610677Listed by: COASTAL VISION PROPERTIES LLC - New
$664,000Active3 beds 3 baths3,638 sq. ft.535 Mary Lou Ave., Murrells Inlet, SC 29576
MLS# 2610658Listed by: REALTY ONE GROUP DOCKSIDESOUTH - New
$239,000Active3 beds 2 baths1,524 sq. ft.45 Woodhaven Dr. #D, Murrells Inlet, SC 29576
MLS# 2610661Listed by: RE/MAX SOUTHERN SHORES - Open Sat, 11am to 1pmNew
Listed by BHGRE$299,000Active3 beds 2 baths1,610 sq. ft.850 Sail Ln. #203, Murrells Inlet, SC 29576
MLS# 2610648Listed by: BHGRE PARACLE MYRTLE BEACH - New
$1,475,000Active5 beds 6 baths4,960 sq. ft.600 Elizabeth Dr., Murrells Inlet, SC 29576
MLS# 2610642Listed by: CENTURY 21 THE HARRELSON GROUP - New
$549,900Active3 beds 2 baths2,547 sq. ft.283 Cypress Creek Dr., Murrells Inlet, SC 29576
MLS# 2610628Listed by: DREAM REALTY MYRTLE BEACH, LLC