24 Twiggs Lane, Taylors, SC 29687
Local realty services provided by:Better Homes and Gardens Real Estate Medley
24 Twiggs Lane,Taylors, SC 29687
$204,049
- 3 Beds
- 3 Baths
- - sq. ft.
- Townhouse
- Pending
Listed by:katherine jarrett
Office:lennar carolinas llc.
MLS#:1567783
Source:SC_GGAR
Price summary
- Price:$204,049
- Monthly HOA dues:$130
About this home
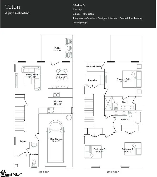
The Teton floorplan at Freeman Park in Taylors, SC offers a modern, low-maintenance lifestyle in a thoughtfully designed two-story townhome. The open-concept main floor seamlessly connects the kitchen, family room, and breakfast nook, with a patio that extends the living space outdoors—perfect for enjoying South Carolina’s mild climate. Upstairs, all three bedrooms provide privacy and comfort, including an owner's suite with en-suite bath and a shared full bath with dual sinks for added convenience. A one-car garage adds secure parking and storage. Located just minutes from Greenville, Freeman Park combines suburban tranquility with easy access to local amenities, making it ideal for a range of lifestyles.
Contact an agent
Home facts
- Listing ID #:1567783
- Added:50 day(s) ago
- Updated:October 18, 2025 at 07:37 AM
Rooms and interior
- Bedrooms:3
- Total bathrooms:3
- Full bathrooms:2
- Half bathrooms:1
Heating and cooling
- Cooling:Damper Controlled, Electric
- Heating:Damper Controlled, Forced Air, Natural Gas
Structure and exterior
- Roof:Architectural
- Lot area:0.05 Acres
Schools
- High school:Riverside
- Middle school:Northwood
- Elementary school:Brook Glenn
Utilities
- Water:Public
- Sewer:Public Sewer
Finances and disclosures
- Price:$204,049
New listings near 24 Twiggs Lane
- New$350,000Active3 beds 3 baths
103 Indian Trail, Taylors, SC 29687
MLS# 1572531Listed by: BHHS C DAN JOYNER - MIDTOWN - New$345,000Active3 beds 2 baths
405 Brook Glenn Road, Taylors, SC 29687
MLS# 1572456Listed by: BHHS C.DAN JOYNER-WOODRUFF RD - New$345,000Active3 beds 2 baths
5 Cane Creek Court, Taylors, SC 29687
MLS# 1572462Listed by: EXPERT REAL ESTATE TEAM - New$385,000Active4 beds 3 baths
503 Strange Road, Taylors, SC 29687
MLS# 1572407Listed by: KELLER WILLIAMS GRV UPST - Open Sun, 2 to 4pmNew$499,900Active4 beds 3 baths
306 Elyan Court, Taylors, SC 29687
MLS# 1572374Listed by: BLACKSTREAM INTERNATIONAL RE - New$269,900Active3 beds 2 baths
9 Forestdale Drive, Taylors, SC 29687
MLS# 1572360Listed by: BHHS C.DAN JOYNER-WOODRUFF RD - New$925,000Active4 beds 4 baths
73 Enoree Farm Way, Taylors, SC 29687
MLS# 1572346Listed by: BHHS C DAN JOYNER - MIDTOWN - New$265,000Active3 beds 1 baths
2210 E Lee Road, Taylors, SC 29687
MLS# 1572311Listed by: KELLER WILLIAMS GREENVILLE CENTRAL - Open Sat, 2 to 4pmNew$549,000Active4 beds 2 baths
38 Rising Meadow Lane, Taylors, SC 29687-7500
MLS# 1572312Listed by: REDFIN CORPORATION - New$425,000Active4 beds 6 baths2,540 sq. ft.
5a-5b Robin Hood Road, Taylors, SC 29687
MLS# 1572284Listed by: ACACIA REALTY ADVISORS, LLC