7688 Hatcher Heights Dr, Fairview, TN 37062

Local realty services provided by:Better Homes and Gardens Real Estate Heritage Group
7688 Hatcher Heights Dr,Fairview, TN 37062
$709,990
  • 3 Beds
  • 3 Baths
  • 2,440 sq. ft.
  • Single family
  • Active
Listed by: miranda rosenbaum, terrance murray
Office: drees homes
MLS#:3167402
Source:NASHVILLE

Price summary

  • Price:$709,990
  • Price per sq. ft.:$290.98
  • Monthly HOA dues:$83

About this home

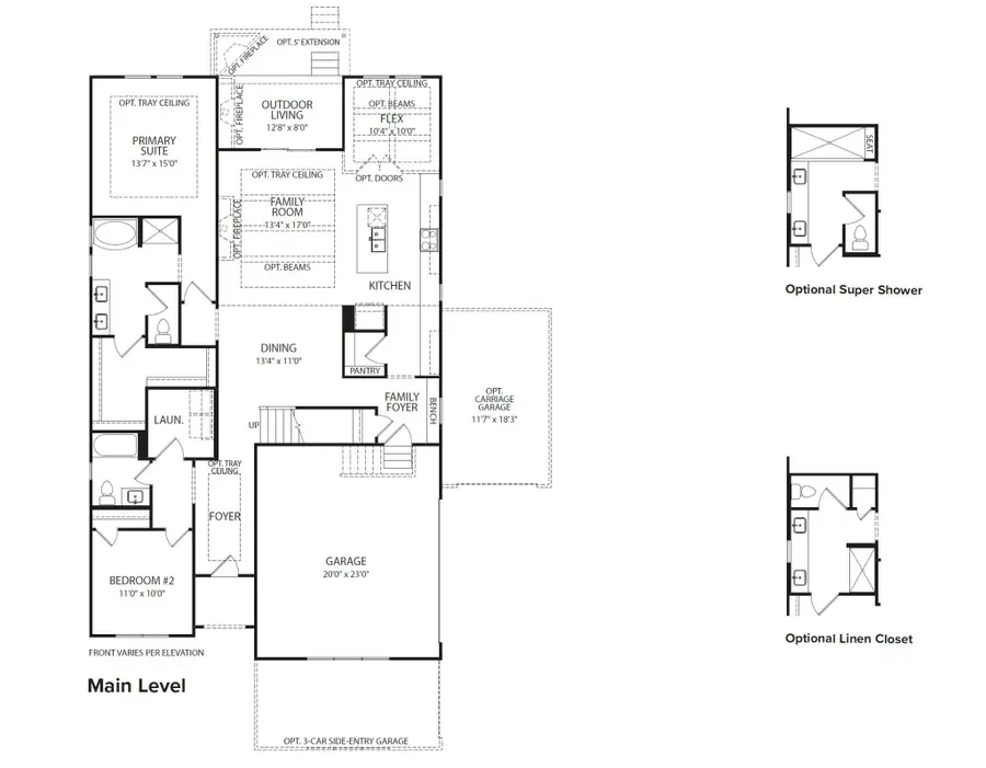
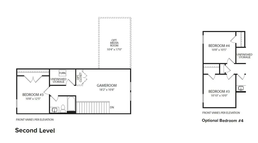
Welcome to Hatcher Heights, a brand-new Drees Homes community in the heart of Fairview offering a rare boutique setting with only 29 homesites. Enjoy thoughtfully planned lots, including homesites backing to trees, quiet cul-de-sac options, and select basement homesites. Build your dream home with the freedom to choose your homesite, select from 11 exceptional Drees floor plans, and personalize every detail with extensive structural and design options. Side-entry garages are standard, along with covered patios or decks, providing both elevated curb appeal and ideal outdoor living space. The DAMIEN, designed for both everyday comfort and impressive entertaining. This home boasts a 23ft long kitchen with walk in pantry, a family foyer to keep everyone and everything organized, and a relaxing rear covered porch/deck. The primary suite on the main level offers a relaxing retreat, along with a guest suite, while the second floor features an additional bedroom, a full bath, and a spacious...

Contact an agent

contact an agent

Yes, I would like more information. Please use and/or share my information with a BHGRE®  affiliated agent to contact me about my real estate needs. By clicking Send message, I request to be contacted by phone or text message and consent to being contacted by automated means. I understand that my consent to receive calls or texts is not a condition of purchasing any property, goods, or services. Alternatively, I understand that I can access real estate services by email or I can contact the agent myself.

If a BHGRE®  affiliated agent is not available in the area where I need assistance, I agree to be contacted by a real estate agent affiliated with another brand owned or licensed by Anywhere Real Estate (CENTURY 21® , Coldwell Banker® , Corcoran® , ERA® , Sotheby's International Realty® ).
 I acknowledge that I have read and agree to theTerms of useandPrivacy notice

Home facts

  • Year built:2026
  • Listing ID #:3167402
  • Added:7 day(s) ago
  • Updated:April 10, 2026 at 02:32 PM

Rooms and interior

  • Bedrooms:3
  • Total bathrooms:3
  • Full bathrooms:3
  • Flooring:Carpet, Tile
  • Kitchen Description:Microwave
  • Basement:Yes
  • Basement Description:Crawl Space
  • Living area:2,440 sq. ft.

Heating and cooling

  • Cooling:Central Air
  • Heating:Central
  • Central air:Yes

Structure and exterior

  • Year built:2026
  • Building area:2,440 sq. ft.
  • Lot area:0.35 Acres
  • Lot Features:Level
  • Construction Materials:Brick, Fiber Cement, Hardboard Siding
  • Levels:2 Story

Schools

  • High school:Fairview High School
  • Middle school:Fairview Middle School
  • Elementary school:Westwood Elementary School

Utilities

  • Water:Public, Water Available
  • Sewer:Public Sewer

Finances and disclosures

  • Price:$709,990
  • Price per sq. ft.:$290.98
  • Tax amount:$4,000

Features and amenities

  • Appliances:Microwave
  • Amenities:Smoke Detector(s)

Parking

  • Total parking spaces:2
  • Garage:Yes
  • Garage spaces:2
MLS LogoCopyright 2026 Realtracs Mls. All rights reserved. Realtracs Mls provides content displayed here (“provided content”) on an “as is” basis and makes no representations or warranties regarding the provided content, including, but not limited to those of non-infringement, timeliness, accuracy, or completeness. Individuals and companies using information presented are responsible for verification and validation of information they utilize and present to their customers and clients. Realtracs Mls will not be liable for any damage or loss resulting from use of the provided content or the products available through Portals, IDX, VOW, and/or Syndication. Recipients of this information shall not resell, redistribute, reproduce, modify, or otherwise copy any portion thereof without the expressed written consent of Realtracs Mls.