5934 Celestite Bend, San Antonio, TX 78222
Local realty services provided by:Better Homes and Gardens Real Estate Winans
5934 Celestite Bend,San Antonio, TX 78222
$240,000
- 4 Beds
- 3 Baths
- 1,617 sq. ft.
- Single family
- Active
Listed by: r.j. reyes(210) 842-5458, rj@kwthesignaturegroup.com
Office: keller williams heritage
MLS#:1949795
Source:LERA
Price summary
- Price:$240,000
- Price per sq. ft.:$148.42
- Monthly HOA dues:$32
About this home
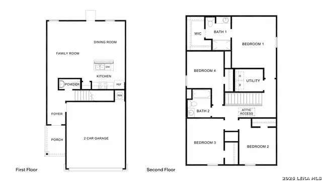
Welcome to The Clyde, a two-story home located at Blue Ridge Ranch in San Antonio, TX. This floor plan offers 2 classic exteriors and 2-car garage. Inside this 4 bedroom, 2.5 bathroom home, you'll find 1617 square feet of living space. The entry opens to a spacious family room before flowing into the dining room and kitchen with an open floorplan concept. The kitchen includes quartz counter tops, quality cabinetry, stainless steel appliances, large breakfast island, and pantry. Head up the stairs to find the main bedroom suite, all secondary bedrooms, the laundry room, and a full bath. The Clyde layout is perfect if you love entertaining downstairs and relaxing upstairs. The private main bedroom features an attractive ensuite with quality cabinetry. A spacious tiled walk-in shower and large walk-in closet provide all the space and convenience you need. Additional features of The Clyde floor plan include sheet vinyl flooring in entry, living room, and all wet areas, quartz counter tops in all bathrooms and HOME IS CONNECTED base package. Using one central hub that talks to all the devices in your home, you can control the lights, thermostat and locks, all from your cellular device....
Contact an agent
Home facts
- Year built:2025
- Listing ID #:1949795
- Added:1 day(s) ago
- Updated:March 19, 2026 at 02:29 AM
Rooms and interior
- Bedrooms:4
- Total bathrooms:3
- Full bathrooms:2
- Half bathrooms:1
- Flooring:Carpeting, Vinyl
- Dining Description:Breakfast Bar, Living Room/Dining Room Combo
- Bathrooms Description:Shower Only, Single Vanity
- Kitchen Description:Breakfast Bar, Disposal, Eat-In Kitchen, Island Kitchen, Solid Counter Tops, Stove/Range
- Bedroom Description:All Bedrooms Upstairs, Full Bath, Master Bedroom Upstairs, Walk-In Closet, Walk-In Closets
- Living area:1,617 sq. ft.
Heating and cooling
- Cooling:One Central
- Heating:Central, Electric
Structure and exterior
- Roof:Composition
- Year built:2025
- Building area:1,617 sq. ft.
- Lot area:0.13 Acres
- Architectural Style:Two Story
- Construction Materials:Cement Fiber, Siding
- Exterior Features:Covered Patio, Privacy Fence, Sprinkler System
- Foundation Description:Slab
- Levels:2 Story
Schools
- High school:East Central
- Middle school:Legacy
- Elementary school:Sinclair
Utilities
- Water:Water System
- Sewer:Sewer System
Finances and disclosures
- Price:$240,000
- Price per sq. ft.:$148.42
- Tax amount:$2 (2025)
Features and amenities
- Laundry features:Dryer Connection, Laundry Upper Level, Washer Connection
- Amenities:Attic - Pull Down Stairs, Electric Water Heater, Park/Playground, Smoke Alarm, Utility Room Inside
Parking
- Parking description:Two Car Garage
New listings near 5934 Celestite Bend
- New
$299,999Active3 beds 3 baths2,870 sq. ft.7059 Shadow Run, San Antonio, TX 78250
MLS# 1950028Listed by: ALL CITY SAN ANTONIO REGISTERED SERIES - New
$275,999Active4 beds 3 baths2,015 sq. ft.10307 Bluegill Way, San Antonio, TX 78224
MLS# 1950029Listed by: MARTI REALTY GROUP - New
$287,999Active4 beds 3 baths2,202 sq. ft.10311 Bluegill Way, San Antonio, TX 78224
MLS# 1950030Listed by: MARTI REALTY GROUP - New
$474,900Active4 beds 3 baths2,443 sq. ft.2645 Moonlight Run, San Antonio, TX 78245
MLS# 1950031Listed by: PERRY HOMES REALTY, LLC - New
$302,000Active3 beds 3 baths1,958 sq. ft.6914 Caribou, San Antonio, TX 78244
MLS# 1950033Listed by: MISSION REAL ESTATE GROUP - New
$456,990Active4 beds 3 baths2,295 sq. ft.11361 Feather Vale, San Antonio, TX 78254
MLS# 1950003Listed by: MERITAGE HOMES REALTY - New
$206,700Active3 beds 1 baths1,302 sq. ft.1915 Hicks Ave, San Antonio, TX 78210
MLS# 1950008Listed by: REALHOME SERVICES & SOLUTIONS - New
$249,900Active3 beds 3 baths1,373 sq. ft.8510 Wood Dew, San Antonio, TX 78251
MLS# 1950012Listed by: DAVALOS & ASSOCIATES - New
$295,299Active3 beds 2 baths1,269 sq. ft.1010 W Lynwood Ave, San Antonio, TX 78201
MLS# 1949978Listed by: RE SOLUTIONS XV LLC - New
$269,000Active3 beds 3 baths2,044 sq. ft.10922 Livewater, San Antonio, TX 78245
MLS# 1949979Listed by: LEVI RODGERS REAL ESTATE GROUP