18880 Shoreline, Fayetteville, AR 72703
Local realty services provided by:Better Homes and Gardens Real Estate Journey
Listed by: nicole brecheen
Office: viridian real estate
MLS#:1341520
Source:AR_NWAR
Price summary
- Price:$235,000
- Price per sq. ft.:$222.54
About this home
Completely refreshed and move-in ready, this 2 bedroom, 1 bath home in Beav-O-Rama offers modern updates with timeless appeal. Featuring all new luxury vinyl flooring, a beautifully tiled bathroom, and a fully upgraded kitchen with granite countertops, soft-close cabinetry, and LG appliances. The new covered front porch and inviting front door add to the home’s curb appeal, while the walkable access to the lake makes this location truly special. A perfect opportunity for a full-time residence, weekend getaway, or investment property.
Contact an agent
Home facts
- Year built:1969
- Listing ID #:1341520
- Added:53 day(s) ago
- Updated:May 23, 2026 at 07:49 AM
Rooms and interior
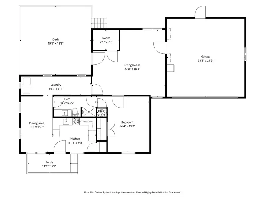
- Bedrooms:2
- Total bathrooms:1
- Full bathrooms:1
- Flooring:Luxury Vinyl Plank, Tile
- Kitchen Description:Dishwasher, Electric Range, Microwave, Pantry, Propane Water Heater
- Living area:1,056 sq. ft.
Heating and cooling
- Cooling:Ductless
- Heating:Ductless
Structure and exterior
- Roof:Metal
- Year built:1969
- Building area:1,056 sq. ft.
- Lot area:0.27 Acres
- Lot Features:Cleared
- Exterior Features:Covered
- Foundation Description:Slab
- Levels:1 Story
Utilities
- Water:Public, Water Available
- Sewer:Septic Available, Septic Tank
Finances and disclosures
- Price:$235,000
- Price per sq. ft.:$222.54
- Tax amount:$599
Features and amenities
- Appliances:Dishwasher, Electric Range, Microwave, Propane Water Heater
- Amenities:Pantry, Window Blinds, Window Treatments
Parking
- Parking description:Attached, Garage, Gravel Driveway
- Garage:Yes
New listings near 18880 Shoreline
- New
$1,300,000Active3 beds 4 baths2,780 sq. ft.951 N Pembroke Road, Fayetteville, AR 72701
MLS# 1348602Listed by: COLDWELL BANKER HARRIS MCHANEY & FAUCETTE -FAYETTE - New
$375,000Active4 beds 2 baths1,730 sq. ft.41 W Ozark Trail, Fayetteville, AR 72701
MLS# 1348488Listed by: CENTURY 21 LYONS & ASSOCIATES - New
$399,000Active3 beds 2 baths1,558 sq. ft.3900 W Mountain View Drive, Fayetteville, AR 72704
MLS# 1348577Listed by: KELLER WILLIAMS MARKET PRO REALTY BRANCH OFFICE - New
$1,499,000Active3 beds 3 baths3,511 sq. ft.3787 Kessler Mountain Road, Fayetteville, AR 72701
MLS# 1348570Listed by: LINDSEY & ASSOCIATES INC - New
$560,000Active4 beds 3 baths2,800 sq. ft.4299 W Morning Mist Drive, Fayetteville, AR 72704
MLS# 1348560Listed by: UPTOWN REAL ESTATE - New
$405,900Active3 beds 3 baths2,163 sq. ft.2629 N Justin Drive, Fayetteville, AR 72704
MLS# 1348499Listed by: NWA RESIDENTIAL REAL ESTATE - New
$875,000Active4 beds 5 baths4,105 sq. ft.2490 N Middleton Way, Fayetteville, AR 72703
MLS# 1348122Listed by: RE/MAX ASSOCIATES, LLC - New
$398,000Active3 beds 3 baths1,989 sq. ft.3462 Earnhardt Drive, Fayetteville, AR 72704
MLS# 1348221Listed by: GABEL REALTY - New
$475,000Active3 beds 3 baths1,895 sq. ft.1849 N Best Friend Lane, Fayetteville, AR 72704
MLS# 1348425Listed by: SOHO EXP NWA BRANCH - New
$635,000Active3 beds 3 baths2,450 sq. ft.204 S Forest Canyon Avenue, Fayetteville, AR 72701
MLS# 1348294Listed by: LIMBIRD REAL ESTATE GROUP