499 Noe Creek Road, Mountain Home, AR 72653
Local realty services provided by:Better Homes and Gardens Real Estate Southwest Group
Listed by: braydon pender, katie jenkins
Office: united country-cozort realty, inc.
MLS#:60318117
Source:MO_GSBOR
499 Noe Creek Road,Mountain Home, AR 72653
$965,000
- 4 Beds
- 4 Baths
- 5,112 sq. ft.
- Single family
- Active
Price summary
- Price:$965,000
- Price per sq. ft.:$188.77
About this home
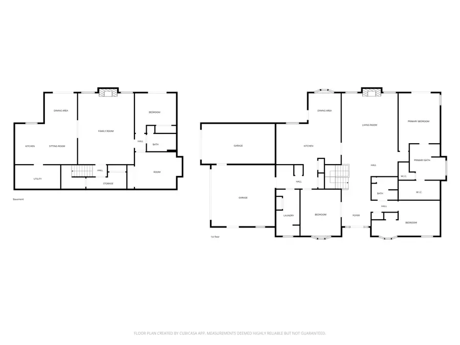
RARE LAKEFRONT OASISExplore this opportunity to own an exceptional lakeside retreat overlooking the pristine waters of Bull Shoals Lake in Mountain Home. This expansive 4-bedroom, 3.5-bathroom home offers an incredible layout with room to grow, featuring an additional bonus room upstairs that could easily serve as a 5th bedroom. Designed for comfort and functionality, this property boasts two full kitchens and two spacious living areas, one on each level, making it ideal for multi-generational living or hosting guests.Soak in panoramic lake views from nearly every window and step onto your freshly repainted deck (2024) to experience the serenity of nature right in your backyard. A cut trail leads directly from your backyard to the lake, providing rare and convenient access. Outdoor living is equally impressive with a newly added pergola and firepit (2024), an outdoor storage building, and security cameras surrounding the property for added peace of mind.Within the home, enjoy numerous updates including a new roof (June 2023), updated lighting, new ceiling fans in the main living areas and three bedrooms, and fresh paint throughout the upper level. The utility room includes new stainless sink basins and an additional freezer for convenience, while the downstairs kitchen features a new oven and flooring. Stay connected with fiber optic internet, and rest easy knowing the septic cleanouts have been upgraded and the well pump and tank were replaced in 2024.Entertainment is built right in with a 2023 Cameo 880 hot tub, pool table, ping pong table, shuffleboard, and arcade games, all included. All mattresses were replaced in 2022, and the master suite features an adjustable king bed for added luxury. Best of all, this home is completely furnished!This one-of-a-kind lake home is move-in ready and filled with features that make it perfect for full-time living, vacationing, or investment potential.Sellers will consider selling unfurnished....
Contact an agent
Home facts
- Year built:1999
- Listing ID #:60318117
- Added:60 day(s) ago
- Updated:May 15, 2026 at 10:08 AM
Rooms and interior
- Bedrooms:4
- Total bathrooms:4
- Full bathrooms:3
- Half bathrooms:1
- Flooring:Carpet, Hardwood, Laminate, Tile
- Kitchen Description:Dishwasher, Microwave, Refrigerator
- Basement:Yes
- Basement Description:Full, Root Cellar
- Living area:5,112 sq. ft.
Heating and cooling
- Cooling:Central Air
- Heating:Central
- Central air:Yes
Structure and exterior
- Year built:1999
- Building area:5,112 sq. ft.
- Lot area:2.17 Acres
- Lot Features:Acreage, Adjoins Government Land, Landscaping, Paved Frontage, Sloped
- Construction Materials:Brick, Concrete
- Foundation Description:Poured Concrete
Schools
- High school:Mountain Home
- Middle school:Mountain Home
- Elementary school:Mountain Home
Utilities
- Sewer:Septic Tank
Finances and disclosures
- Price:$965,000
- Price per sq. ft.:$188.77
- Tax amount:$4,108 (2025)
Parking
- Garage:Yes
- Garage spaces:3
New listings near 499 Noe Creek Road
- New
$950,000Active5 beds 5 baths4,800 sq. ft.17 Prestwick Court, Mountain Home, AR 72653
MLS# 1347132Listed by: BAXTER REAL ESTATE COMPANY - New
$210,000Active2 beds 2 baths1,340 sq. ft.1586 Meadowhill Drive, Mountain Home, AR 72653
MLS# 1346976Listed by: BAXTER REAL ESTATE COMPANY
$35,000Active0.33 AcresLot 8 Franklin Avenue, Mountain Home, AR 72653
MLS# 1344504Listed by: BAXTER REAL ESTATE COMPANY
$209,900Pending3 beds 2 baths1,541 sq. ft.76 Bayview Drive, Mountain Home, AR 72653
MLS# 1344497Listed by: ERA DOTY REAL ESTATE FLIPPIN
$225,000Active2 beds 2 baths1,358 sq. ft.746 Embassy Parkway, Mountain Home, AR 72653
MLS# 1344207Listed by: ERA DOTY REAL ESTATE FLIPPIN
$245,000Active3 beds 2 baths1,538 sq. ft.3305 Turnage Circle, Mountain Home, AR 72653
MLS# 1344022Listed by: BAXTER REAL ESTATE COMPANY
$960,000Active5 beds 4 baths3,534 sq. ft.171 Mc 101, Mountain Home, AR 72653
MLS# 1343547Listed by: BEAMAN REALTY
$344,000Pending3 beds 2 baths1,760 sq. ft.1817 Fairway Drive, Mountain Home, AR 72653
MLS# 1343221Listed by: ERA DOTY REAL ESTATE FLIPPIN
$49,900Active3.31 Acres000 Fife Lane, Mountain Home, AR 72653
MLS# 60320736Listed by: UNITED COUNTRY-COZORT REALTY, INC.
$256,400Active3 beds 2 baths1,962 sq. ft.1805 Van Buren Avenue, Mountain Home, AR 72653
MLS# 1342106Listed by: BAXTER REAL ESTATE COMPANY