3151 Emerson Trail, Steamboat Springs, CO 80487
Local realty services provided by:Better Homes and Gardens Real Estate Kenney & Company
3151 Emerson Trail,Steamboat Springs, CO 80487
$1,695,000
- 4 Beds
- 4 Baths
- 2,096 sq. ft.
- Single family
- Active
Listed by: charis petty, cindy macgray
Office: steamboat real estate professionals, llc.
MLS#:S1067704
Source:CO_SAR
Price summary
- Price:$1,695,000
- Price per sq. ft.:$808.68
About this home
Welcome to The Glen, Steamboat Springs’ newest and most vibrant neighborhood! Situated on a desirable corner lot, this thoughtfully designed single-family home blends modern style with comfortable mountain living.
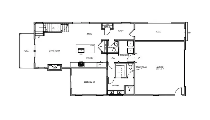
The main level features a bright, open-concept layout that seamlessly connects the living room, dining area, and kitchen—perfect for both everyday living and entertaining. The kitchen is well appointed with soft-close cabinetry, quartz countertops, a spacious island, and a convenient reach-in pantry. Just off the two-car garage is a mudroom area with laundry hook-ups, ideal for keeping gear organized after a day outdoors. The main-level primary suite offers the ease of single-level living and includes a private ensuite bathroom and walk-in closet.
Upstairs, you’ll find a second primary suite with its own ensuite bathroom, providing a comfortable and private retreat for guests or family members. Two additional bedrooms share a well-designed full bathroom, offering flexibility for family, visitors, or work-from-home needs.
Located just three miles from downtown Steamboat Springs, less than seven miles from the Steamboat Ski Resort, and close to scenic trails and outdoor recreation, this home offers convenient access to everything that makes Steamboat such a special place to live. Enjoy the comfort of a modern floor plan, the benefits of a corner lot, and the opportunity to be part of one of Steamboat’s newest communities. The Glen isn’t just a neighborhood—it’s a lifestyle.
Estimated completion is approximately 12 months after a signed contract, and buyers who purchase early in the process may have the opportunity to select certain finishes and purchase upgrades to personalize the home....
Contact an agent
Home facts
- Year built:2026
- Listing ID #:S1067704
- Added:6 day(s) ago
- Updated:March 20, 2026 at 07:42 PM
Rooms and interior
- Bedrooms:4
- Total bathrooms:4
- Full bathrooms:3
- Half bathrooms:1
- Rooms Total:12
- Flooring:Carpet, Luxury Vinyl Tile, Tile
- Kitchen Description:Dishwasher, Disposal, Electric Range, Oven, Range Hood, Refrigerator
- Basement:Yes
- Living area:2,096 sq. ft.
Heating and cooling
- Heating:Hot Water, Natural Gas, Radiant, Radiant Floor
Structure and exterior
- Roof:Asphalt
- Year built:2026
- Building area:2,096 sq. ft.
- Lot area:0.14 Acres
- Lot Features:City Lot
- Construction Materials:Frame, Wood Frame
- Exterior Features:Patio
Schools
- High school:Steamboat Springs
- Middle school:Steamboat Springs
- Elementary school:Sleeping Giant
Utilities
- Water:Public, Water Available
- Sewer:Connected, Public Sewer, Sewer Available, Sewer Connected
Finances and disclosures
- Price:$1,695,000
- Price per sq. ft.:$808.68
- Tax amount:$1,544 (2024)
Features and amenities
- Appliances:Dishwasher, Disposal, Oven, Range Hood, Refrigerator, Tankless Water Heater
- Laundry features:In Unit, Washer Hookup
- Amenities:Vaulted Ceiling(s)
Parking
- Parking description:Attached, Exterior Access Door, Garage
- Garage:Yes
- Garage spaces:2
New listings near 3151 Emerson Trail
- New
$629,000Active1 beds 1 baths770 sq. ft.435 Ore House Plaza #205, Steamboat Springs, CO 80487
MLS# S1067787Listed by: STEAMBOAT SOTHEBY'S INTERNATIONAL REALTY - New
$877,000Active2 beds 2 baths1,146 sq. ft.3340 Columbine Drive #703, Steamboat Springs, CO 80487
MLS# S1067848Listed by: STEAMBOAT SOTHEBY'S INTERNATIONAL REALTY - New
$765,000Active2 beds 2 baths1,056 sq. ft.1920 Ski Time Square Drive #311, Steamboat Springs, CO 80487
MLS# S1067522Listed by: COLDWELL BANKER MOUNTAIN PROPERTIES - New
$165,000Active2 beds 3 baths1,371 sq. ft.2300 Mt Werner #201, Steamboat Springs, CO 80477
MLS# S1067806Listed by: EXP REALTY LLC - New
$450,000Active0.18 Acres1610 Conestoga Lane, Steamboat Springs, CO 80487
MLS# S1067818Listed by: RANCH AND RESORT REALTY - Open Sat, 10am to 1pmNew
$1,890,000Active3 beds 4 baths3,140 sq. ft.27570 Silver Spur Street, Steamboat Springs, CO 80487
MLS# S1067812Listed by: STEAMBOAT SOTHEBY'S INTERNATIONAL REALTY - New
$1,995,000Active0.38 Acres900 Angels View Way, Steamboat Springs, CO 80487
MLS# S1067829Listed by: THE GROUP REAL ESTATE, LLC - New
$1,095,000Active41.59 Acres25270 Bella Vista Circle, Steamboat Springs, CO 80477
MLS# S1067793Listed by: MOSSY OAK PROPERTIES RANCH REALTY LLC - New
$123,000Active1 beds 2 baths956 sq. ft.2300 Mt Werner Circle #455 QIVB, Steamboat Springs, CO 80487
MLS# S1067781Listed by: STEAMBOAT SOTHEBY'S INTERNATIONAL REALTY - New
$649,000Active2 beds 1 baths806 sq. ft.2950 Columbine Drive #302, Steamboat Springs, CO 80487
MLS# S1066379Listed by: THE GROUP REAL ESTATE, LLC