3541 Santa Leta Drive, Ellenwood, GA 30294
Local realty services provided by:Better Homes and Gardens Real Estate Jackson Realty
Listed by: noelle foster
Office: stewart brokers
MLS#:10625327
Source:METROMLS
Price summary
- Price:$169,000
About this home
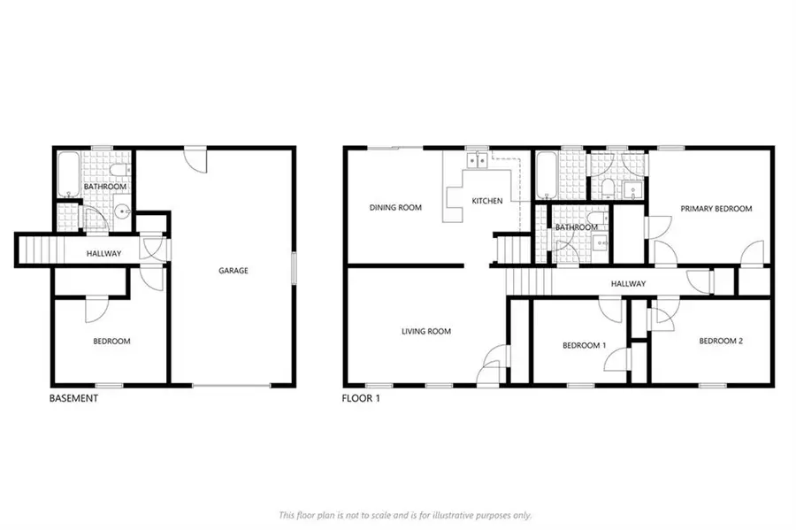
Opportunity Awaits! Welcome to 3541 Santa Leta Drive in Ellenwood-a spacious split-level home with great bones and tons of potential. This property features a partially finished basement, a large rear deck with ramp access, and a functional layout that includes laundry in the garage. While the home does need TLC and updates throughout, it offers a fantastic canvas for customization. Whether you're looking to make it your own or add value through renovation, this home is full of possibilities.
Contact an agent
Home facts
- Year built:1980
- Listing ID #:10625327
- Updated:March 30, 2026 at 10:47 AM
Rooms and interior
- Bedrooms:4
- Total bathrooms:3
- Full bathrooms:2
- Half bathrooms:1
- Flooring:Carpet
- Basement Description:Bath Finished, Partial
Heating and cooling
- Cooling:Central Air
- Heating:Forced Air
- Central air:Yes
Structure and exterior
- Year built:1980
- Lot area:0.33 Acres
- Construction Materials:Aluminum Siding, Vinyl Siding
- Exterior Features:Deck
- Levels:2 Story
Schools
- High school:Cedar Grove
- Middle school:Cedar Grove
- Elementary school:Cedar Grove
Utilities
- Water:Public
- Sewer:Public Sewer
Finances and disclosures
- Price:$169,000
- Tax amount:$625 (2024)
Parking
- Total parking spaces:1
- Parking description:Attached, Garage
- Garage:Yes
New listings near 3541 Santa Leta Drive
- New
$309,000Active3 beds 3 baths2,096 sq. ft.4335 Traipse Path, Ellenwood, GA 30294
MLS# 7722803Listed by: VISTARAY USA, INC. - Coming Soon
$234,999Coming Soon3 beds 2 baths2413 Tolliver Hills Ln, Ellenwood, GA 30294
MLS# 7742939Listed by: KELLER WILLIAMS REALTY WEST ATLANTA - New
$299,000Active4 beds 3 baths2,226 sq. ft.4317 Traipse Path, Ellenwood, GA 30294
MLS# 10719973Listed by: Realty One Group Edge - New
$239,900Active3 beds 2 baths11,696 sq. ft.4069 Ward Lake Trail, Ellenwood, GA 30294
MLS# 10719990Listed by: Trelora Realty, Inc. - New
$239,900Active3 beds 2 baths1,706 sq. ft.156 Blake Lane, Ellenwood, GA 30294
MLS# 10719788Listed by: Trelora Realty, Inc. - New
$415,000Active4 beds 3 baths2,634 sq. ft.2150 Allen Way, Ellenwood, GA 30294
MLS# 10719446Listed by: Virtual Properties Realty.com - New
$341,990Active3 beds 3 baths1,677 sq. ft.2643 Colville Terrace, Ellenwood, GA 30294
MLS# 10718949Listed by: Rockhaven Realty - New
$259,900Active4 beds 3 baths5855 Amerson Lane, Ellenwood, GA 30294
MLS# 10718873Listed by: Keller Williams West Atlanta - New
$171,000Active3 beds 2 baths1,076 sq. ft.115 Derby Country Drive, Ellenwood, GA 30294
MLS# 10718480Listed by: Mainstay Brokerage - New
$372,990Active3 beds 3 baths1,864 sq. ft.2639 Colville Terrace, Ellenwood, GA 30294
MLS# 10717844Listed by: Rockhaven Realty