106 Shenandoah Lane, Lagrange, GA 30241

Local realty services provided by:Better Homes and Gardens Real Estate Lifestyles Realty
106 Shenandoah Lane,Lagrange, GA 30241
$342,990
  • 4 Beds
  • 3 Baths
  • 2,315 sq. ft.
  • Single family
  • Active
Listed by: nancy pruitt, pa
Office: olympus executive realty inc
MLS#:G5111406
Source:MFRMLS

Price summary

  • Price:$342,990
  • Price per sq. ft.:$126.33
  • Monthly HOA dues:$58.33

About this home

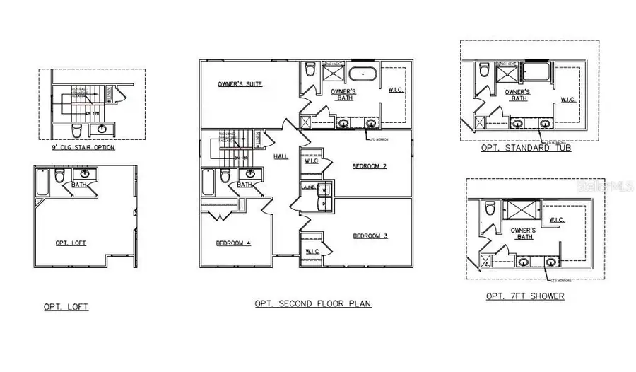
The Jodeco offers a modern open-concept design that balances comfort, functionality, and everyday living. From the moment you arrive, the welcoming front porch sets the tone for this thoughtfully designed home. Inside, the main level features a spacious great room that flows seamlessly into the dining area and kitchen, creating an ideal space for both relaxing and entertaining. The kitchen is well-appointed with ample cabinet and counter space and overlooks the main living areas for added convenience. A versatile flex room on the first floor provides the option for a home office, additional bedroom, or formal dining space to suit your needs. Upstairs, the layout continues with three secondary bedrooms, a full bathroom, and a generously sized primary suite complete with a private bath and walk-in closet. The home also includes a two-car garage and additional storage throughout. Located in a community with amenities including a swimming pool, playground, and green space, this home...

Contact an agent

contact an agent

Yes, I would like more information. Please use and/or share my information with a BHGRE®  affiliated agent to contact me about my real estate needs. By clicking Send message, I request to be contacted by phone or text message and consent to being contacted by automated means. I understand that my consent to receive calls or texts is not a condition of purchasing any property, goods, or services. Alternatively, I understand that I can access real estate services by email or I can contact the agent myself.

If a BHGRE®  affiliated agent is not available in the area where I need assistance, I agree to be contacted by a real estate agent affiliated with another brand owned or licensed by Anywhere Real Estate (CENTURY 21® , Coldwell Banker® , Corcoran® , ERA® , Sotheby's International Realty® ).
 I acknowledge that I have read and agree to theTerms of useandPrivacy notice

Home facts

  • Year built:2026
  • Listing ID #:G5111406
  • Added:1 day(s) ago
  • Updated:April 24, 2026 at 03:13 PM

Rooms and interior

  • Bedrooms:4
  • Total bathrooms:3
  • Full bathrooms:3
  • Flooring:Carpet, Vinyl
  • Kitchen Description:Dishwasher, Disposal, Microwave, Range
  • Bedroom Description:High Ceilings, Split Bedroom, Walk-In Closet(s)
  • Living area:2,315 sq. ft.

Heating and cooling

  • Cooling:Central Air
  • Heating:Central, Electric
  • Central air:Yes

Structure and exterior

  • Roof:Shingle
  • Year built:2026
  • Building area:2,315 sq. ft.
  • Lot area:0.24 Acres
  • Lot Features:Cleared, Landscaped, Level, Sidewalk
  • Architectural Style:Traditional
  • Construction Materials:Concrete, Hardi Plank Type, Wood Siding
  • Exterior Features:Front Porch, Lighting, Rear Porch
  • Foundation Description:Slab
  • Levels:2 Story

Utilities

  • Water:Public, Water Available
  • Sewer:Public, Public Sewer

Finances and disclosures

  • Price:$342,990
  • Price per sq. ft.:$126.33

Features and amenities

  • Appliances:Dishwasher, Disposal, Microwave, Range
  • Laundry features:Laundry Room, Laundry Upper Level
  • Amenities:BB/HS Internet Available, Cable Available, Clubhouse, Electricity Available, Fence Restrictions, High Ceilings, Open Floorplan, Playground, Pool, Split Bedroom, Thermostat, Walk-In Closet(s)
  • Pool features:Pool, Public Pool

Parking

  • Parking description:Attached Garage, Driveway
  • Garage:Yes
  • Garage spaces:2
MLS LogoThe information being provided by Stellar Mls is for the consumer's personal, non-commercial use and may not be used for any purpose other than to identify prospective properties consumer may be interested in purchasing. Any information relating to real estate for sale referenced on this web site comes from the Internet Data Exchange (IDX) program of the Stellar Mls. Better Homes and Gardens Real Estate Lifestyles Realty is not a Multiple Listing Service (MLS), nor does it offer MLS access. This website is a service of Better Homes and Gardens Real Estate Lifestyles Realty, a broker participant of Stellar Mls. This web site may reference real estate listing(s) held by a brokerage firm other than the broker and/or agent who owns this web site. The accuracy of all information, regardless of source, including but not limited to open house information, square footages and lot sizes, is deemed reliable but not guaranteed and should be personally verified through personal inspection by and/or with the appropriate professionals. The data contained herein is copyrighted by Stellar Mls and is protected by all applicable copyright laws. Any unauthorized dissemination of this information is in violation of copyright laws and is strictly prohibited. Properties in listings may have been sold or may no longer be available. Copyright 2026 Stellar Mls. All rights reserved.