Cherry Lane #Lot 2, York, ME 03909
Local realty services provided by:Better Homes and Gardens Real Estate The Masiello Group
Cherry Lane #Lot 2,York, ME 03909
$1,200,000
- 3 Beds
- 3 Baths
- 2,380 sq. ft.
- Single family
- Active
Listed by: susan green, grant parham
Office: green & company603-964-7572
MLS#:5084009
Source:PrimeMLS
Price summary
- Price:$1,200,000
- Price per sq. ft.:$345.72
- Monthly HOA dues:$278
About this home
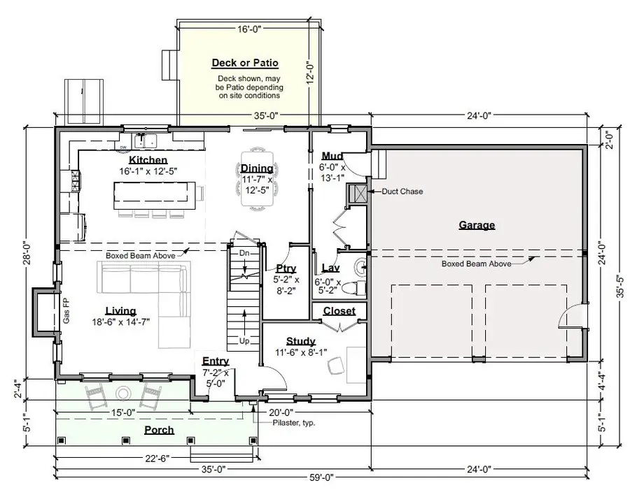
NEW CONSTRUCTION: Introducing Harbor Woods, York's newest community of seven new homes now beginning construction. Nestled amongst conservation land, and minutes to York Harbor and Kittery Point. Harbor Woods is the perfect location to enjoy all that Coastal Maine living provides.This thoughtfully designed Scotch Fox home style offers three bedrooms, home office, and spacious finished bonus room. The living space is centered around the kitchen, with island seating area, open dining and living room centered around a cozy gas fireplace. First floor study provides a beautiful sunny work space. Walk-in pantry with plenty of storage. Up the hardwood stairs is a primary suite with walk-in closet, and private bath with tile shower, linen storage and double vanity. Two additional bedrooms, full bath, and laundry on this floor. Finished "bonus " room over garage has endless options - family room, guest bedroom, hobby space! Enjoy morning coffee on the front farmer's porch or back deck/patio. Choose your homesite at Harbor Woods and customize this home!...
Contact an agent
Home facts
- Year built:2026
- Listing ID #:5084009
- Added:7 day(s) ago
- Updated:April 24, 2026 at 10:26 AM
Rooms and interior
- Bedrooms:3
- Total bathrooms:3
- Full bathrooms:1
- Rooms Total:10
- Flooring:Carpet, Hardwood, Tile
- Kitchen Description:Dishwasher, Microwave, Refrigerator
- Basement Description:Concrete, Concrete Floor, Exterior Access, Full, Interior, Interior Access, Storage Space, Unfinished
- Living area:2,380 sq. ft.
Heating and cooling
- Cooling:Central AC
- Heating:Forced Air, Hot Air, Multi Zone
Structure and exterior
- Year built:2026
- Building area:2,380 sq. ft.
- Levels:2.5 Story
Utilities
- Sewer:Private, Septic
Finances and disclosures
- Price:$1,200,000
- Price per sq. ft.:$345.72
Features and amenities
- Appliances:Refrigerator
- Amenities:Underground
Parking
- Parking description:Paved Driveway
- Garage spaces:2
New listings near Cherry Lane #Lot 2
- New
$85,000Active1 beds 2 baths744 sq. ft.1 Ocean Avenue #410/412 2, York, ME 03909
MLS# 5084953Listed by: PARMLEY PROPERTIES REALTY LLC - Open Sat, 11am to 1pmNew
$825,000Active4 beds 3 baths1,971 sq. ft.2 Prosper Way, York, ME 03902
MLS# 1658786Listed by: LEGACY PROPERTIES SOTHEBY'S INTERNATIONAL REALTY - New
$89,000Active1 beds 2 baths820 sq. ft.1 Ocean Avenue #406 408 1, York, ME 03909
MLS# 5084721Listed by: PARMLEY PROPERTIES REALTY LLC - Open Sat, 11am to 1pmNew
$1,195,000Active3 beds 3 baths2,181 sq. ft.49 Highland Avenue, York, ME 03909
MLS# 5084655Listed by: ANNE ERWIN SOTHEBYS INTERNATIONAL RLTY - New
$824,900Active3 beds 4 baths2,462 sq. ft.239 Cider Hill Road, York, ME 03909
MLS# 1658635Listed by: ABIGAIL DOURIS REAL ESTATELLC - New
$875,000Active2 beds 3 baths3,035 sq. ft.5 Village Park Drive #22, York, ME 03909
MLS# 1658562Listed by: ANCHOR REAL ESTATE - Open Sat, 11am to 12:30pmNew
$725,000Active3 beds 2 baths1,872 sq. ft.16 Passaic Road, York, ME 03902
MLS# 1658517Listed by: REMAX ANDREW REALTY SERVICES
$150,000Pending1 beds 2 baths820 sq. ft.1 Ocean Avenue #206 208 1, York, ME 03909
MLS# 5084383Listed by: PARMLEY PROPERTIES REALTY LLC- New
$1,590,000Active5 beds 5 baths4,645 sq. ft.8 Harrison Avenue, York, ME 03909
MLS# 1658289Listed by: KELLER WILLIAMS REALTY
$675,000Pending3 beds 3 baths1,728 sq. ft.7 Camden Avenue, York, ME 03909
MLS# 1658126Listed by: REAL BROKER