510 Villages At Hinds Creek Ln, Clinton, TN 37716
Local realty services provided by:Better Homes and Gardens Real Estate Jackson Realty
510 Villages At Hinds Creek Ln,Clinton, TN 37716
$459,200
- 4 Beds
- 4 Baths
- 3,122 sq. ft.
- Single family
- Pending
Listed by: tammie taylor
Office: d.r. horton
MLS#:1328742
Source:TN_KAAR
Price summary
- Price:$459,200
- Price per sq. ft.:$147.09
- Monthly HOA dues:$33.33
About this home
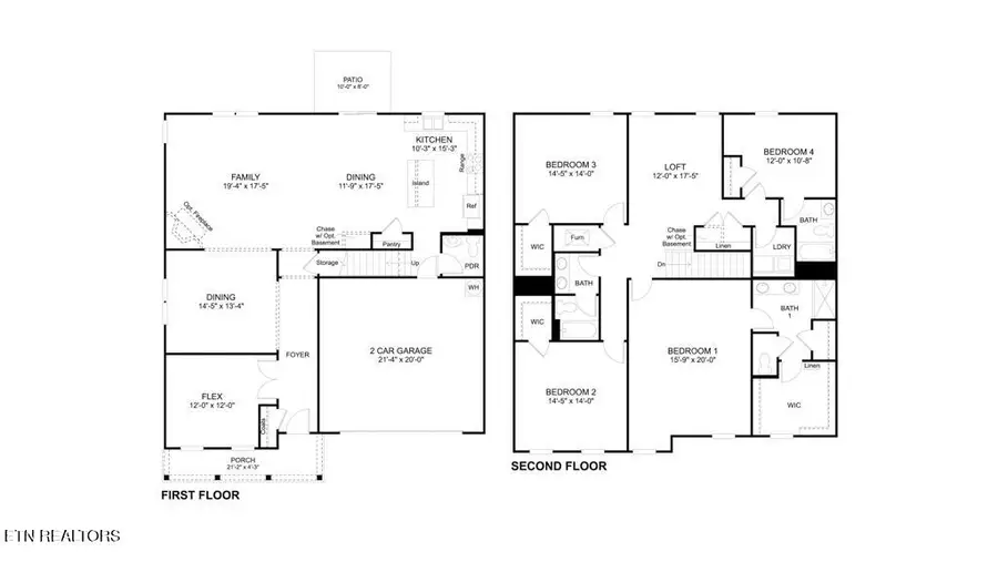
Welcome to 510 Villages at Hinds Creek Ln, located in Clinton, TN. This stunning two-story home offers 3,122 square feet of thoughtfully designed living space with 4 bedrooms and 3.5 bathrooms crafted to provide the perfect blend of style, comfort, and functionality.
The main level features an open-concept design where the spacious living, dining, and kitchen areas flow seamlessly together. The modern eat-in kitchen includes a large island with counter-top seating, a roomy pantry, and views of the backyard patio ideal for entertaining or relaxing. A versatile flex room, perfect for a home office or additional living space, and a conveniently located powder room complete the first floor.
Upstairs, a spacious loft offers even more room for work, play, or relaxation. The private primary suite includes a large walk-in closet and a luxurious en-suite bathroom. Three additional bedrooms and two full bathrooms provide plenty of space for all, while the conveniently located upstairs laundry room adds everyday ease.
This home also has 9ft ceilings on first floor, gas fireplace, Moen® nickel plumbing fixtures with anti-scald shower valves, Mohawk® Revwood vinyl and carpet flooring, LED lighting throughout, upgraded lifetime architectural shingles, concrete rear patio, & our Home Is Connected Smart Home Package.
Seller offering closing cost assistance to qualified buyers. Builder warranty included. See agent for details.
Due to variations amongst computer monitors, actual colors may vary. Pictures, photographs, colors, features, and sizes are for illustration purposes only and will vary from the homes as built. Photos may include digital staging. Square footage and dimensions are approximate. Buyer should conduct his or her own investigation of the present and future availability of school districts and school assignments. *Taxes are estimated. Buyer to verify all information....
Contact an agent
Home facts
- Year built:2026
- Listing ID #:1328742
- Added:96 day(s) ago
- Updated:May 14, 2026 at 07:41 AM
Rooms and interior
- Bedrooms:4
- Total bathrooms:4
- Full bathrooms:3
- Half bathrooms:1
- Rooms Total:10
- Flooring:Carpet, Laminate, Vinyl
- Basement:Yes
- Basement Description:Crawl Space
- Living area:3,122 sq. ft.
Heating and cooling
- Cooling:Central Cooling
- Heating:Ceiling, Central, Electric, Heat Pump
Structure and exterior
- Year built:2026
- Building area:3,122 sq. ft.
- Lot area:0.24 Acres
- Architectural Style:Traditional
- Construction Materials:Brick, Frame, Shingle Shake
Schools
- High school:Anderson County
- Middle school:Norris
- Elementary school:Andersonville
Utilities
- Sewer:Public Sewer
Finances and disclosures
- Price:$459,200
- Price per sq. ft.:$147.09
Features and amenities
- Amenities:Windows - Vinyl
- Smart home:Yes
Parking
- Parking description:Attached, Garage Door Opener
- Garage spaces:2
New listings near 510 Villages At Hinds Creek Ln
- New
$329,000Active3 beds 2 baths1,254 sq. ft.902 Rogers St, Clinton, TN 37716
MLS# 1340705Listed by: THE REAL ESTATE OFFICE - New
$525,000Active4 beds 3 baths2,476 sq. ft.986 Marlow Circle, Clinton, TN 37716
MLS# 1340573Listed by: KELLER WILLIAMS REALTY - New
$300,000Active3 beds 2 baths2,280 sq. ft.236 Loggers Lane, Clinton, TN 37716
MLS# 3206956Listed by: REALTY EXECUTIVES ASSOCIATES ON THE SQUARE - New
$274,900Active3 beds 1 baths1,378 sq. ft.300 Hillcrest St, Clinton, TN 37716
MLS# 1340459Listed by: EXP REALTY, LLC - Open Sun, 6 to 8pmNew
$349,900Active3 beds 2 baths1,176 sq. ft.518 Blockhouse Valley Rd, Clinton, TN 37716
MLS# 1340416Listed by: STEPHENSON REALTY & AUCTION - New
$419,000Active3 beds 3 baths2,048 sq. ft.200 Sweet Lane, Clinton, TN 37716
MLS# 1340256Listed by: REALTY EXECUTIVES ASSOCIATES ON THE SQUARE - New
$310,000Active3 beds 2 baths1,064 sq. ft.213 Hidden Valley Rd, Clinton, TN 37716
MLS# 1340164Listed by: CRYE-LEIKE REALTORS - New
$353,835Active3 beds 3 baths1,645 sq. ft.435 Villages At Hinds Creek Ln, Clinton, TN 37716
MLS# 1340118Listed by: D.R. HORTON - New
$361,420Active4 beds 3 baths1,709 sq. ft.439 Villages At Hinds Creek Ln, Clinton, TN 37716
MLS# 1340120Listed by: D.R. HORTON - New
$364,900Active4 beds 3 baths1,892 sq. ft.311 Woodhaven Lane, Clinton, TN 37716
MLS# 1340014Listed by: EXP REALTY, LLC