301 Larrow Drive #A, Williston, VT 05495

Local realty services provided by:Better Homes and Gardens Real Estate The Masiello Group
301 Larrow Drive #A,Williston, VT 05495
$414,500
  • 1 Beds
  • 2 Baths
  • 1,120 sq. ft.
  • Condominium
  • Active
Listed by: michael gamache
Office: acm realty, inc.802-657-4188
MLS#:5072609
Source:PrimeMLS

Price summary

  • Price:$414,500
  • Price per sq. ft.:$247.76
  • Monthly HOA dues:$125

About this home

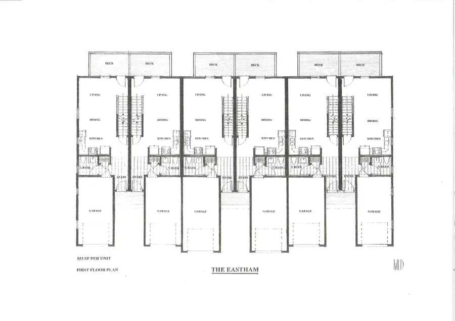
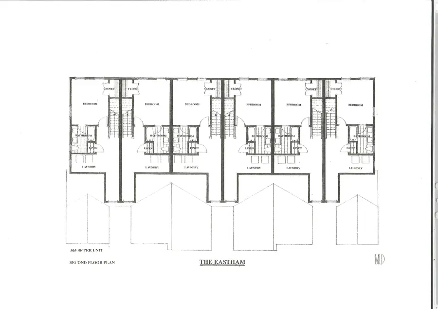
Introducing Summer Field at Williston. Ethan Allen Homes newest community offering single family lots, carriage homes as well as several multi townhome units in a variety of sizes and prices. Summer Field is located in a beautiful valley setting surrounded by mature trees and convenient to all Williston has to offer. Summer Field amenities include a Community center, swimming pool, gardening areas and playground. The development is serviced by a Town road, Town water and sewer, Natural gas and high speed internet. The Eastham Townhome features one bedroom, two baths, large single garage and a finished Daylighted Lower Level. Clients may personalize their home while selecting interior finishes.

Contact an agent

contact an agent

Yes, I would like more information. Please use and/or share my information with a BHGRE®  affiliated agent to contact me about my real estate needs. By clicking Send message, I request to be contacted by phone or text message and consent to being contacted by automated means. I understand that my consent to receive calls or texts is not a condition of purchasing any property, goods, or services. Alternatively, I understand that I can access real estate services by email or I can contact the agent myself.

If a BHGRE®  affiliated agent is not available in the area where I need assistance, I agree to be contacted by a real estate agent affiliated with another brand owned or licensed by Anywhere Real Estate (CENTURY 21® , Coldwell Banker® , Corcoran® , ERA® , Sotheby's International Realty® ).
 I acknowledge that I have read and agree to theTerms of useandPrivacy notice

Home facts

  • Year built:2025
  • Listing ID #:5072609
  • Added:2 day(s) ago
  • Updated:April 11, 2026 at 10:31 AM

Rooms and interior

  • Bedrooms:1
  • Total bathrooms:2
  • Full bathrooms:1
  • Rooms Total:8
  • Flooring:Carpet, Tile, Vinyl Plank
  • Kitchen Description:Microwave, Refrigerator
  • Basement Description:Concrete Floor, Daylight, Interior, Partially Finished
  • Living area:1,120 sq. ft.

Heating and cooling

  • Heating:Baseboard, Hot Water, Multi Zone

Structure and exterior

  • Year built:2025
  • Building area:1,120 sq. ft.
  • Levels:2 Story

Utilities

  • Sewer:Public Available

Finances and disclosures

  • Price:$414,500
  • Price per sq. ft.:$247.76

Features and amenities

  • Appliances:Refrigerator

Parking

  • Parking description:Paved Driveway
  • Garage spaces:1
MLS LogoCopyright 2026 Prime MLS, Inc. All rights reserved. This information is deemed reliable, but not guaranteed. The data relating to real estate displayed on this Site comes in part from the IDX Program of Prime MLS. The information being provided is for consumers’ personal, noncommercial use and may not be used for any purpose other than to identify prospective properties consumers may be interested in purchasing. Data last updated April 11, 2026