2029 Connecticut Ave Nw #42, Washington, DC 20008
Local realty services provided by:Better Homes and Gardens Real Estate Premier
Listed by: marin hagen, sylvia bergstrom
Office: coldwell banker realty - washington
MLS#:DCDC2228428
Source:BRIGHTMLS
Price summary
- Price:$2,699,000
- Price per sq. ft.:$843.44
About this home
PRICE REDUCED!!!
2029 Connecticut is the epitome of grand Beaux Arts construction in Washington, influenced by French architecture, including the Palace of Versailles. It was designed by Hunter and Bell and built in 1917. Its lobby’s marble floors and exquisite plaster molders provide an elegant welcome. It is perfectly sited in Kalorama, and has been home to a former president, presidential candidate, ambassadors, members of Congress and many distinguished people representing a variety of professions.
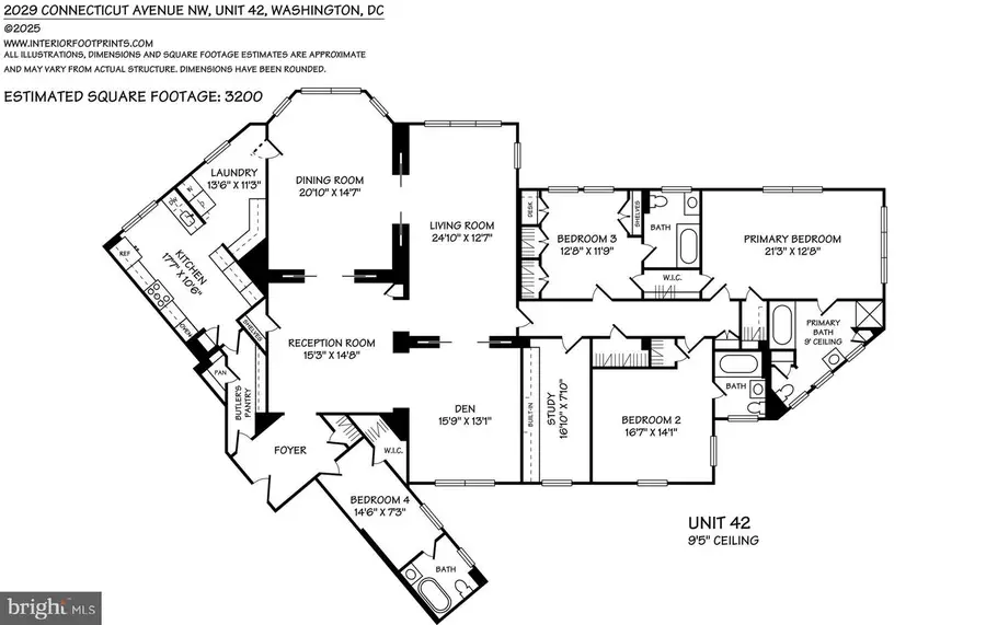
This exquisite home offers large, light filled public spaces that gracefully flow together for elegant entertaining. The home is approximately 3,200 sq ft (per floor plan), boasting almost 10’ ceilings with fabulous, crisp moldings. A private bedroom and en suite bath are located just off the foyer, as is easy access to the kitchen via the butler’s pantry. The large reception room opens from the foyer to the dining room, living room, and study. The private bedroom wing features a large primary bedroom suite that includes an en suite bath and two large closets, plus two additional bedrooms (each with their own en suite bath), and a study. This study could easily be converted to an oversized walk-in closet. The apartment conveys with one assigned storage room and one assigned (gated) parking space.
The building’s renovated roof deck is accessible from the passenger elevator and features newer furniture, cantilevered umbrellas, an herb garden, plus a renovated catering kitchen and restroom. Its sweeping 360-degree views of the monuments and city are spectacular, and it can be reserved by residents for private use. The attentive staff of 2029 provide 24-hour front desk service, common area cleaning and building maintenance.
2029 Connecticut is just a few blocks from Dupont Circle, Woodley Park, Adams Morgan, the White House and K Street corridor, and surrounded by restaurants, shops, museums, galleries and other conveniences. The Phillips Collection, Cosmos Club, National Zoo, Rock Creek Park, and Red Line Metro are all nearby....
Contact an agent
Home facts
- Year built:1917
- Listing ID #:DCDC2228428
- Added:152 day(s) ago
- Updated:March 31, 2026 at 01:32 PM
Rooms and interior
- Bedrooms:4
- Total bathrooms:4
- Full bathrooms:4
- Flooring:Hardwood, Tile/Brick
- Dining Description:Formal/Separate Dining Room
- Bathrooms Description:Primary Bath(s)
- Kitchen Description:Built-In Microwave, Built-Ins, Butlers Pantry, Cedar Closet(s), Cooktop, Crown Moldings, Dishwasher, Disposal, Energy Efficient Appliances, Kitchen - Gourmet, Oven - Wall, Recessed Lighting, Refrigerator, Upgraded Countertops
- Bedroom Description:Cedar Closet(s), Entry Level Bedroom, Walk In Closet(s)
- Living area:3,200 sq. ft.
Heating and cooling
- Cooling:Window Unit(s)
- Heating:Natural Gas, Radiator
Structure and exterior
- Year built:1917
- Building area:3,200 sq. ft.
- Architectural Style:Beaux Arts
- Construction Materials:Brick, Stone
- Exterior Features:Exterior Lighting
- Levels:1 Story
Utilities
- Water:Public
- Sewer:Public Sewer
Finances and disclosures
- Price:$2,699,000
- Price per sq. ft.:$843.44
- Tax amount:$16,836 (2025)
Features and amenities
- Laundry features:Dryer - Front Loading, Dryer In Unit, Washer - Front Loading, Washer In Unit
- Amenities:Built-Ins, Cedar Closet(s), Crown Moldings, Desk in Lobby, Double Hung Windows, Exterior Cameras, Intercom, Main Entrance Lock, Monitored, Recessed Lighting, Smoke Detector, Storm Windows, Window Treatments
Parking
- Parking description:Assigned, Lighted Parking, Parking Lot, Secure Parking, Surface
New listings near 2029 Connecticut Ave Nw #42
- New
$499,000Active5 beds 2 baths3,192 sq. ft.54 Riggs Rd Ne, WASHINGTON, DC 20011
MLS# DCDC2253242Listed by: LONG & FOSTER REAL ESTATE, INC. - Open Sat, 1 to 4pmNew
$735,000Active3 beds 3 baths1,620 sq. ft.11 S Street Nw Unit 1 Nw, WASHINGTON, DC 20001
MLS# DCDC2251664Listed by: COMPASS - Coming Soon
$749,000Coming Soon3 beds 3 baths3302 9th St Ne #2, WASHINGTON, DC 20017
MLS# DCDC2252818Listed by: TTR SOTHEBY'S INTERNATIONAL REALTY - New
$375,000Active1 beds 1 baths711 sq. ft.1545 18th St Nw #303, WASHINGTON, DC 20036
MLS# DCDC2253066Listed by: COLDWELL BANKER REALTY - WASHINGTON - Open Sat, 11am to 1pmNew
$888,000Active6 beds 4 baths1,903 sq. ft.1278 Morse St Ne, WASHINGTON, DC 20002
MLS# DCDC2253126Listed by: COTTAGE STREET REALTY LLC - Coming Soon
$325,000Coming Soon2 beds 2 baths1415 Bangor St Se, WASHINGTON, DC 20020
MLS# DCDC2234800Listed by: SAMSON PROPERTIES - New
$420,000Active1 beds 1 baths661 sq. ft.355 I St Sw #116, WASHINGTON, DC 20024
MLS# DCDC2246060Listed by: NBI REALTY, LLC - Coming Soon
$3,195,000Coming Soon3 beds 3 baths1111 24th St Nw #53, WASHINGTON, DC 20037
MLS# DCDC2251866Listed by: TTR SOTHEBY'S INTERNATIONAL REALTY - New
$899,000Active9 beds -- baths2,964 sq. ft.2335 Green St Se, WASHINGTON, DC 20020
MLS# DCDC2252846Listed by: COMPASS - Coming Soon
$346,000Coming Soon1 beds 1 baths1706 U St Nw #202, WASHINGTON, DC 20009
MLS# DCDC2253170Listed by: LONG & FOSTER REAL ESTATE, INC.