222 Buckingham St, Oxford, PA 19363
Local realty services provided by:Better Homes and Gardens Real Estate GSA Realty
222 Buckingham St,Oxford, PA 19363
$499,900
- 3 Beds
- 2 Baths
- 1,672 sq. ft.
- Single family
- Pending
Listed by: maria d moran, tjede mcvey
Office: beiler-campbell realtors-oxford
MLS#:PACT2118190
Source:BRIGHTMLS
Price summary
- Price:$499,900
- Price per sq. ft.:$298.98
- Monthly HOA dues:$125
About this home
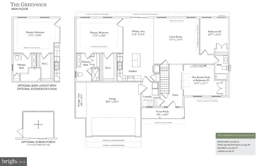
This Greenwich floorplan is available to be built at the Meadows at Wicklow. Visit our model homes during our weekly Open House; Wednesday through Saturday from 12-5pm. The Meadows at Wicklow 55+ Community offers 5 floorplans to build. At 1,672 sq ft of living space, the Greenwich is our mid-sized ranch home. Featuring two to three bedrooms and two baths, this charming home has the potential to accommodate more living space with additional storage in your garage, added space towards the rear of your home and by adding a screened porch. The Greenwich allows for open concept living while providing privacy for your owner’s bedroom suite with guest bedrooms located adjacent to the great room. With charming built-ins, fireplace, and screened porch additions, it’s not hard to imagine this house transforming into your warm and cozy home. Many upgrades are included in the base price such as 9ft ceilings on first floor, full unfinished basement, maple cabinetry, stainless steel appliances and much more!
Must use builder's affiliated lender and title company for any builder incentive. Terms and Conditions apply. See agent for details....
Contact an agent
Home facts
- Listing ID #:PACT2118190
- Added:93 day(s) ago
- Updated:May 29, 2026 at 07:41 AM
Rooms and interior
- Bedrooms:3
- Total bathrooms:2
- Full bathrooms:2
- Flooring:Carpet, Luxury Vinyl Plank
- Dining Description:Combination Dining/Living, Combination Kitchen/Dining, Dining Room
- Bathrooms Description:Bathroom 2, Primary Bathroom
- Kitchen Description:Kitchen - Island, Pantry, Refrigerator, Stainless Steel Appliances, Stove, Upgraded Countertops
- Bedroom Description:Primary Bedroom, Walk In Closet(s)
- Basement:Yes
- Basement Description:Full, Interior Access
- Living area:1,672 sq. ft.
Heating and cooling
- Cooling:Central A/C
- Heating:Forced Air, Natural Gas
Structure and exterior
- Roof:Architectural Shingle, Shingle
- Building area:1,672 sq. ft.
- Lot area:0.21 Acres
- Lot Features:Suburban
- Architectural Style:Ranch/Rambler
- Construction Materials:Stick Built, Vinyl Siding
- Exterior Features:Exterior Lighting, Sidewalks
- Foundation Description:Concrete Perimeter
- Levels:1 Story
Utilities
- Water:Public
- Sewer:Public Sewer
Finances and disclosures
- Price:$499,900
- Price per sq. ft.:$298.98
Features and amenities
- Laundry features:Washer/Dryer Hookups Only
- Amenities:200+ Amp Service, Cable TV Available, Electric Available, Natural Gas Available, Phone Available
Parking
- Parking description:Attached Garage, Garage - Front Entry, Garage Door Opener, Inside Access, Paved Driveway
- Garage:Yes
- Garage spaces:2
New listings near 222 Buckingham St
- Coming Soon
$725,000Coming Soon3 beds 3 baths275 Bentley Dr, OXFORD, PA 19363
MLS# PACT2112176Listed by: BEILER-CAMPBELL REALTORS-KENNETT SQUARE - New
$399,900Active4 beds 2 baths2,678 sq. ft.436 Market St, OXFORD, PA 19363
MLS# PACT2126622Listed by: BHHS FOX & ROACH-KENNETT SQ - Open Sun, 11am to 1pmNew
$525,000Active3 beds 3 baths1,961 sq. ft.121 Cooper Ln, OXFORD, PA 19363
MLS# PACT2125446Listed by: RE/MAX TOWN & COUNTRY - Open Sun, 1 to 3pmNew
$549,000Active4 beds 3 baths2,404 sq. ft.448 Media Rd, OXFORD, PA 19363
MLS# PACT2126634Listed by: LPT REALTY, LLC - New
$595,000Active4 beds 3 baths2,995 sq. ft.131 Schoolview Ln, OXFORD, PA 19363
MLS# PACT2125708Listed by: C-21 EXECUTIVE GROUP - New
$590,000Active5 beds 4 baths4,283 sq. ft.332 Cornerstone Ct, OXFORD, PA 19363
MLS# PACT2126254Listed by: COLDWELL BANKER REALTY - Coming SoonOpen Sun, 1 to 3pm
$570,000Coming Soon4 beds 3 baths205 Warwick Ct, OXFORD, PA 19363
MLS# PACT2126342Listed by: BEILER-CAMPBELL REALTORS-AVONDALE - Coming Soon
$649,000Coming Soon4 beds 3 baths120 Mcdonald Way, OXFORD, PA 19363
MLS# PACT2126082Listed by: KW GREATER WEST CHESTER
$349,000Pending4 beds 2 baths2,086 sq. ft.25 S 5th St, OXFORD, PA 19363
MLS# PACT2126154Listed by: BEILER-CAMPBELL REALTORS-AVONDALE- Coming Soon
$569,900Coming Soon4 beds 3 baths268 W Branch Rd, OXFORD, PA 19363
MLS# PACT2125930Listed by: RE/MAX PREFERRED - MALVERN