Lt81 50th Court, Pleasant Prairie, WI 53158
Local realty services provided by:Better Homes and Gardens Real Estate Star Homes
Lt81 50th Court,Pleasant Prairie, WI 53158
$681,900
- 3 Beds
- 3 Baths
- 1,832 sq. ft.
- Single family
- Active
Listed by: lisa wolf
Office: keller williams north shore west
MLS#:12568257
Source:MLSNI
Price summary
- Price:$681,900
- Price per sq. ft.:$372.22
- Monthly HOA dues:$25
About this home
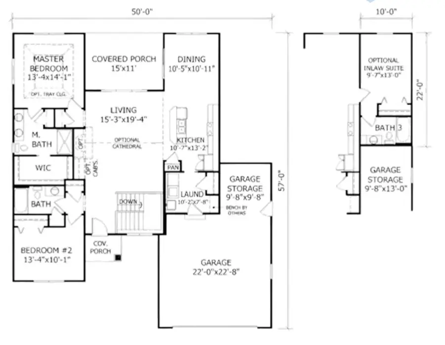
The heart of the home is an expansive open floorplan that leads to an incredible covered porch-ideal for relaxing or entertaining. The primary ensuite serves as a true retreat, featuring a double vanity, a custom walk-in tile shower, and a spacious walk-in closet. The secondary bedroom is generously sized and conveniently located adjacent to a full bath, while the home also includes a spacious in-law suite arrangement, providing the perfect setup for multi-generational living or a private guest wing. For added organization, the laundry room comes complete with custom cabinetry and a functional drop-in sink. The 9' pour full basement is ready for your vision. Complete with a 2.5-car garage (including extra storage) and a prime cul-de-sac location, you're just minutes from top-tier shopping and transportation. Home is not yet built, photos are of builder rendering and virtually staged.
Contact an agent
Home facts
- Listing ID #:12568257
- Updated:April 12, 2026 at 10:47 AM
Rooms and interior
- Bedrooms:3
- Total bathrooms:3
- Full bathrooms:3
- Rooms Total:6
- Dining Description:Separate Dining Room
- Basement:Yes
- Basement Description:Full, Unfinished
- Living area:1,832 sq. ft.
Heating and cooling
- Cooling:Central Air
- Heating:Natural Gas
- Central air:Yes
Structure and exterior
- Building area:1,832 sq. ft.
- Lot area:0.35 Acres
- Lot Features:Cul-De-Sac
- Architectural Style:Ranch
- Foundation Description:Concrete Perimeter
- Levels:1 Story
Utilities
- Water:Public
- Sewer:Public Sewer
Finances and disclosures
- Price:$681,900
- Price per sq. ft.:$372.22
Parking
- Total parking spaces:2
- Parking description:Attached Garage, Garage
- Garage:Yes
- Garage spaces:2.5
New listings near Lt81 50th Court
- New
$429,000Active3 beds 2 baths1,468 sq. ft.3329 125th St, Pleasant Prairie, WI 53158
MLS# 1957473Listed by: BERKSHIRE HATHAWAY HOMESERVICES METRO REALTY-RACINE
$2,450,000Active81.76 Acres- 116TH STREET, Pleasant Prairie, WI 53158
MLS# 1957415Listed by: BOHN REALTY INC- New
$850,000Active22.09 Acres4700 116th St, Pleasant Prairie, WI 53158
MLS# 1957416Listed by: BOHN REALTY INC - New
$3,300,000Active103.85 Acres4700 116th + 116th St, Pleasant Prairie, WI 53158
MLS# 1957417Listed by: BOHN REALTY INC - New
$65,000Active3 beds 2 baths1,120 sq. ft.7801 88th Street #171, Pleasant Prairie, WI 53158
MLS# 2020372Listed by: BERKSHIRE HATHAWAY HOMESERVICES WATER CITY REALTY - New
$619,900Active3 beds 3 baths1,850 sq. ft.12212 Sheridan Rd, Pleasant Prairie, WI 53158
MLS# 1957214Listed by: EPIQUE REALTY - New
$464,900Active2 beds 2 baths1,543 sq. ft.8312 85th Ave, Pleasant Prairie, WI 53158
MLS# 1957104Listed by: KELLER WILLIAMS THRIVE-KENOSHA - New
$469,900Active2 beds 2 baths1,599 sq. ft.8302 85th Ave, Pleasant Prairie, WI 53158
MLS# 1957106Listed by: KELLER WILLIAMS THRIVE-KENOSHA - New
$529,900Active4 beds 4 baths2,912 sq. ft.7944 Cooper Rd, Pleasant Prairie, WI 53142
MLS# 1956905Listed by: KAZI REALTY, LLC
$629,900Active4 beds 3 baths2,907 sq. ft.10215 83rd PLACE, Kenosha, WI 53158
MLS# 1956908Listed by: COVE REALTY, LLC