626 Sugarwood Way, Melbourne, FL 32940
Local realty services provided by:Better Homes and Gardens Real Estate Star
Listed by: james stephen dandridge, stephanie moss dandridge
Office: one sotheby's international
MLS#:1069648
Source:FL_SPACE
Price summary
- Price:$849,000
- Price per sq. ft.:$243.48
About this home
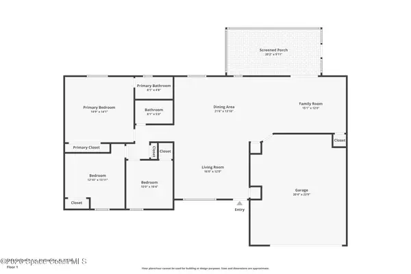
Located on a quiet cul-de-sac in Woodbridge at Suntree, this two-story brick French Provincial home sits directly adjacent to the 18th hole of Suntree Country Club. Offering 3,487 square feet, 5 bedrooms, and 5 full baths, the home blends timeless architecture with extensive 2022 updates throughout.
Designed with family living and entertaining in mind, the home features hardwood floors, a wood-burning fireplace, and multiple gathering spaces that flow seamlessly to the expansive covered lanai and screened pool with gas-heated spa. The fully modernized kitchen showcases marble countertops, double wall ovens, an induction cooktop, butler's pantry, and an impressive entertainment extension complete with a 200-bottle wine refrigerator and keg fridge.
Upstairs, the primary suite offers four custom closets and direct access to a private rooftop deck with panoramic views. Two additional upstairs suites provide flexibility for growing families or multigenerational living, while a first-floor guest bedroom adds convenience.
Major improvements include hurricane impact windows and doors (2022), dual-zone HVAC, foam-insulated attic spaces, a 2015 roof with wind mitigation upgrades, and new professional landscaping (2024).
Located within Woodbridge's signature covered bridge community and minutes from parks, shopping, and major commuter routes. Approximately 10 minutes to the beach, 15 minutes to Melbourne Orlando International Airport, and about 45 minutes to Orlando International Airport, this is a true family home in one of Suntree's most desirable neighborhoods....
Contact an agent
Home facts
- Year built:1986
- Listing ID #:1069648
- Added:65 day(s) ago
Rooms and interior
- Bedrooms:5
- Total bathrooms:5
- Full bathrooms:5
- Flooring:Tile, Wood
- Kitchen Description:Breakfast Bar, Breakfast Nook, appl_
- Living area:3,487 sq. ft.
Heating and cooling
- Cooling:Electric
- Heating:Central, Heat Pump
- Central air:Yes
Structure and exterior
- Year built:1986
- Building area:3,487 sq. ft.
- Lot area:0.22 Acres
- Construction Materials:Brick
Schools
- High school:Viera
- Middle school:DeLaura
- Elementary school:Suntree
Utilities
- Sewer:Public Sewer
Finances and disclosures
- Price:$849,000
- Price per sq. ft.:$243.48
- Tax amount:$9,578 (2025)
Features and amenities
- Laundry features:appl_
- Amenities:Breakfast Bar, Breakfast Nook
- Pool features:Waterfall
Parking
- Parking description:Attached
- Garage:Yes
- Garage spaces:2
New listings near 626 Sugarwood Way
- New
$425,000Active3 beds 2 baths1,522 sq. ft.2594 Longwood Boulevard, Melbourne, FL 32934
MLS# 1075668Listed by: RE/MAX ELITE - New
$239,000Active3 beds 2 baths1,328 sq. ft.2669 Leewood Boulevard, Melbourne, FL 32935
MLS# 1075664Listed by: DENOVO REALTY - Open Sat, 11am to 1pmNew
$1,150,000Active4 beds 4 baths4,030 sq. ft.4480 Philodendron Court, Melbourne, FL 32934
MLS# 1074899Listed by: RE/MAX ELITE - New
$339,000Active4 beds 2 baths1,276 sq. ft.520 Buckingham Avenue, Melbourne, FL 32935
MLS# 1075655Listed by: BARRIER ISLAND PROPERTIES - New
$169,900Active1 beds 1 baths781 sq. ft.6451 Borasco Drive N #1604, Melbourne, FL 32940
MLS# 1075645Listed by: NEXTHOME COASTAL VISTA - New
$265,000Active4 beds 2 baths1,450 sq. ft.2342 Leewood Boulevard, Melbourne, FL 32935
MLS# B26019990Listed by: BILLERO & BILLERO PROPERTIES - New
$614,900Active4 beds 3 baths2,014 sq. ft.2263 Great Belt Circle, Melbourne, FL 32940
MLS# 1075491Listed by: COMPASS FLORIDA, LLC - New
$250,000Active0.51 Acres4765 Canard Road, Melbourne, FL 32934
MLS# 1075623Listed by: BRUBAKER REALTY - Open Sat, 11am to 6pmNew
$324,990Active3 beds 3 baths1,674 sq. ft.1918 Kendall Pointe Place, MELBOURNE, FL 32935
MLS# W7885187Listed by: MALTBIE REALTY GROUP - Open Fri, 4 to 6pmNew
$499,000Active3 beds 2 baths1,798 sq. ft.3250 Woodsmill Drive, Melbourne, FL 32934
MLS# 1075308Listed by: REALTY WORLD CURRI PROPERTIES